Проект двухэтажной бани 1452
Дом подходит для:
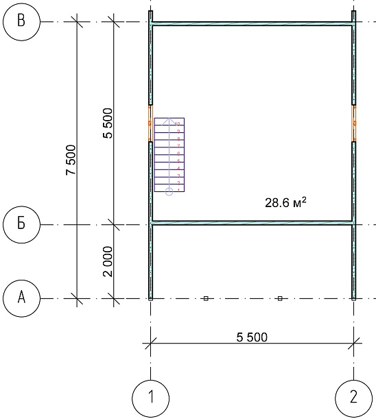
Площадь
55 м 2
Размер дома:
6х7
Этажей:
2
Спален:
1
Санузел:
1
Гараж:
Нет
Баня:
Да
Терраса:
Нет
Панорамные окна:
Нет
Мастер-спальня:
Нет
Планировка
Характеристики
- Общая площадь: 55 м2
- Жилая площадь: 28 м2
- Количество этажей: 2
- Гараж: нет
- Площадь кровли: 57 м2
- Форма: Квадратные дома
- Тип кровли: Дома с двускатной крышей
- Пристрой: Дома с баней
- Отделка: Без отделки
Материалы и перечень работ
- В стоимость не входит
- Наружные стены выполняются из материала, выбранного заказчиком для строительства (цельный брус, клееный брус, оцилиндрованное бревно). Внутренние перегородки - каркасные, обшиваются вагонкой класса "В" с двух сторон. Под вагонку каркасных перегородок закладывается утеплитель - стекло-штапельное волокно толщиной 50мм, утеплитель прокладывается с двух сторон пароизоляционной мембраной.
- Полы бани двойные: черновой пол - обрезная доска толщиной 18-20мм, чистовой пол - половая строганная шпунтованная доска 30-40мм. Половые лаги выполняются сечением 150х50мм, балки устанавливаются с шагом ~0,5м.
- Полы утеплены стекло-штапельным волокном толщиной 50мм, утеплитель прокладывается с двух сторон: снизу - ветро- и влагозащитной паропроницаемой мембраной, сверху - пароизоляционной мембраной.
- Потолок первого этажа утеплен стекло-штапельным волокном толщиной 50мм с двумя слоями пароизоляции. Подшивается вагонкой класса "В" снизу потолочных балок. Между балками закладывается утеплитель - стекло - штапельное волокно толщиной 50мм, утеплитель прокладывается с двух сторон пароизоляционной мембраной. Внутренняя высота потолка 2,1 м.
- Кровельное покрытие - оцинкованная сталь в виде гофрированных листов.
- В бане устанавливаются входные и межкомнатные филенчатые двери. Ручками для открывания и замками филенчатые двери не комплектуются. Окна устанавливаются деревянные двойного остекления, размер 0,6х0,6м и 0,9х0,9м.
- В стоимость не входит
- В стоимость не входит
- В стоимость не входит
- Наружные стены выполняются из материала, выбранного заказчиком для строительства (цельный брус, клееный брус, оцилиндрованное бревно). Внутренние перегородки - каркасные, обшиваются вагонкой класса "В" с двух сторон. Под вагонку каркасных перегородок закладывается утеплитель - стекло-штапельное волокно толщиной 50мм, утеплитель прокладывается с двух сторон пароизоляционной мембраной.
- Полы бани двойные: черновой пол - обрезная доска толщиной 18-20мм, чистовой пол - половая строганная шпунтованная доска 30-40мм. Половые лаги выполняются сечением 150х50мм, балки устанавливаются с шагом ~0,5м.
- Полы утеплены стекло-штапельным волокном толщиной 50мм, утеплитель прокладывается с двух сторон: снизу - ветро- и влагозащитной паропроницаемой мембраной, сверху - пароизоляционной мембраной.
- Потолок первого этажа утеплен стекло-штапельным волокном толщиной 50мм с двумя слоями пароизоляции. Подшивается вагонкой класса "В" снизу потолочных балок. Между балками закладывается утеплитель - стекло - штапельное волокно толщиной 50мм, утеплитель прокладывается с двух сторон пароизоляционной мембраной. Внутренняя высота потолка 2,1 м.
- Кровельное покрытие - оцинкованная сталь в виде гофрированных листов.
- В бане устанавливаются входные и межкомнатные филенчатые двери. Ручками для открывания и замками филенчатые двери не комплектуются. Окна устанавливаются деревянные двойного остекления, размер 0,6х0,6м и 0,9х0,9м.
- В стоимость не входит
- В стоимость не входит
Что еще входит в стоимость:
Отправьте свои контакты и мы расчитаем вам смету
Скорее всего вам подойдут следующие проекты домов:
Проект двухэтажного дома Дом из оцилиндрованного бревна 6,0х6,0 м с террасой 2,0х5,5 м (проект № 8 Серёженька)
Семья с одним ребенком
Дом подходит для:
Дом подходит для:
Дом подходит для:









