Проект одноэтажной бани Б-57БП
Дом подходит для:
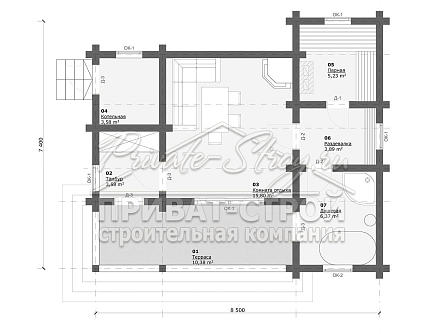
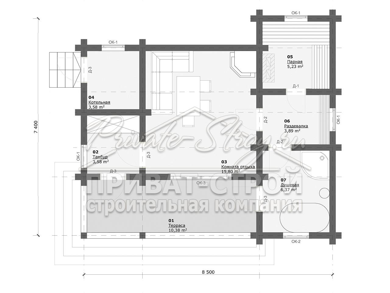
Площадь
56 м 2
Размер дома:
7,4 х 8,5
Этажей:
1
Спален:
1
Санузел:
1
Гараж:
Нет
Баня:
Нет
Терраса:
Нет
Панорамные окна:
Нет
Мастер-спальня:
Нет
Планировка
Характеристики
- Общая площадь: 56 м2
- Жилая площадь: 15 м2
- Количество этажей: 1
- Гараж: нет
- Площадь кровли: 64 м2
- Отделка: Без отделки
- Фундамент: Дома со свайно-винтовым фундаментом
Материалы и перечень работ
- Фундамент на винтовых сваях с обвязкой брусом
- Комплект дома из профилированного или клеенного бруса
- Половые и потолочные балки сечением 100х200 мм
- Черновой пол
- Стропильная система 50х200 мм
- Обрешетка
- Временная кровля под рубероид
- В стоимость не входит
- В стоимость не входит
- В стоимость не входит
- Фундамент на винтовых сваях с обвязкой брусом
- Комплект дома из профилированного или клеенного бруса
- Половые и потолочные балки сечением 100х200 мм
- Черновой пол
- Стропильная система 50х200 мм
- Обрешетка
- Временная кровля под рубероид
- В стоимость не входит
- В стоимость не входит
- В стоимость не входит
Что еще входит в стоимость:
Отправьте свои контакты и мы расчитаем вам смету
Скорее всего вам подойдут следующие проекты домов:
Проект одноэтажного дома Проект дома из бруса 10х8,5 (ДБ-92)
Семья с одним ребенком
Дом подходит для:
Дом подходит для:
Дом подходит для:
Дом подходит для:














