Проект одноэтажной бани LV35
Дом подходит для:
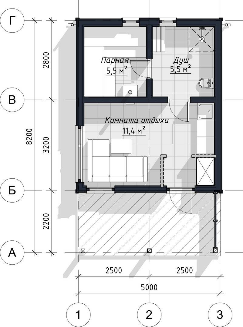
Площадь
35 м 2
Размер дома:
5х8,2
Этажей:
1
Спален:
1
Санузел:
1
Гараж:
Нет
Баня:
Нет
Терраса:
Нет
Панорамные окна:
Нет
Мастер-спальня:
Нет
Планировка
Фасады
О проекте
Компактный дом площадью 35 м² с жилой зоной 17 м² идеален для небольшой семьи. Одна спальня и один санузел создают уютное и функциональное пространство. Каркасная конструкция гарантирует тепло и надежность, а естественное освещение наполняет интерьер светом. Это место, где царит комфорт и спокойствие.Характеристики
- Общая площадь: 35 м2
- Жилая площадь: 17 м2
- Количество этажей: 1
- Гараж: нет
- Площадь кровли: 38 м2
- Отделка: Без отделки
- Фундамент: Дома с плитным фундаментом
Материалы и перечень работ
- Фундамент Монолитная ж/б плита 200мм
- Домокомплект заводского производства
- Несущие силовые конструкции
- Утепление стен 225мм
- Стропильная система
- Утепление кровли 300мм
- Кровля металлочерепица, комплект водосточной системы (пластик)
- Карнизы
- Подшивка свесов
- Окна
- Входные двери
- В стоимость не входит
- Фасад - широкая имитация бруса, покраска 2 слоя
- Фундамент Монолитная ж/б плита 200мм
- Домокомплект заводского производства
- Несущие силовые конструкции
- Утепление стен 225мм
- Стропильная система
- Утепление кровли 300мм
- Кровля металлочерепица, комплект водосточной системы (пластик)
- Карнизы
- Подшивка свесов
- Окна
- Входные двери
- В стоимость не входит
- Фасад - широкая имитация бруса, покраска 2 слоя
Что еще входит в стоимость:
Отправьте свои контакты и мы расчитаем вам смету
Скорее всего вам подойдут следующие проекты домов:
Проект одноэтажного дома 38
Семья с одним ребенком
Дом подходит для:
Дом подходит для:
Проект одноэтажной бани Барни-баня
Семья с одним ребенком
Баня подходит для:
Баня подходит для:
Проект одноэтажной бани Аква-баня
Семья с одним ребенком
Баня подходит для:
Баня подходит для:









