Проект одноэтажной бани LV41
Дом подходит для:
Площадь
41 м 2
Размер дома:
6x8
Этажей:
1
Спален:
1
Санузел:
1
Гараж:
Нет
Баня:
Нет
Терраса:
Нет
Панорамные окна:
Нет
Мастер-спальня:
Нет
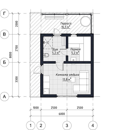
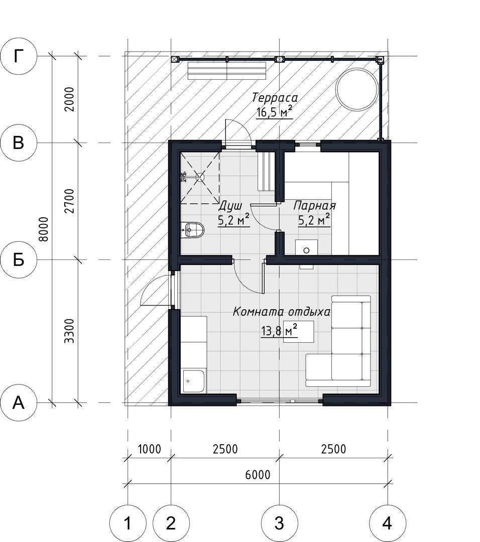
Планировка
Фасады
О проекте
Уютный дом площадью 41 м² с жилой зоной 19 м² предлагает комфорт и простор для семьи с одним ребенком. Одна спальня и один санузел создают удобное пространство, а каркасные стены дарят тепло и тишину. Продуманная планировка делает жизнь здесь гармоничной и удобной. Это дом, где каждая деталь продумана для вашего уюта.Характеристики
- Общая площадь: 41 м2
- Жилая площадь: 19 м2
- Количество этажей: 1
- Гараж: нет
- Площадь кровли: 46 м2
- Отделка: Без отделки
- Размер: 6x8
- Фундамент: Дома с плитным фундаментом
Материалы и перечень работ
- Фундамент Монолитная ж/б плита 200мм
- Домокомплект заводского производства, несущие силовые конструкции
- Утепление стен 225мм
- Стропильная система
- Утепление кровли 300мм,
- Кровля металлочерепица, комплект водосточной системы (пластик)
- Карнизы
- Подшивка свесов
- Окна
- Входные двери
- В стоимость не входит
- Фасад - широкая имитация бруса, покраска 2 слоя,
- Фундамент Монолитная ж/б плита 200мм
- Домокомплект заводского производства, несущие силовые конструкции
- Утепление стен 225мм
- Стропильная система
- Утепление кровли 300мм,
- Кровля металлочерепица, комплект водосточной системы (пластик)
- Карнизы
- Подшивка свесов
- Окна
- Входные двери
- В стоимость не входит
- Фасад - широкая имитация бруса, покраска 2 слоя,
Что еще входит в стоимость:
Отправьте свои контакты и мы расчитаем вам смету
Скорее всего вам подойдут следующие проекты домов:
Дом подходит для:
Дом подходит для:
Проект одноэтажного дома Муфрид
Семья с одним ребенком
Дом подходит для:
Дом подходит для:











