Проект двухэтажной бани P-087-1P
Дом подходит для:
Площадь
88 м 2
Размер дома:
8,8х7
Этажей:
2
Спален:
2
Санузел:
3
Гараж:
Нет
Баня:
Нет
Терраса:
Нет
Панорамные окна:
Нет
Мастер-спальня:
Нет
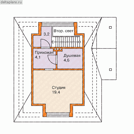
Планировка
Фасады
О проекте
Уютная баня из пеноблоков площадью 88 м² — место для отдыха и релаксации. Жилая зона 31 м² дополнена парной, создавая атмосферу тепла и покоя. Металлочерепица на крыше обеспечивает надежность, а две спальни делают пространство удобным. Здесь гармонично сочетаются практичность и комфорт.Характеристики
- Общая площадь: 87.7 м2
- Жилая площадь: 31.3 м2
- Количество этажей: 2
- Гараж: нет
- Площадь кровли: 91 м2
- Отделка: Без отделки
- Фундамент: Дома со свайно-ростверковым фундаментом
Материалы и перечень работ
- Фундамент: ленточный монолитный сильно-армированный свайно-ростверковый
- Песчаная подушка 400мм.
- Буронабивные армированные сваи диаметром 200мм, глубиной 2000мм.
- Высота цоколя 500мм, ширина ленты 400мм.
- Бетон заводского изготовления марки М-300 (В22,5)
- Несущие стены из пенобетонных блоков толщиной 300 мм (возможно 375мм) Плотность D500. Производитель (завод): Aerostone, Bonolit, El-block.
- Внутренние несущие стены из пенобетонных блоков толщиной 300 мм (возможно 375мм) Плотность D500.
- Армирование кладки через каждые три ряда.
- Пенобетонные блоки кладутся на специальный кладочный клей
- Устройство кирпичных армированных поясов под перекрытия
- Кровля — металло-черепица
- Усиленная стропильная система из доски 150*50 мм, 1 сорта, с шагом 580 мм.
- Все деревянные конструкции антисептируются в два слоя, специальным огне-био защитным составом Neomid 430ECO.
- Внешняя сторона четырехслойная диффузионная мембрана Ютавек 115.
- Первый класс цинкования – 275 г/кв.м.
- В стоимость не входят
- Ввод закладных утепленных труб D110мм. на глубину промерзания для подключения к септику (ЦК) и скважине/колодцу (ЦВ).
- Оформленные оконные и дверные проемы
- Фундамент: ленточный монолитный сильно-армированный свайно-ростверковый
- Песчаная подушка 400мм.
- Буронабивные армированные сваи диаметром 200мм, глубиной 2000мм.
- Высота цоколя 500мм, ширина ленты 400мм.
- Бетон заводского изготовления марки М-300 (В22,5)
- Несущие стены из пенобетонных блоков толщиной 300 мм (возможно 375мм) Плотность D500. Производитель (завод): Aerostone, Bonolit, El-block.
- Внутренние несущие стены из пенобетонных блоков толщиной 300 мм (возможно 375мм) Плотность D500.
- Армирование кладки через каждые три ряда.
- Пенобетонные блоки кладутся на специальный кладочный клей
- Устройство кирпичных армированных поясов под перекрытия
- Кровля — металло-черепица
- Усиленная стропильная система из доски 150*50 мм, 1 сорта, с шагом 580 мм.
- Все деревянные конструкции антисептируются в два слоя, специальным огне-био защитным составом Neomid 430ECO.
- Внешняя сторона четырехслойная диффузионная мембрана Ютавек 115.
- Первый класс цинкования – 275 г/кв.м.
- В стоимость не входят
- Ввод закладных утепленных труб D110мм. на глубину промерзания для подключения к септику (ЦК) и скважине/колодцу (ЦВ).
- Оформленные оконные и дверные проемы
Что еще входит в стоимость:
Отправьте свои контакты и мы расчитаем вам смету
Скорее всего вам подойдут следующие проекты домов:
Проект двухэтажного дома U-088-1P
Семья с одним ребенком
Дом подходит для:
Дом подходит для:




