Проект двухэтажной бани Радонеж
Дом подходит для:
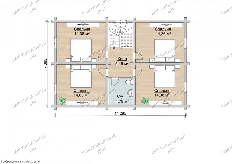
Площадь
134 м 2
Размер дома:
11,6х8,7
Этажей:
2
Спален:
1
Санузел:
1
Гараж:
Нет
Баня:
Нет
Терраса:
Нет
Панорамные окна:
Нет
Мастер-спальня:
Нет
Планировка
Фасады
О проекте
Дом Радонеж площадью 134 м² с жилыми 106 м² сочетает в себе традиции и современность. Брус в стенах дарит тепло, а баня добавляет расслабления. Одна спальня и санузел делают его идеальным для небольшой семьи. Свайно-ростверковый фундамент обеспечивает надежность этого уютного жилья.Характеристики
- Общая площадь: 134 м2
- Жилая площадь: 106 м2
- Количество этажей: 2
- Гараж: нет
- Площадь кровли: 138 м2
- Отделка: Без отделки
- Фундамент: Дома со свайно-ростверковым фундаментом
Материалы и перечень работ
- свайно-ростверковый (сваи буронабивные d=250 мм с расширением 500 мм (технология TISSE), глубина 2м + ростверк 300х400мм, заглубленный на 100 мм.).
- Комплект дома нашего производства попадает на объект заказчика в виде конструктора, полностью готового к сборке: клееный брус на производстве зарезан по проекту, с запиленными чашками, с засверленными под шпильки отверстиями и пропитанный антисептиком.
- На все наши объекты, независимо от размера строения и нагрузок на кровлю, мы предлагаем стропильную систему, выполненную на заводе на нашем станке Hundegger K2i, как комплект деталей, готовый для сборки на объекте.
- устройство обрешетки, контробрешетки, внутренней обрешетки, пароизоляции, утепления (от 200 мм и более), гидроизоляции, укладка кровельного материала (металлочерепица, мягкая кровля (монтаж OSB в стоимость входит), а также, устройство водосточной системы и прочих элементов (коньковые, лобовые, торцевые, ендовы, ребра).
- Установка окон и дверей с наличниками и подоконниками.
- Устройство инженерных систем (электрика, отопление, водоснабжение, канализация, вентиляция).
- Внешняя и внутренняя покраска стен.
- Устройство черновых и чистовых полов, включая плинтуса.
- Монтаж чистовых потолков, включая потолочный плинтус.
- свайно-ростверковый (сваи буронабивные d=250 мм с расширением 500 мм (технология TISSE), глубина 2м + ростверк 300х400мм, заглубленный на 100 мм.).
- Комплект дома нашего производства попадает на объект заказчика в виде конструктора, полностью готового к сборке: клееный брус на производстве зарезан по проекту, с запиленными чашками, с засверленными под шпильки отверстиями и пропитанный антисептиком.
- На все наши объекты, независимо от размера строения и нагрузок на кровлю, мы предлагаем стропильную систему, выполненную на заводе на нашем станке Hundegger K2i, как комплект деталей, готовый для сборки на объекте.
- устройство обрешетки, контробрешетки, внутренней обрешетки, пароизоляции, утепления (от 200 мм и более), гидроизоляции, укладка кровельного материала (металлочерепица, мягкая кровля (монтаж OSB в стоимость входит), а также, устройство водосточной системы и прочих элементов (коньковые, лобовые, торцевые, ендовы, ребра).
- Установка окон и дверей с наличниками и подоконниками.
- Устройство инженерных систем (электрика, отопление, водоснабжение, канализация, вентиляция).
- Внешняя и внутренняя покраска стен.
- Устройство черновых и чистовых полов, включая плинтуса.
- Монтаж чистовых потолков, включая потолочный плинтус.
Что еще входит в стоимость:
Отправьте свои контакты и мы расчитаем вам смету
Скорее всего вам подойдут следующие проекты домов:
Дом подходит для:
Дом подходит для:
Дом подходит для:











