Проект одноэтажной бани Верея
Дом подходит для:
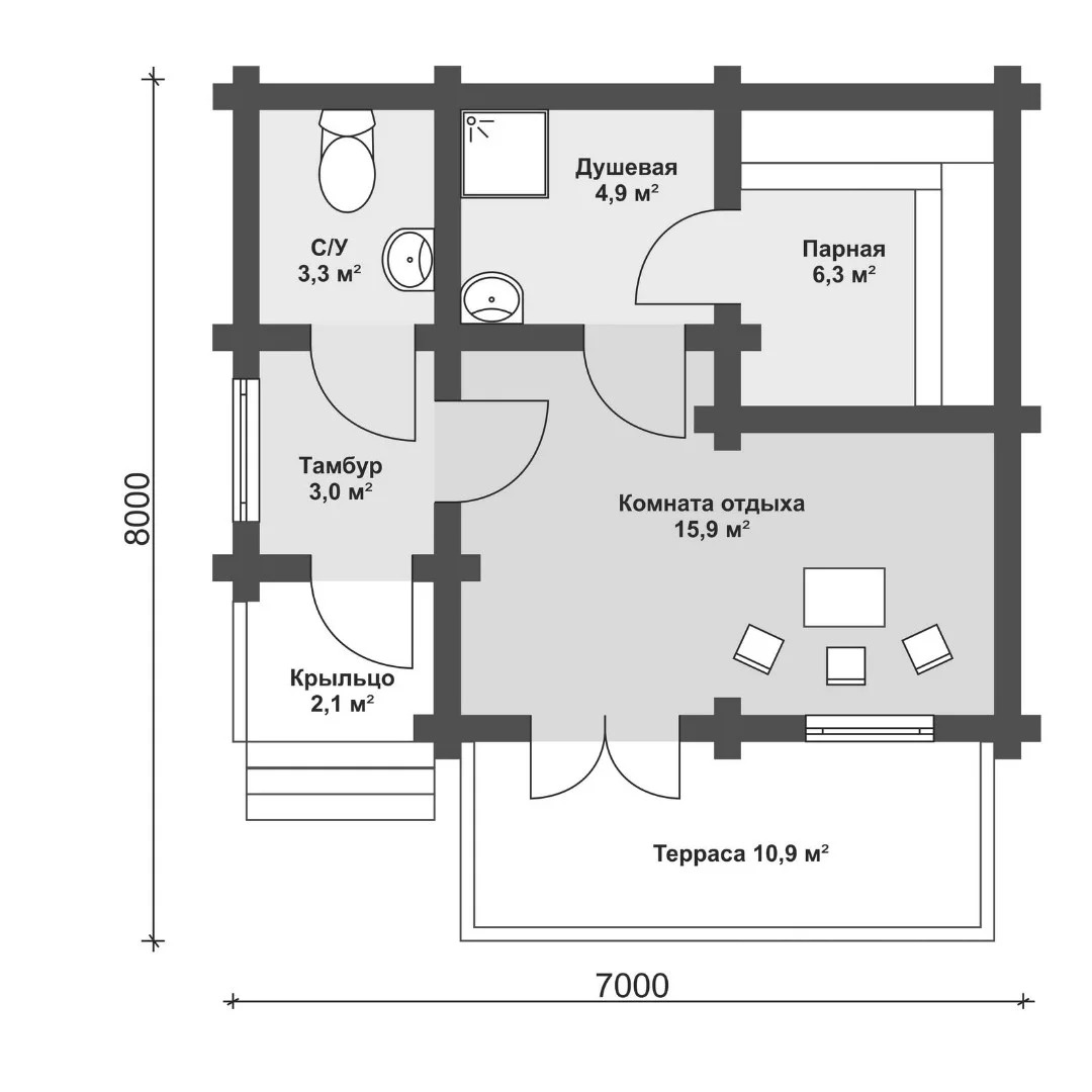
Площадь
46 м 2
Размер дома:
7 х 8
Этажей:
1
Спален:
1
Санузел:
1
Гараж:
Нет
Баня:
Нет
Терраса:
Да
Панорамные окна:
Нет
Мастер-спальня:
Нет
Планировка
Характеристики
- Общая площадь: 46 м2
- Жилая площадь: 33 м2
- Количество этажей: 1
- Гараж: нет
- Площадь кровли: 55 м2
- Форма: Квадратные дома
- Тип кровли: Дома с четырехскатной крышей (вальмовой)
- Пристрой: Дома с террасой
- Отделка: С черновой отделкой
Материалы и перечень работ
- Нет
- Наружные и капитальные внутренние стены 1-го и 2 этажей (мансардного), а также фронтоны выполняются из бревна, диаметром 240-250 мм (северный лес, Вологодская область);
- Продольное и перпендикулярное соединение бревен — в чашу (Русская технология);
- Бревна укрепляются березовыми нагелями, которые устанавливаются в шахматном порядке;
- Утепление стыка бревен выполняется мохом;
- Черновой пол 1-го этажа производится из обрезной доски толщиной 25 мм;
- Временная кровля (руберойд)
- Стропила выполняются из доски 50х200 мм с шагом 600 мм
- Диффузионно-гидроизоляционная пленка
- Контробрешетка — брусок 50х50 мм, устанавливается вдоль стропил и закрепляет гидроизоляцию обрешетка монтируется по волне металлочерепицы из доски 25х100 мм
- Ширина карниза и выноса на фронтонах не менее 500 мм
- В стоимость не входит
- В стоимость не входит
- В стоимость не входит
- Нет
- Наружные и капитальные внутренние стены 1-го и 2 этажей (мансардного), а также фронтоны выполняются из бревна, диаметром 240-250 мм (северный лес, Вологодская область);
- Продольное и перпендикулярное соединение бревен — в чашу (Русская технология);
- Бревна укрепляются березовыми нагелями, которые устанавливаются в шахматном порядке;
- Утепление стыка бревен выполняется мохом;
- Черновой пол 1-го этажа производится из обрезной доски толщиной 25 мм;
- Временная кровля (руберойд)
- Стропила выполняются из доски 50х200 мм с шагом 600 мм
- Диффузионно-гидроизоляционная пленка
- Контробрешетка — брусок 50х50 мм, устанавливается вдоль стропил и закрепляет гидроизоляцию обрешетка монтируется по волне металлочерепицы из доски 25х100 мм
- Ширина карниза и выноса на фронтонах не менее 500 мм
- В стоимость не входит
- В стоимость не входит
- В стоимость не входит
Что еще входит в стоимость:
Отправьте свои контакты и мы расчитаем вам смету
Скорее всего вам подойдут следующие проекты домов:
Дом подходит для:
Дом подходит для:
Дом подходит для:











