Проект одноэтажного дома № 073
Дом подходит для:
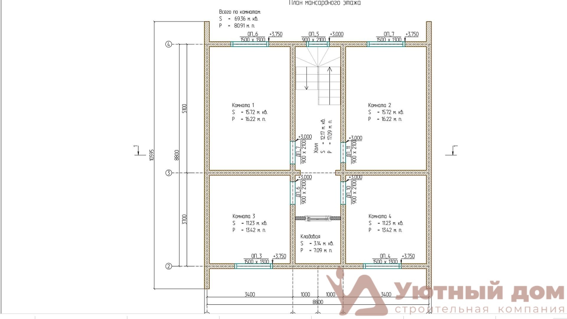
Площадь
139 м 2
Размер дома:
9x9
Этажей:
1
Спален:
5
Санузел:
1
Гараж:
Нет
Баня:
Нет
Терраса:
Нет
Панорамные окна:
Нет
Мастер-спальня:
Нет
Планировка
Характеристики
- Общая площадь: 139 м2
- Жилая площадь: 107 м2
- Количество этажей: 1
- Гараж: нет
- Площадь кровли: 144 м2
- Отделка: Без отделки
- Размер: 9x9
Материалы и перечень работ
- В стоимость не входит
- Внешние стены: обычный брус 150*150 мм.
- Внутренние перегородки: брус 100*150 мм.
- Половые и потолочные балки: брус 100*150 мм.
- Черновой пол: доска 25*100мм или 25*150 мм.
- Обработка антисептиком первого венца и половых балок.
- Фронтоны крыши: брус 150*150 мм.
- Обрешетка крыши: доска 25*150 мм.
- Стропильная система: доска 50*150 мм.
- Временная кровля: рубероид.
- В стоимость не входят
- В стоимость не входит
- В стоимость не входит
- В стоимость не входит
- Внешние стены: обычный брус 150*150 мм.
- Внутренние перегородки: брус 100*150 мм.
- Половые и потолочные балки: брус 100*150 мм.
- Черновой пол: доска 25*100мм или 25*150 мм.
- Обработка антисептиком первого венца и половых балок.
- Фронтоны крыши: брус 150*150 мм.
- Обрешетка крыши: доска 25*150 мм.
- Стропильная система: доска 50*150 мм.
- Временная кровля: рубероид.
- В стоимость не входят
- В стоимость не входит
- В стоимость не входит
Что еще входит в стоимость:
Отправьте свои контакты и мы расчитаем вам смету
Скорее всего вам подойдут следующие проекты домов:
Дом подходит для:
Проект одноэтажного дома Одноэтажного дом из бруса 9.5х12 ДБ-7
Семья с одним ребенком
Дом подходит для:
Дом подходит для:
Дом подходит для:



