Проект одноэтажного дома 049
Дом подходит для:
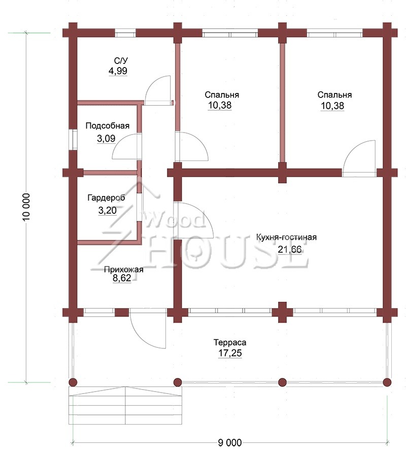
Площадь
80 м 2
Размер дома:
10х9
Этажей:
1
Спален:
2
Санузел:
1
Гараж:
Нет
Баня:
Нет
Терраса:
Да
Панорамные окна:
Нет
Мастер-спальня:
Нет
Планировка
Фасады
О проекте
Уютный дом из бревна площадью 80 м² с жилыми 43 м² идеален для семьи с одним ребенком, предлагая комфорт и практичность. Металлочерепичная кровля придает ему современности, а две спальни создают уют. Свайный фундамент обеспечивает надежность, а продуманная планировка делает пространство функциональным. Это жилье для тех, кто ценит естественность и тепло.Характеристики
- Общая площадь: 80 м2
- Жилая площадь: 43 м2
- Количество этажей: 1
- Гараж: нет
- Площадь кровли: 84 м2
- Форма: Квадратные дома
- Тип кровли: Дома с двускатной крышей
- Пристрой: Дома с террасой
- Отделка: Без отделки
- Фундамент: Дома со свайным фундаментом
Материалы и перечень работ
- Геодезические работы: разбивка осей, нивелировка, привязка дома на участке;
- Ж/б сваи армированные 150х150 – 3000 мм;
- Стакан на сваи 200х200 мм;
- Доставка и установка ж/б свай;
- Все расходные и сопутствующие материалы необходимые для установки сваи включено;
- Стены – ОЦБ 200/ 220/240 (в зависимости от выбранной комплектации)
- Укладка первого ряда на гидроизоляцию;
- Утепление чашки холофайбером;
- Лаги пола брус 100х200мм;
- Монтаж стен бруса на нагель, шпилечная система, узел Сила;
- Стропильная конструкция из доски 45х195 мм;
- Система обрешетки / контробрешетки 25х100, 50х50 мм;
- Пленки паро-гидроизоляции;
- Система снегозадержания;
- Кровля металлочерепица Grand Line, цвет на выбор;
- В стоимость не входит
- В стоимость не входит
- В стоимость не входит
- Геодезические работы: разбивка осей, нивелировка, привязка дома на участке;
- Ж/б сваи армированные 150х150 – 3000 мм;
- Стакан на сваи 200х200 мм;
- Доставка и установка ж/б свай;
- Все расходные и сопутствующие материалы необходимые для установки сваи включено;
- Стены – ОЦБ 200/ 220/240 (в зависимости от выбранной комплектации)
- Укладка первого ряда на гидроизоляцию;
- Утепление чашки холофайбером;
- Лаги пола брус 100х200мм;
- Монтаж стен бруса на нагель, шпилечная система, узел Сила;
- Стропильная конструкция из доски 45х195 мм;
- Система обрешетки / контробрешетки 25х100, 50х50 мм;
- Пленки паро-гидроизоляции;
- Система снегозадержания;
- Кровля металлочерепица Grand Line, цвет на выбор;
- В стоимость не входит
- В стоимость не входит
- В стоимость не входит
Что еще входит в стоимость:
Отправьте свои контакты и мы расчитаем вам смету
Скорее всего вам подойдут следующие проекты домов:
Дом подходит для:
Дом подходит для:
Дом подходит для:







