Проект одноэтажного дома 100
Дом подходит для:
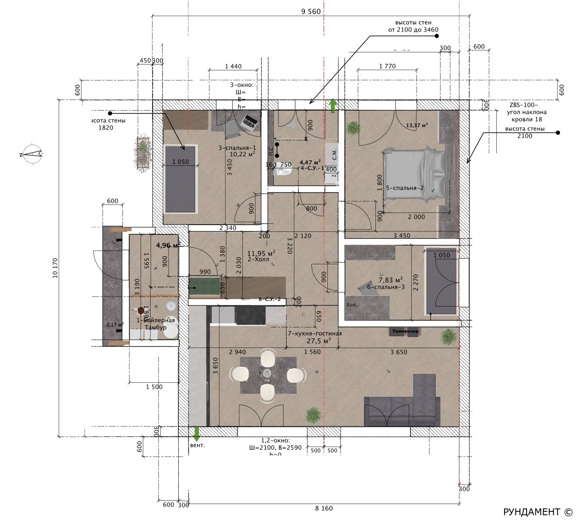
Площадь
100 м 2
Размер дома:
8x10
Этажей:
1
Спален:
3
Санузел:
1
Гараж:
Нет
Баня:
Нет
Терраса:
Нет
Панорамные окна:
Нет
Мастер-спальня:
Нет
Планировка
Характеристики
- Общая площадь: 100 м2
- Жилая площадь: 74 м2
- Количество этажей: 1
- Гараж: нет
- Площадь кровли: 104 м2
- Отделка: Без отделки
- Размер: 8x10
- Фундамент: Дома с плитным фундаментом
Материалы и перечень работ
- Монолитный Фундамент РУНДАМЕНТ ИФС-М - выполненный из двух составляющих: 1 этап - монолитная армированная лента в несъёмной опалубке: Монолитная армированная плита в несъёмной опалубке из Эппс и ппс, с шестью нитями армирования арматурой д12, лежащая на песчаной подушке 400мм + Монолитная армированная плита с двойной решеткой армирования (ячейка 00х200мм, из арматуры д10), с нижнем утеплением 100 мм и слоем гидроизоляции, лежащая на песчаной подушке 400 мм, с выполненными закладными под электроснабжение, водоснабжение и выполненной разводкой канализации. Заливается бетоном В22,5 (м300) п4.
- Стены 1го этажа: h=2,95м (с учётом монолитного пояса) из арболитовых блоков (толщина стены 300мм) выполнены согласно проекта, монолитные перемычки над окнами и проёмами выполнены из U-образных арболитовых блоков с заполнением бетоном и армированием арматурой.
- Монолитный армированный пояс, выполненный по всем несущим стенам (согласно проекта дома) с внешним утеплением арболитовым блоком 150 мм, из бетоно м300, с 4-мя нитями армирования из арматуру Д10, сечение по внешним стенам 150х200мм, по внутренним стенам 150х300мм.
- Монолитно-сборное перекрытие из жб плит перекрытий 3пб или ПНО (в зависимости от региона строительства), с устройством монолитных участков согласно проекта.
- Деревянные балки перекрытия между 1 этажом и холодным чердаком, сечение балок 50х200мм, межосевое расстояние 600мм, разложенные согласно проекту здания.
- Внутренние межкомнатные Перегородки: из арболитовых блоков, толщина перегородок 200мм.
- Стропильная система здания: выполненная из стропил сечением 50х200 мм, лежащим на мауэрлате согласно проекту здания, с разделительной гидроизоляцией, контр брусом 50х50мм, обрешёткой из обрезной доски 25х100мм и фанерным слоем из влагостойкой фанеры ОСБ 10 мм.
- Кровельное покрытие Шинглас (цвет и форма согласно прайса) с кровельными планками необходимыми для монтажа, и подкладочным ковром по внешним свесам (согласно проекта здания)
- В стоимость не входит
- В стоимость не входит
- В стоимость не входит
- Монолитный Фундамент РУНДАМЕНТ ИФС-М - выполненный из двух составляющих: 1 этап - монолитная армированная лента в несъёмной опалубке: Монолитная армированная плита в несъёмной опалубке из Эппс и ппс, с шестью нитями армирования арматурой д12, лежащая на песчаной подушке 400мм + Монолитная армированная плита с двойной решеткой армирования (ячейка 00х200мм, из арматуры д10), с нижнем утеплением 100 мм и слоем гидроизоляции, лежащая на песчаной подушке 400 мм, с выполненными закладными под электроснабжение, водоснабжение и выполненной разводкой канализации. Заливается бетоном В22,5 (м300) п4.
- Стены 1го этажа: h=2,95м (с учётом монолитного пояса) из арболитовых блоков (толщина стены 300мм) выполнены согласно проекта, монолитные перемычки над окнами и проёмами выполнены из U-образных арболитовых блоков с заполнением бетоном и армированием арматурой.
- Монолитный армированный пояс, выполненный по всем несущим стенам (согласно проекта дома) с внешним утеплением арболитовым блоком 150 мм, из бетоно м300, с 4-мя нитями армирования из арматуру Д10, сечение по внешним стенам 150х200мм, по внутренним стенам 150х300мм.
- Монолитно-сборное перекрытие из жб плит перекрытий 3пб или ПНО (в зависимости от региона строительства), с устройством монолитных участков согласно проекта.
- Деревянные балки перекрытия между 1 этажом и холодным чердаком, сечение балок 50х200мм, межосевое расстояние 600мм, разложенные согласно проекту здания.
- Внутренние межкомнатные Перегородки: из арболитовых блоков, толщина перегородок 200мм.
- Стропильная система здания: выполненная из стропил сечением 50х200 мм, лежащим на мауэрлате согласно проекту здания, с разделительной гидроизоляцией, контр брусом 50х50мм, обрешёткой из обрезной доски 25х100мм и фанерным слоем из влагостойкой фанеры ОСБ 10 мм.
- Кровельное покрытие Шинглас (цвет и форма согласно прайса) с кровельными планками необходимыми для монтажа, и подкладочным ковром по внешним свесам (согласно проекта здания)
- В стоимость не входит
- В стоимость не входит
- В стоимость не входит
Что еще входит в стоимость:
Отправьте свои контакты и мы расчитаем вам смету
Скорее всего вам подойдут следующие проекты домов:
Проект одноэтажного дома 106
Семья с двумя детьми
Дом подходит для:
Дом подходит для:

