Проект двухэтажного дома 10х16,10
Площадь
280 м 2
Размер дома:
10x16
Этажей:
2
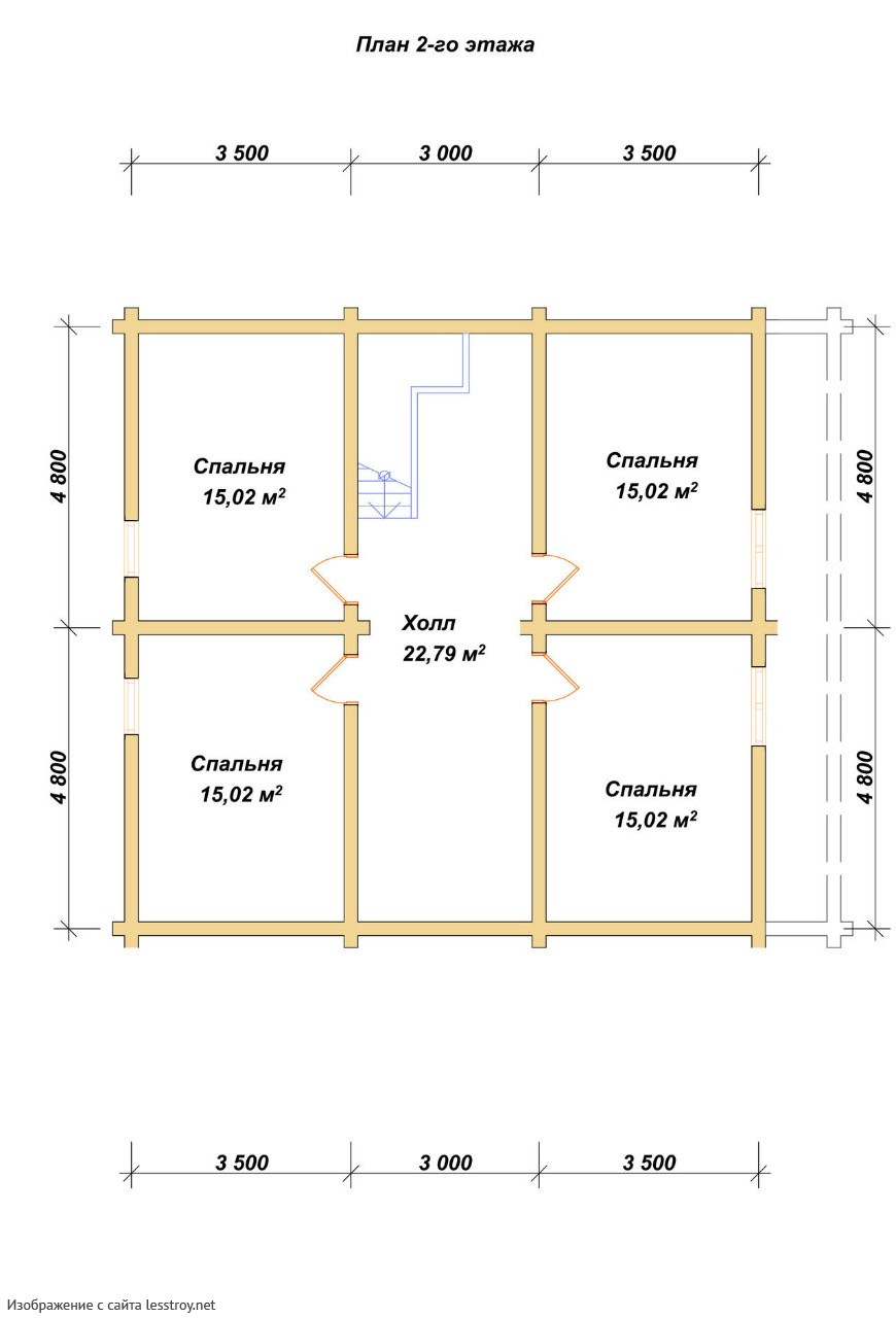
Спален:
4
Санузел:
0
Гараж:
Нет
Баня:
Нет
Терраса:
Нет
Панорамные окна:
Нет
Мастер-спальня:
Нет
О проекте
Дом, в котором не нужно переставлять вещи — они уже на идеальных местах. В этом доме — 280 м² по-настоящему полезной площади. Крыша из рубероид подчёркивает современный облик дома. Двухэтажная эргономичная планировка делает зонирование более логичным. Дом спроектирован в духе дома в стиле русский.Характеристики
- Общая площадь: 280 м2
- Количество этажей: 2
- Стиль, разновидность: Дома в стиле Русский
- Форма: Прямоугольные дома
- Тип кровли: Дома с двускатной крышей
- Отделка: Без отделки
- Размер: 10x16
Отправьте свои контакты и мы расчитаем вам смету
Скорее всего вам подойдут следующие проекты домов:
Проект двухэтажного дома Дом из оцилиндрованного бревна ОЦБ-24
Семья с двумя детьми
Дом подходит для:
Дом подходит для:
Дом подходит для:
Дом подходит для:












