Проект двухэтажного дома 11-15
Площадь
176 м 2
Размер дома:
Этажей:
2
Спален:
4
Санузел:
0
Гараж:
Нет
Баня:
Нет
Терраса:
Нет
Панорамные окна:
Нет
Мастер-спальня:
Нет
О проекте
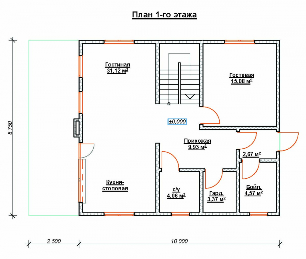
Дом, где красивые вещи действительно удобны в использовании Благодаря 176 м² можно реализовать все бытовые задачи с комфортом. Материал кровли — металлочерепица, что добавляет зданию индивидуальность. Двухэтажная грамотная планировка разделяет приватные и общественные зоны. Выбор Каркас обусловлен его теплоизоляционными свойствами.Характеристики
- Общая площадь: 176 м2
- Количество этажей: 2
- Стиль, разновидность: Дома в ином стиле
- Форма: Квадратные дома
- Тип кровли: Дома с двускатной крышей
- Отделка: Без отделки
Отправьте свои контакты и мы расчитаем вам смету
Скорее всего вам подойдут следующие проекты домов:
Дом подходит для:
Дом подходит для:
Проект двухэтажного дома Дом из СИП-панелей ЛЕГЕНДА 154 м.кв.
Семья с двумя детьми
Дом подходит для:
Дом подходит для:














