Ваш город:

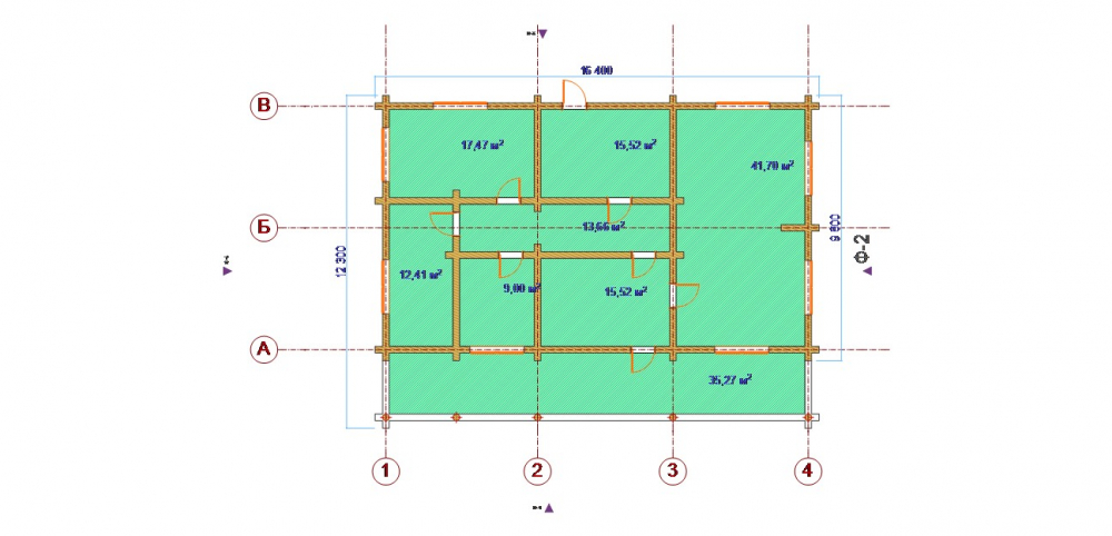
Проект одноэтажного дома 12.3 на 16.4

Площадь: 250 м2
Размер:
Дом подходит для:
Для большой семьи
Этажей:
1
Стены:
Кровля:
Металлочерепица
Цена:
Оставить заявку
Площадь
250 м 2
Размер дома:
Этажей:
1
Спален:
4
Санузел:
0
Гараж:
Нет
Баня:
Нет
Терраса:
Нет
Панорамные окна:
Нет
Мастер-спальня:
Нет
О проекте
Здесь даже кладовка кажется уютной. Даже при 250 м² пространство не теряет своей гармонии. Наличие 4 спальни удовлетворит запросы семьи с детьми. Дом спроектирован в духе дома в классическом стиле. Одноэтажная уютная планировка разделяет приватные и общественные зоны.

Характеристики
  • Общая площадь: 250 м2
  • Количество этажей: 1
  • Стиль, разновидность: Дома в ином стиле
  • Форма: Прямоугольные дома
  • Тип кровли: Дома с двускатной крышей
  • Отделка: Без отделки
Отправьте свои контакты и мы расчитаем вам смету
Прикрепить документ
Скорее всего вам подойдут следующие проекты домов: