Ваш город:

Проект двухэтажного дома 144 ПП

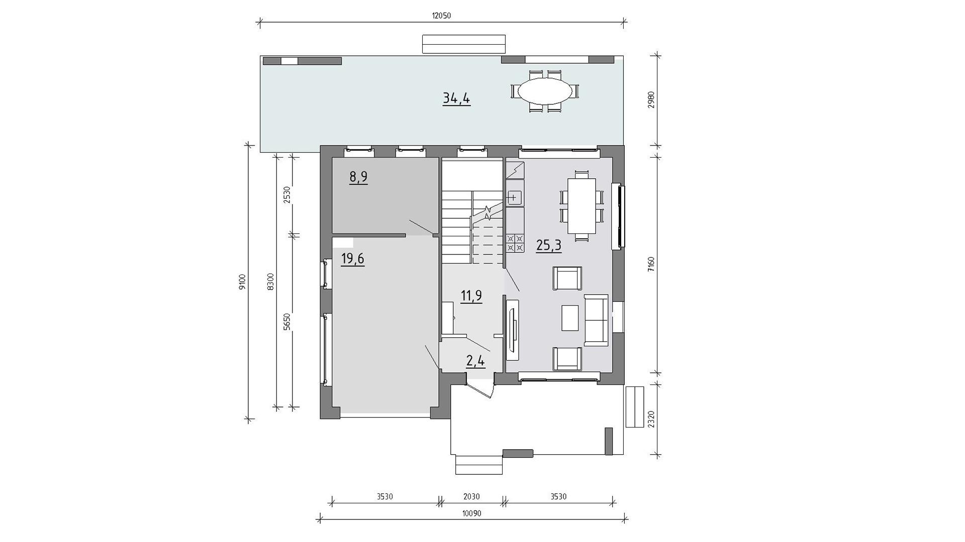
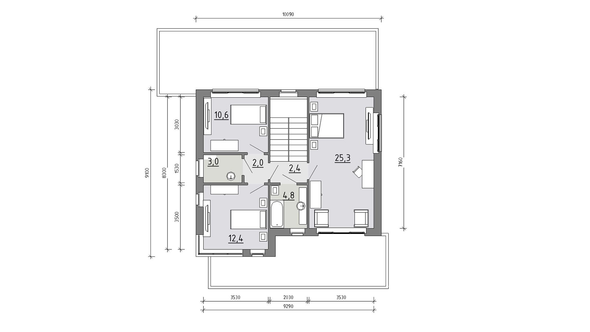
Площадь: 162 м2
Размер: 12х9,1
Дом подходит для:
Семья с двумя детьми
Этажей:
2
Стены:
Кровля:
Профнастил
Цена:
Оставить заявку
Площадь
162 м 2
Размер дома:
12х9,1
Этажей:
2
Спален:
3
Санузел:
1
Гараж:
Да
Баня:
Нет
Терраса:
Нет
Панорамные окна:
Нет
Мастер-спальня:
Нет
Фасады
О проекте
Уютный дом площадью 162 м² с жилой зоной 137 м² идеален для семьи с двумя детьми. Три спальни и один санузел создают компактное и функциональное пространство. Монолитные стены гарантируют тепло и надежность, а естественное освещение наполняет интерьер светом. Это место, где царит комфорт и спокойствие.

Характеристики
  • Общая площадь: 162 м2
  • Жилая площадь: 137 м2
  • Количество этажей: 2
  • Гараж: 19,6
  • Площадь кровли: 163 м2
  • Отделка: Без отделки
  • Фундамент: Дома с плитным фундаментом
Материалы и перечень работ
  • Плита 20см, цоколь 30см
  • Монолитные стены 1го этажа толщиной 100мм
  • Монолитное перекрытие 1го этажа толщина 150мм пролёт до 4м
  • Монолитные стены 2го этажа толщиной 100мм
  • Монолитное перекрытие 2го этажа толщина 150мм пролёт до 4м
  • Монтаж утеплителя фасада 150мм базальтовая плита плотность 70-80кг/куб
  • Плоская не эксплуатируемая кровля
  • Монтаж трубы дымоходной из кирпича
  • Утепление плоской кровли по плите перекрытия 150мм экструдированный пенополистирол
  • Подшивка потолков на крыльце и веранде софитами виниловыми
  • Мотаж системы водослива пластиковый
  • Установка пластиковых окон профиль 70мм открывание одна створка
  • В стоимость не входит
  • Фасад натуральный камень
  • Плита 20см, цоколь 30см
  • Монолитные стены 1го этажа толщиной 100мм
  • Монолитное перекрытие 1го этажа толщина 150мм пролёт до 4м
  • Монолитные стены 2го этажа толщиной 100мм
  • Монолитное перекрытие 2го этажа толщина 150мм пролёт до 4м
  • Монтаж утеплителя фасада 150мм базальтовая плита плотность 70-80кг/куб
  • Плоская не эксплуатируемая кровля
  • Монтаж трубы дымоходной из кирпича
  • Утепление плоской кровли по плите перекрытия 150мм экструдированный пенополистирол
  • Подшивка потолков на крыльце и веранде софитами виниловыми
  • Мотаж системы водослива пластиковый
  • Установка пластиковых окон профиль 70мм открывание одна створка
  • В стоимость не входит
  • Фасад натуральный камень
Что еще входит в стоимость:
Фото и видеоотчет
Отправьте свои контакты и мы расчитаем вам смету
Прикрепить документ
Скорее всего вам подойдут следующие проекты домов: