Проект двухэтажного дома №164-1
Дом подходит для:
Площадь
152 м 2
Размер дома:
10х12
Этажей:
2
Спален:
3
Санузел:
2
Гараж:
Нет
Баня:
Нет
Терраса:
Нет
Панорамные окна:
Нет
Мастер-спальня:
Нет
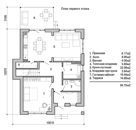
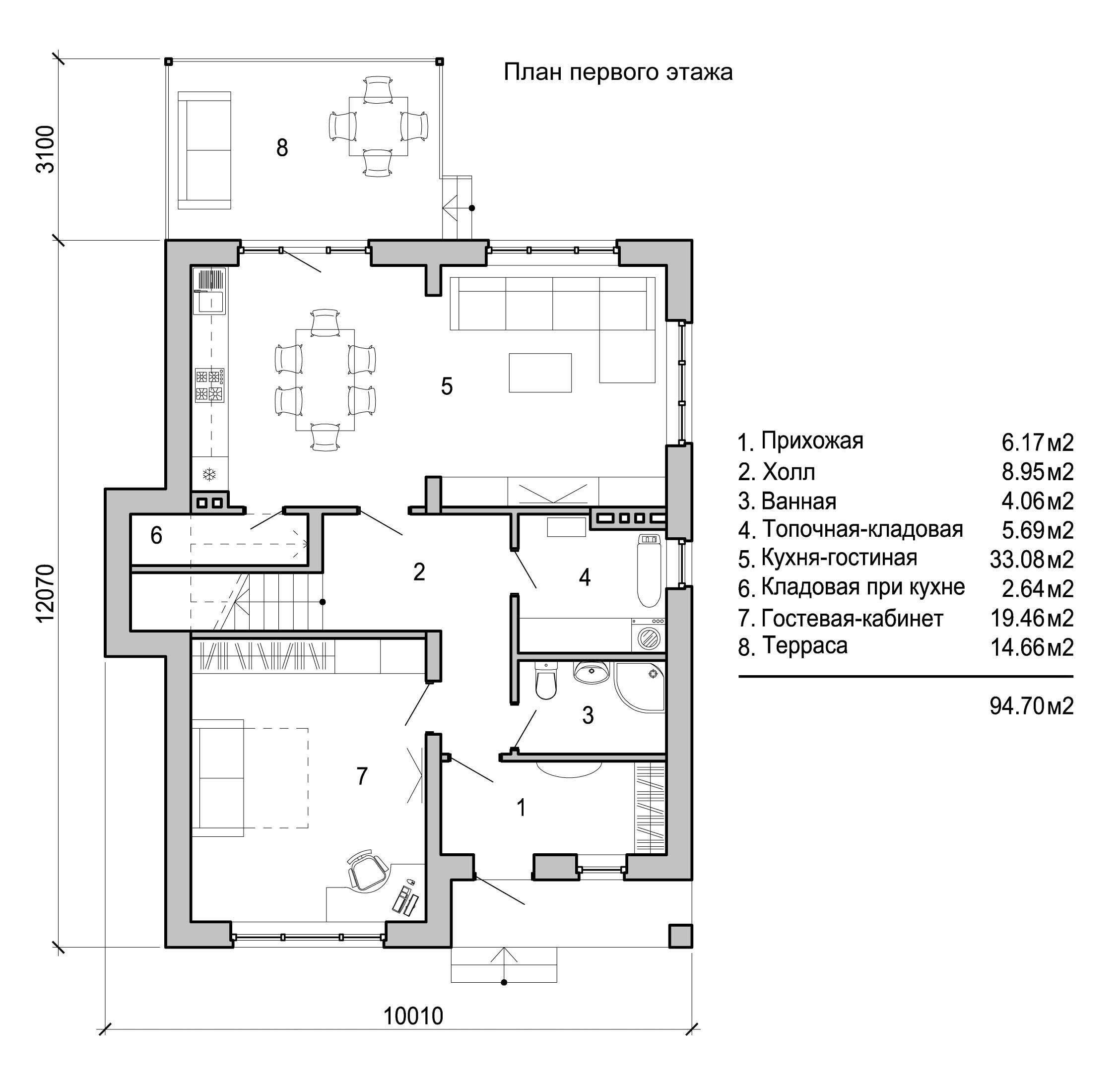
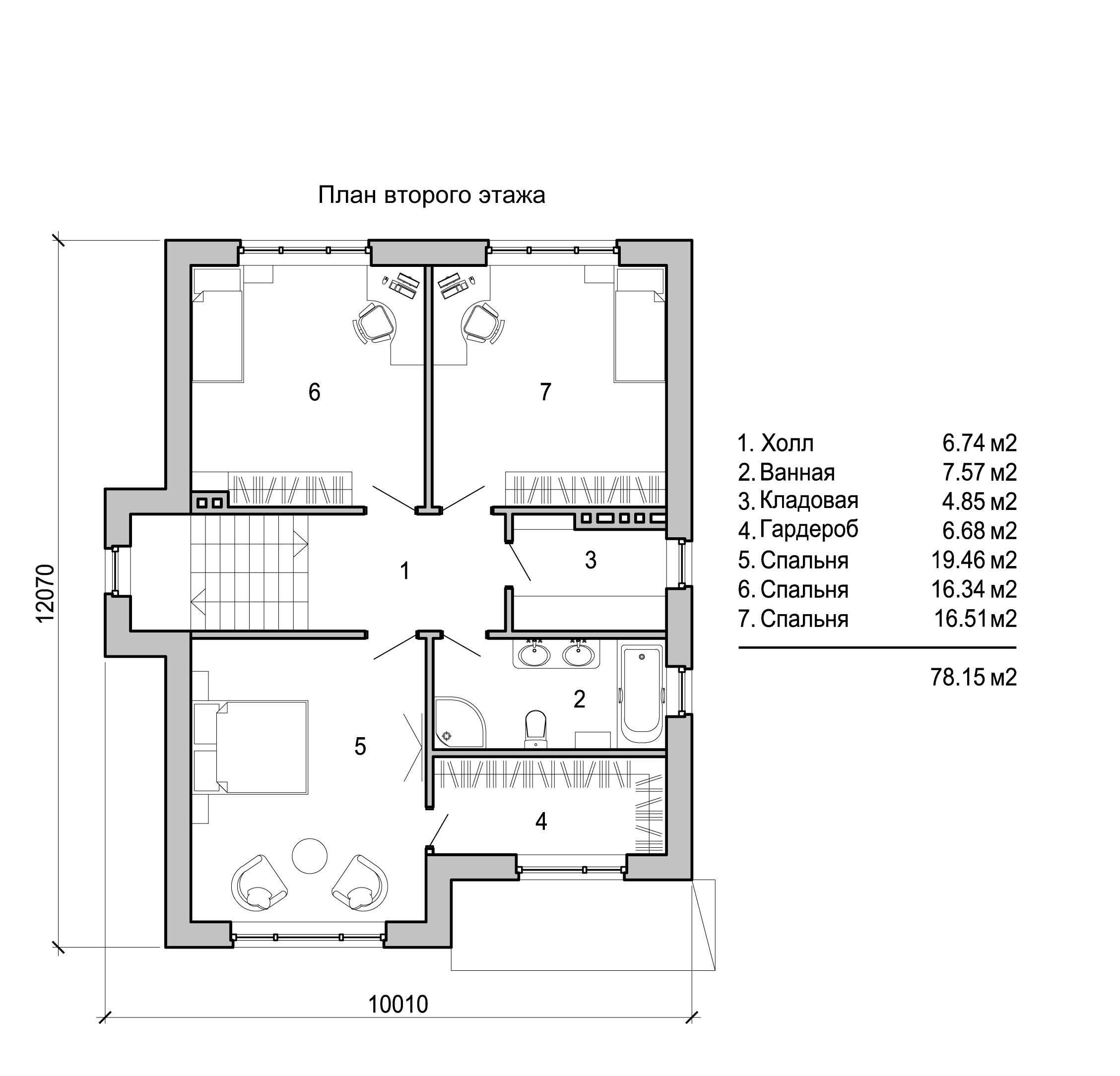
Планировка
Фасады
О проекте
Просторный дом площадью 152 м² с жилыми 127 м² идеален для семьи с двумя детьми. Керамические блоки стен обеспечивают надежность и тепло, а металлочерепица завершает образ добротного жилья. Внутри — светлые и уютные помещения с кирпичной отделкой, создающие атмосферу уюта. Здесь каждая деталь продумана для комфортной жизни.Характеристики
- Общая площадь: 152 м2
- Жилая площадь: 127 м2
- Количество этажей: 2
- Гараж: нет
- Площадь кровли: 159 м2
- Форма: Квадратные дома
- Тип кровли: Дома с многощипцовой крышей
- Отделка: Без отделки
- Отделка фасада: Дома с кирпичной отделкой
- Фундамент: Дома с плитным фундаментом
Материалы и перечень работ
- Устройство железобетонной плиты фундамента 350 мм (В 22,5/М300)
- Гидроизоляция наплавляемая
- Бетонная подготовка 100 мм
- Вводы сетей (водоснабжение, канализация, электроснабжение)
- Песчаное основание 300 мм
- Устройство внутренних несущих стен и перегородок из рядового кирпича
- Устройство монолитных железобетонных перемычек с утеплением
- Устройство монолитного армопояса
- Устройство вентканалов из полнотелого кирпича 1НФ
- Устройство перекрытия из железобетонных плит
- Монтаж стропильной системы
- Монтаж покрытия кровли: металлочерепица
- Отделка вентканала, козырек на вентканал
- Монтаж водосточной системы и снегозадержателей
- В стоимость не входит
- В стоимость не входит
- В стоимость не входит
- Устройство железобетонной плиты фундамента 350 мм (В 22,5/М300)
- Гидроизоляция наплавляемая
- Бетонная подготовка 100 мм
- Вводы сетей (водоснабжение, канализация, электроснабжение)
- Песчаное основание 300 мм
- Устройство внутренних несущих стен и перегородок из рядового кирпича
- Устройство монолитных железобетонных перемычек с утеплением
- Устройство монолитного армопояса
- Устройство вентканалов из полнотелого кирпича 1НФ
- Устройство перекрытия из железобетонных плит
- Монтаж стропильной системы
- Монтаж покрытия кровли: металлочерепица
- Отделка вентканала, козырек на вентканал
- Монтаж водосточной системы и снегозадержателей
- В стоимость не входит
- В стоимость не входит
- В стоимость не входит
Что еще входит в стоимость:
Отправьте свои контакты и мы расчитаем вам смету
Скорее всего вам подойдут следующие проекты домов:
Дом подходит для:
Дом подходит для:
Дом подходит для:












