Проект двухэтажного дома 21-186-1
Дом подходит для:
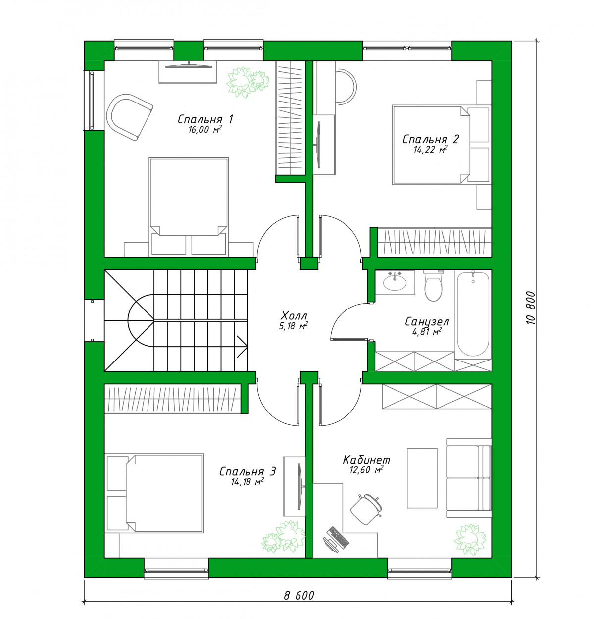
Площадь
186 м 2
Размер дома:
10,8*8,6
Этажей:
2
Спален:
4
Санузел:
2
Гараж:
Нет
Баня:
Нет
Терраса:
Нет
Панорамные окна:
Нет
Мастер-спальня:
Нет
Планировка
Фасады
О проекте
Дом из газобетона площадью 186 м² с жилыми 144 м², где современный стиль сочетается с домашним теплом. Высокие потолки и панорамные окна наполняют пространство светом, а добротные стены обеспечивают тишину и тепло. Цементно-песчаная черепица придает фасаду благородство, а продуманная отделка делает интерьер гармоничным. Это дом для тех, кто ценит надежность и комфорт.Характеристики
- Общая площадь: 186 м2
- Жилая площадь: 144 м2
- Количество этажей: 2
- Фундамент: Дома с УРФ
Материалы и перечень работ
- Железобетонная монолитная плита 300 мм с арматурой ᴓ12 мм
- Прокладка закладных (вода, канализация, электричество)
- Укладка: геотекстиль, гидроизоляция, утеплитель
- Засыпка песком с послойным трамбованием
- Монтаж/демонтаж опалубки, армирование Бетонирование (заливка, вибрирование, уход)
- Гидроизоляция отсечная Кладка несущих стен с резкой блока Кладка перегородок с резкой блока
- Армирование стен (по проекту)
- Стропольные работы
- Устройство опалубки, армирование, бетонирование (ж/б конструкции)
- Наружные стены и несущие перегородки: Газобетонный блок 400 мм
- Устройство лагового перекрытия, мауэрлата, отсечной гидроизоляции Утепление перекрытия Монтаж пароизоляционной пленки с проклейкой стыков Обработка древесины защитным составом
- Монтаж контр обрешетки Монтаж шаговой обрешетки
- Монтаж гидроизоляционной плёнки Монтаж черепицы с подрезкой материала
- Обустройство конька Обустройство хребта Обустройство карнизного свеса (капельник, сетка, реснички)
- Монтаж ЭПП (утепление поясов и мауэрлата)
- Рассчитываются отдельно в зависимости от цвета, типа открывания, размера окон.
- Рассчитываются отдельно в зависимости от цвета, типа открывания, размера окон.
- Рассчитываются отдельно в зависимости от цвета, типа открывания, размера окон.
- Рассчитываются отдельно в зависимости от цвета, типа открывания, размера окон.
- Рассчитываются отдельно в зависимости от цвета, типа открывания, размера окон.
- Рассчитываются отдельно. Разведение инженерных коммуникаций в базовую комплектацию не входит
- Рассчитываются отдельно. Разведение инженерных коммуникаций в базовую комплектацию не входит
- Рассчитываются отдельно. Разведение инженерных коммуникаций в базовую комплектацию не входит
- Рассчитываются отдельно. Разведение инженерных коммуникаций в базовую комплектацию не входит
- Рассчитываются отдельно. Разведение инженерных коммуникаций в базовую комплектацию не входит
- Рассчитываются отдельно
- Рассчитываются отдельно
- Рассчитываются отдельно
- Рассчитываются отдельно
- Рассчитываются отдельно
- Железобетонная монолитная плита 300 мм с арматурой ᴓ12 мм
- Прокладка закладных (вода, канализация, электричество)
- Укладка: геотекстиль, гидроизоляция, утеплитель
- Засыпка песком с послойным трамбованием
- Монтаж/демонтаж опалубки, армирование Бетонирование (заливка, вибрирование, уход)
- Гидроизоляция отсечная Кладка несущих стен с резкой блока Кладка перегородок с резкой блока
- Армирование стен (по проекту)
- Стропольные работы
- Устройство опалубки, армирование, бетонирование (ж/б конструкции)
- Наружные стены и несущие перегородки: Газобетонный блок 400 мм
- Устройство лагового перекрытия, мауэрлата, отсечной гидроизоляции Утепление перекрытия Монтаж пароизоляционной пленки с проклейкой стыков Обработка древесины защитным составом
- Монтаж контр обрешетки Монтаж шаговой обрешетки
- Монтаж гидроизоляционной плёнки Монтаж черепицы с подрезкой материала
- Обустройство конька Обустройство хребта Обустройство карнизного свеса (капельник, сетка, реснички)
- Монтаж ЭПП (утепление поясов и мауэрлата)
- Рассчитываются отдельно в зависимости от цвета, типа открывания, размера окон.
- Рассчитываются отдельно в зависимости от цвета, типа открывания, размера окон.
- Рассчитываются отдельно в зависимости от цвета, типа открывания, размера окон.
- Рассчитываются отдельно в зависимости от цвета, типа открывания, размера окон.
- Рассчитываются отдельно в зависимости от цвета, типа открывания, размера окон.
- Рассчитываются отдельно. Разведение инженерных коммуникаций в базовую комплектацию не входит
- Рассчитываются отдельно. Разведение инженерных коммуникаций в базовую комплектацию не входит
- Рассчитываются отдельно. Разведение инженерных коммуникаций в базовую комплектацию не входит
- Рассчитываются отдельно. Разведение инженерных коммуникаций в базовую комплектацию не входит
- Рассчитываются отдельно. Разведение инженерных коммуникаций в базовую комплектацию не входит
- Рассчитываются отдельно
- Рассчитываются отдельно
- Рассчитываются отдельно
- Рассчитываются отдельно
- Рассчитываются отдельно
Что еще входит в стоимость:
Отправьте свои контакты и мы расчитаем вам смету
Скорее всего вам подойдут следующие проекты домов:
Проект двухэтажного дома Дабл
Семья с двумя детьми
Дом подходит для:
Дом подходит для:
Проект двухэтажного дома Дом id-113393
Семья с двумя детьми
Дом подходит для:
Дом подходит для:
Проект двухэтажного дома Дом id-114330
Для большой семьи
Дом подходит для:
Дом подходит для:


















