Проект одноэтажного дома №28
Дом подходит для:
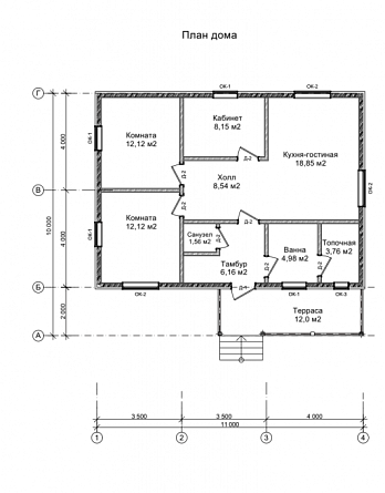
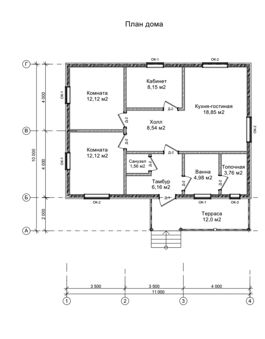
Площадь
76 м 2
Размер дома:
8х11
Этажей:
1
Спален:
2
Санузел:
2
Гараж:
Нет
Баня:
Нет
Терраса:
Нет
Панорамные окна:
Нет
Мастер-спальня:
Нет
Планировка
Фасады
О проекте
Просторные 76 м² с жилыми 43 м² создают атмосферу тепла и гармонии. Каркасная технология гарантирует прочность и энергоэффективность, а светлые интерьеры наполнены воздухом и светом. Продуманная планировка позволяет каждому найти свое личное пространство. Это надежное и стильное жилье.Характеристики
- Общая площадь: 76 м2
- Жилая площадь: 43 м2
- Количество этажей: 1
- Гараж: нет
- Площадь кровли: 83 м2
- Отделка: Без отделки
- Фундамент: Дома со свайным фундаментом
Материалы и перечень работ
- Железобетонные сваи (150 х 150 мм) 3 м
- Обвязка СТРОГАННАЯ ДОСКА КАМЕРНОЙ СУШКИ 45 х 140 мм строенная (на ребро)
- Обработка ОГНЕБИОЗАЩИТОЙ
- Стены – СТРОГАННАЯ ДОСКА КАМЕРНОЙ СУШКИ 45 х 140 мм + брусок 45 х 45 мм (ПЕРЕКРЕСТНОЕ УТЕПЛЕНИЕ)
- Лаги пола – СТРОГАННАЯ ДОСКА КАМЕРНОЙ СУШКИ 45 х 190 мм
- Лаги межэтажного перекрытия – СТРОГАННАЯ ДОСКА КАМЕРНОЙ СУШКИ 45 х 190 мм
- Стропила – СТРОГАННАЯ ДОСКА КАМЕРНОЙ СУШКИ 45 х 190 мм
- МЕТАЛЛОЧЕРЕПИЦА GRAND LINE 0,5 мм
- Свесы кровли 0,5 м
- Объемные карнизы
- ПВХ REHAU 70 мм, двойной стеклопакет (3 стекла)
- Фурнитура ROTO Москитные сетки (входят в стоимость)
- Входная металлическая утепленная, толщиной 110 мм (2 замка)
- Межкомнатные двери (мебельный клееный щит с фрезеровкой)
- В стоимость не входит
- ИМИТАЦИЯ БРУСА КАМЕРНОЙ СУШКИ по обрешетке
- Железобетонные сваи (150 х 150 мм) 3 м
- Обвязка СТРОГАННАЯ ДОСКА КАМЕРНОЙ СУШКИ 45 х 140 мм строенная (на ребро)
- Обработка ОГНЕБИОЗАЩИТОЙ
- Стены – СТРОГАННАЯ ДОСКА КАМЕРНОЙ СУШКИ 45 х 140 мм + брусок 45 х 45 мм (ПЕРЕКРЕСТНОЕ УТЕПЛЕНИЕ)
- Лаги пола – СТРОГАННАЯ ДОСКА КАМЕРНОЙ СУШКИ 45 х 190 мм
- Лаги межэтажного перекрытия – СТРОГАННАЯ ДОСКА КАМЕРНОЙ СУШКИ 45 х 190 мм
- Стропила – СТРОГАННАЯ ДОСКА КАМЕРНОЙ СУШКИ 45 х 190 мм
- МЕТАЛЛОЧЕРЕПИЦА GRAND LINE 0,5 мм
- Свесы кровли 0,5 м
- Объемные карнизы
- ПВХ REHAU 70 мм, двойной стеклопакет (3 стекла)
- Фурнитура ROTO Москитные сетки (входят в стоимость)
- Входная металлическая утепленная, толщиной 110 мм (2 замка)
- Межкомнатные двери (мебельный клееный щит с фрезеровкой)
- В стоимость не входит
- ИМИТАЦИЯ БРУСА КАМЕРНОЙ СУШКИ по обрешетке
Что еще входит в стоимость:
Отправьте свои контакты и мы расчитаем вам смету
Скорее всего вам подойдут следующие проекты домов:
Дом подходит для:
Дом подходит для:
Проект одноэтажного дома Проект 7028 - Одноэтажный каркасный барнхаус с двумя спальнями
Семья с одним ребенком
Дом подходит для:
Дом подходит для:














