Проект одноэтажного дома 3051 - каркасный дом с плоской крышей с двумя спальнями
Площадь
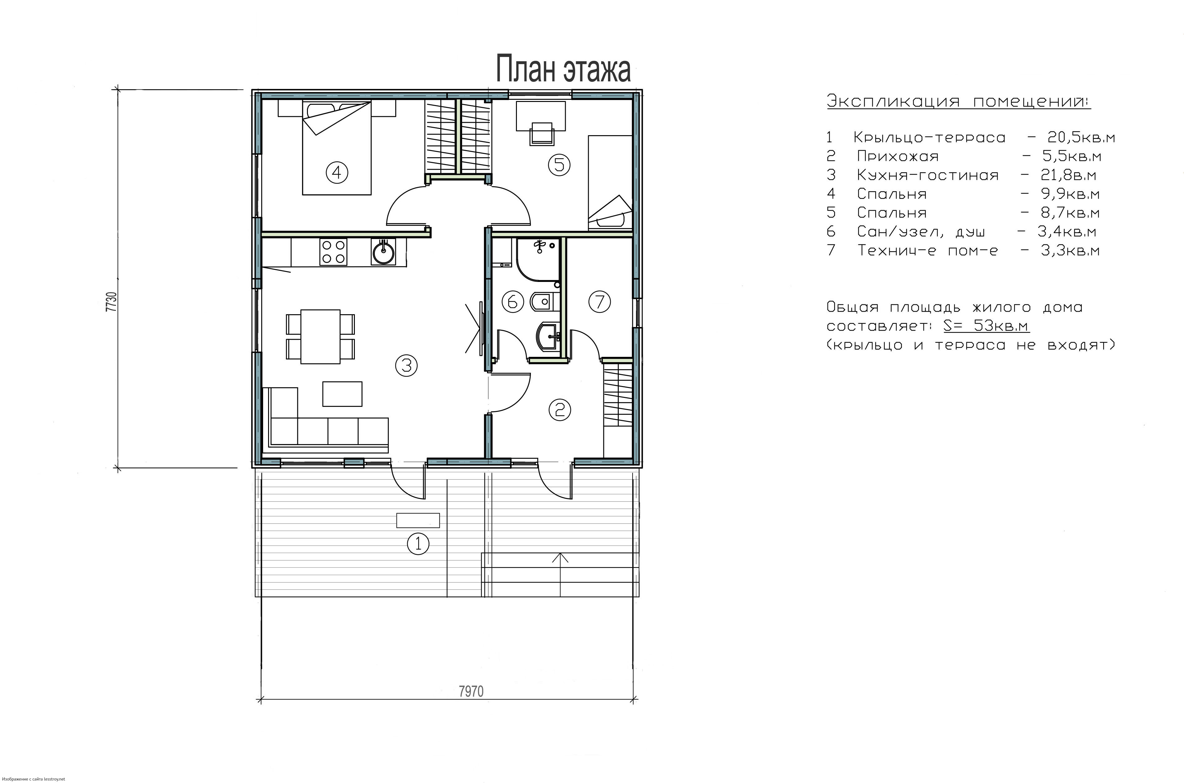
57 м 2
Размер дома:
Этажей:
1
Спален:
2
Санузел:
0
Гараж:
Нет
Баня:
Нет
Терраса:
Нет
Панорамные окна:
Нет
Мастер-спальня:
Нет
О проекте
Компактный одноэтажный каркасный дом площадью 57 м² в финском стиле — это минимализм и удобство. Две спальни и металлочерепица делают его идеальным для небольшой семьи.Характеристики
- Общая площадь: 57 м2
- Количество этажей: 1
- Стиль, разновидность: Финские дома
- Форма: Прямоугольные дома
- Тип кровли: Дома с односкатной крышей
- Отделка: Без отделки
Отправьте свои контакты и мы расчитаем вам смету
Скорее всего вам подойдут следующие проекты домов:
Дом подходит для:
Проект одноэтажного дома ДБХ019
Семья с одним ребенком
Дом подходит для:
Дом подходит для:
Проект одноэтажного дома ДБХ006
Семья с одним ребенком
Дом подходит для:
Дом подходит для:
















