Проект одноэтажного дома №349
Дом подходит для:
Площадь
93 м 2
Размер дома:
12,5х12,8
Этажей:
1
Спален:
3
Санузел:
1
Гараж:
Нет
Баня:
Нет
Терраса:
Нет
Панорамные окна:
Нет
Мастер-спальня:
Нет
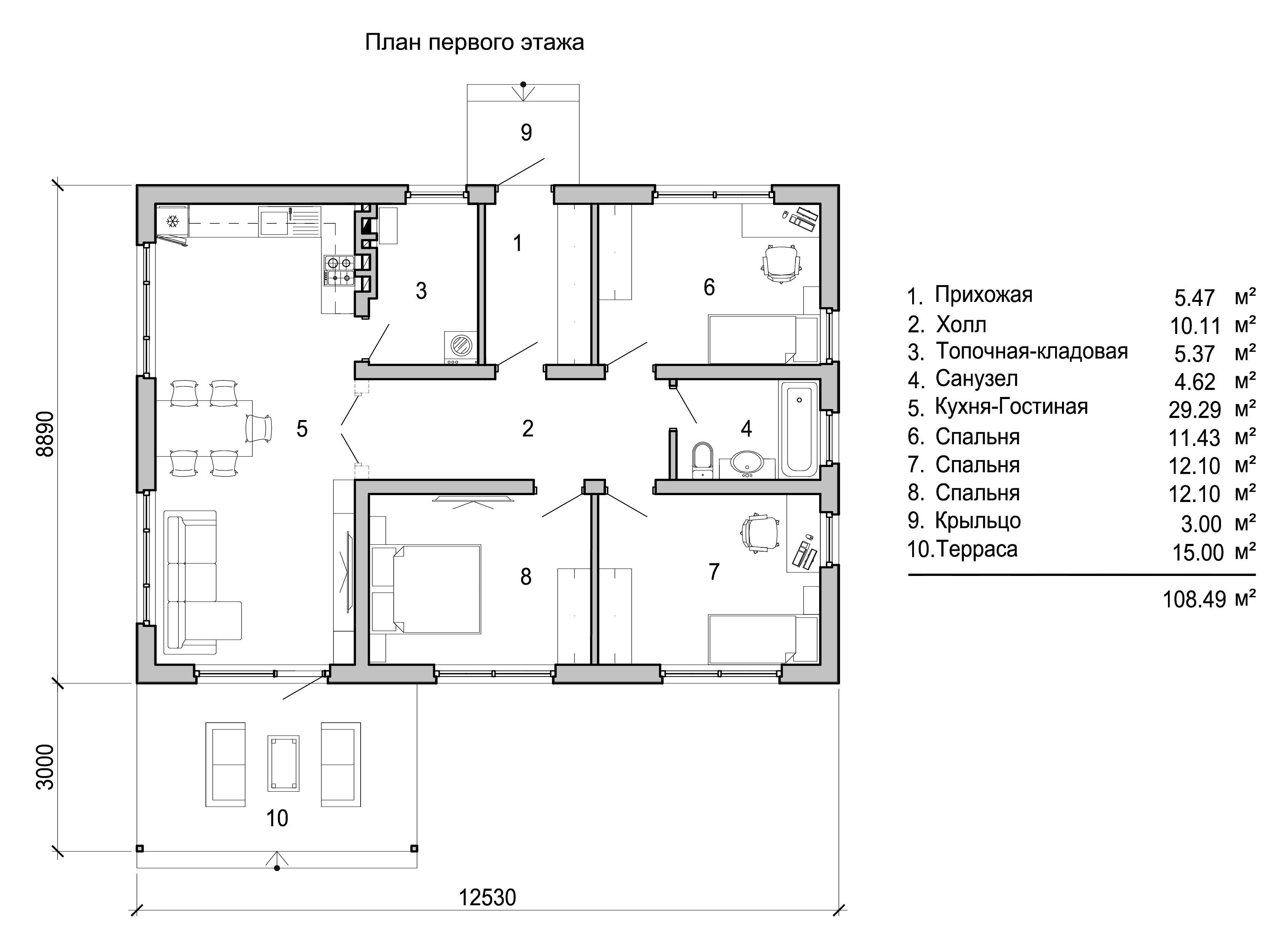
Планировка
Фасады
О проекте
Уютный дом площадью 93 м² с жилыми 81 м² предназначен для семьи с двумя детьми. Газобетонные стены обеспечивают тепло и энергоэффективность, а металлочерепица гарантирует надежность. Пространство организовано с заботой о комфорте, создавая светлую и гармоничную атмосферу. Это дом, где каждая деталь радует своей продуманностью.Характеристики
- Общая площадь: 93 м2
- Жилая площадь: 81 м2
- Количество этажей: 1
- Гараж: нет
- Площадь кровли: 99 м2
- Форма: Квадратные дома
- Тип кровли: Дома с двускатной крышей
- Пристрой: Дома с навесом
- Отделка: Без отделки
- Фундамент: Дома с плитным фундаментом
Материалы и перечень работ
- Устройство железобетонной плиты фундамента 350 мм (В 22,5/М300)
- Гидроизоляция наплавляемая
- Бетонная подготовка 100 мм
- Вводы сетей (водоснабжение, канализация, электроснабжение)
- Песчаное основание 300 мм
- Устройство внутренних несущих стен и перегородок из рядового кирпича
- Устройство монолитных железобетонных перемычек с утеплением
- Устройство монолитного армопояса
- Устройство вентканалов из полнотелого кирпича 1НФ
- Монтаж стропильной системы
- Монтаж покрытия кровли: металлочерепица
- Отделка вентканала, козырек на вентканал
- Монтаж водосточной системы и снегозадержателей
- В стоимость не входит
- В стоимость не входит
- В стоимость не входит
- Устройство железобетонной плиты фундамента 350 мм (В 22,5/М300)
- Гидроизоляция наплавляемая
- Бетонная подготовка 100 мм
- Вводы сетей (водоснабжение, канализация, электроснабжение)
- Песчаное основание 300 мм
- Устройство внутренних несущих стен и перегородок из рядового кирпича
- Устройство монолитных железобетонных перемычек с утеплением
- Устройство монолитного армопояса
- Устройство вентканалов из полнотелого кирпича 1НФ
- Монтаж стропильной системы
- Монтаж покрытия кровли: металлочерепица
- Отделка вентканала, козырек на вентканал
- Монтаж водосточной системы и снегозадержателей
- В стоимость не входит
- В стоимость не входит
- В стоимость не входит
Что еще входит в стоимость:
Отправьте свои контакты и мы расчитаем вам смету
Скорее всего вам подойдут следующие проекты домов:
Проект одноэтажного дома Дом id-115224
Семья с одним ребенком
Дом подходит для:
Дом подходит для:
Проект одноэтажного дома Дом id-115291
Семья с одним ребенком
Дом подходит для:
Дом подходит для:
Проект одноэтажного дома Дом id-111396
Семья с одним ребенком
Дом подходит для:
Дом подходит для:























