Проект двухэтажного дома №36
Дом подходит для:
Площадь
87 м 2
Размер дома:
7,3х9
Этажей:
2
Спален:
3
Санузел:
1
Гараж:
Нет
Баня:
Нет
Терраса:
Да
Панорамные окна:
Нет
Мастер-спальня:
Нет
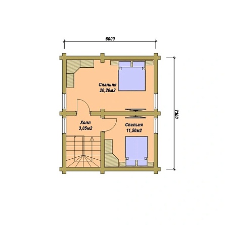
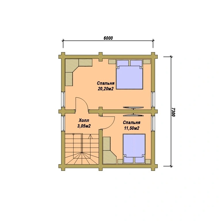
Планировка
Фасады
О проекте
Уютный двухэтажный дом из бревна площадью 87 м² идеален для семьи с двумя детьми. Жилая зона в 61 м² продумана для комфортного проживания. Три спальни и санузел отвечают потребностям большой семьи. Естественность материалов и надежность конструкции подчеркивают качество этого жилья.Характеристики
- Общая площадь: 87 м2
- Жилая площадь: 61 м2
- Количество этажей: 2
- Гараж: нет
- Площадь кровли: 93 м2
- Форма: Квадратные дома
- Тип кровли: Дома с многощипцовой крышей
- Пристрой: Дома с верандой
- Отделка: Без отделки
Материалы и перечень работ
- В стоимость не входит
- Стеновой материал - оциндрованные элементы из хвойных пород изготовленные на станке токарно-роторного типа ОФ-300цм с выбранными продольными и поперечными пазами согласно проектной спецификации
- Антисептирование деталей сруба методом погружения в ванну (PROSEPT) на 10 мин
- Выполнение угловых чаш
- Перекрытие - брус 100х200мм
- Стропила-обрезная доска сеч. 50х200мм
- Устройство кровли под рубероид (материал заказчика)
- Монтаж стропильной системы с установкой ветрозащитной мембранны и вент. бруска с обрешеткой
- Комплект материалов для сруба и кровли: стеклоизол ХП 10м, ветрозащитная мембрана АМ, скобы строительные 8х300 (стыки бревен), скользящие опоры для стропил, пластины металические 90х210 толщ. 2 мм (конек), болты, гайки, шайбы, шпильки, уголки мет., лифты регулировочные М24, саморезы, гвозди, канат диам. 16мм, скобки к степлеру, ULTRA PROSEPT(обработка подкладной доски), кисти, перчатки
- Обработка огнебиозащитой балок перекрытия и стропил (огнебиопросепт)
- В стоимость не входит
- В стоимость не входит
- В стоимость не входит
- В стоимость не входит
- Стеновой материал - оциндрованные элементы из хвойных пород изготовленные на станке токарно-роторного типа ОФ-300цм с выбранными продольными и поперечными пазами согласно проектной спецификации
- Антисептирование деталей сруба методом погружения в ванну (PROSEPT) на 10 мин
- Выполнение угловых чаш
- Перекрытие - брус 100х200мм
- Стропила-обрезная доска сеч. 50х200мм
- Устройство кровли под рубероид (материал заказчика)
- Монтаж стропильной системы с установкой ветрозащитной мембранны и вент. бруска с обрешеткой
- Комплект материалов для сруба и кровли: стеклоизол ХП 10м, ветрозащитная мембрана АМ, скобы строительные 8х300 (стыки бревен), скользящие опоры для стропил, пластины металические 90х210 толщ. 2 мм (конек), болты, гайки, шайбы, шпильки, уголки мет., лифты регулировочные М24, саморезы, гвозди, канат диам. 16мм, скобки к степлеру, ULTRA PROSEPT(обработка подкладной доски), кисти, перчатки
- Обработка огнебиозащитой балок перекрытия и стропил (огнебиопросепт)
- В стоимость не входит
- В стоимость не входит
- В стоимость не входит
Что еще входит в стоимость:
Отправьте свои контакты и мы расчитаем вам смету
Скорее всего вам подойдут следующие проекты домов:
Дом подходит для:
Дом подходит для:
Дом подходит для:












