Проект двухэтажного дома 6х9м №2
Дом подходит для:
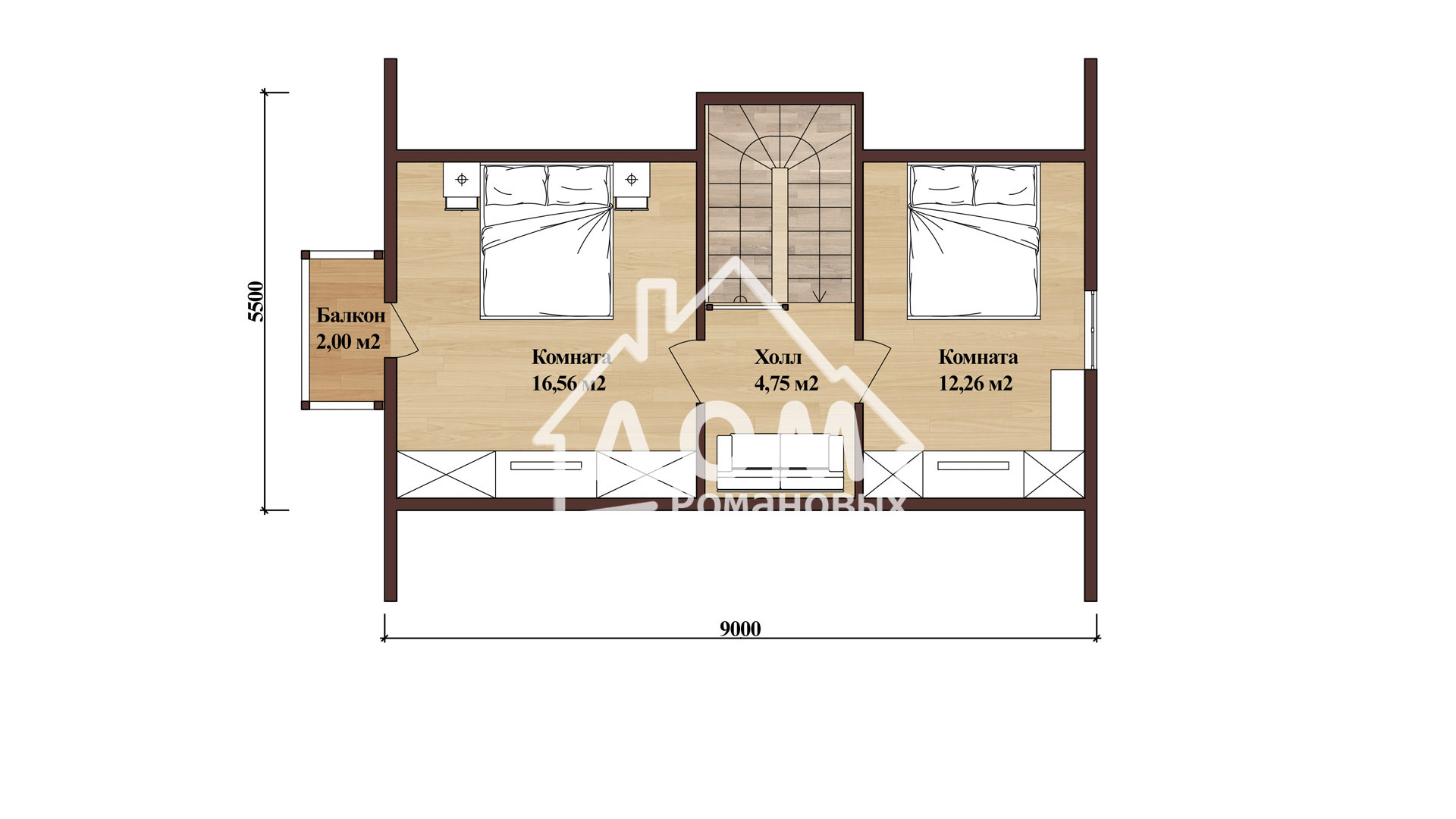
Площадь
72 м 2
Размер дома:
9х8
Этажей:
2
Спален:
2
Санузел:
1
Гараж:
Нет
Баня:
Нет
Терраса:
Нет
Панорамные окна:
Нет
Мастер-спальня:
Нет
Планировка
Характеристики
- Общая площадь: 72 м2
- Жилая площадь: 48 м2
- Количество этажей: 2
- Гараж: нет
- Площадь кровли: 75 м2
- Отделка: Без отделки
- Фундамент: Дома со свайно-винтовым фундаментом
Материалы и перечень работ
- Свайно-винтовой либо ЖБИ сваи
- Обрезной брус 150х200 мм
- Строганная доска 145х35 мм с шагом 580 мм (камерной сушки)
- Утепление 150 мм Rockwool Лайт Баттс/Скандик Плотность не менее 30-40 кг на м3
- Строганная доска 145х35 мм с шагом 580 мм (камерной сушки)
- Ондулин (цвет на выбор)
- Rehau/Veka двухкамерный стеклопакет (3 стекла).
- Металлическая утепленная пр-во Россия (с терморазрывом)
- В стоимость не входит
- Имитация бруса 140х16 мм (камерной сушки)
- Свайно-винтовой либо ЖБИ сваи
- Обрезной брус 150х200 мм
- Строганная доска 145х35 мм с шагом 580 мм (камерной сушки)
- Утепление 150 мм Rockwool Лайт Баттс/Скандик Плотность не менее 30-40 кг на м3
- Строганная доска 145х35 мм с шагом 580 мм (камерной сушки)
- Ондулин (цвет на выбор)
- Rehau/Veka двухкамерный стеклопакет (3 стекла).
- Металлическая утепленная пр-во Россия (с терморазрывом)
- В стоимость не входит
- Имитация бруса 140х16 мм (камерной сушки)
Что еще входит в стоимость:
Отправьте свои контакты и мы расчитаем вам смету
Скорее всего вам подойдут следующие проекты домов:
Дом подходит для:
Дом подходит для:
Дом подходит для:














