Ваш город:

Проект двухэтажного дома №8

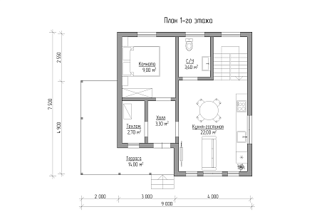
Площадь: 85 м2
Размер: 7,5х7
Дом подходит для:
Семья с двумя детьми
Этажей:
2
Стены:
Кровля:
Металлочерепица
Цена:
Оставить заявку
Площадь
85 м 2
Размер дома:
7,5х7
Этажей:
2
Спален:
3
Санузел:
2
Гараж:
Нет
Баня:
Нет
Терраса:
Нет
Панорамные окна:
Нет
Мастер-спальня:
Нет
Фасады
О проекте
Просторные 85 м² с жилыми 59 м² создают идеальные условия для комфортной жизни. Каркасная конструкция обеспечивает тепло и надежность, а продуманная планировка делает жизнь удобной. Светлые интерьеры и натуральные материалы дарят ощущение спокойствия и уюта. Это дом для тех, кто ценит качество в каждой детали.

Характеристики
  • Общая площадь: 85 м2
  • Жилая площадь: 59 м2
  • Количество этажей: 2
  • Гараж: нет
  • Площадь кровли: 94 м2
  • Отделка: Без отделки
  • Фундамент: Дома со свайным фундаментом
Материалы и перечень работ
  • Железобетонные сваи (150 х 150 мм) 3 м
  • Обвязка СТРОГАННАЯ ДОСКА КАМЕРНОЙ СУШКИ 45х140 мм строенная (на ребро)
  • Обработка ОГНЕБИОЗАЩИТОЙ
  • Стены – СТРОГАННАЯ ДОСКА КАМЕРНОЙ СУШКИ 45х140 мм + брусок 45 х 45 мм (ПЕРЕКРЕСТНОЕ УТЕПЛЕНИЕ)
  • Лаги пола – СТРОГАННАЯ ДОСКА КАМЕРНОЙ СУШКИ 45 х 190 мм
  • Лаги межэтажного перекрытия – СТРОГАННАЯ ДОСКА КАМЕРНОЙ СУШКИ 45 х 190 мм
  • Стропила – СТРОГАННАЯ ДОСКА КАМЕРНОЙ СУШКИ 45 х 190 мм
  • МЕТАЛЛОЧЕРЕПИЦА GRAND LINE 0,5 мм
  • Объемные карнизы
  • ПВХ REHAU 70 мм, двойной стеклопакет (3 стекла)
  • Фурнитура ROTO Москитные сетки (входят в стоимость)
  • Входная металлическая утепленная, толщиной 110 мм (2 замка)
  • Межкомнатные филенчатые (массив дерева камерной сушки)
  • В стоимость не входит
  • ИМИТАЦИЯ БРУСА КАМЕРНОЙ СУШКИ или САЙДИНГ GRAND LINE или САЙДИНГ DOCKE PREMIUM по обрешетке
  • Железобетонные сваи (150 х 150 мм) 3 м
  • Обвязка СТРОГАННАЯ ДОСКА КАМЕРНОЙ СУШКИ 45х140 мм строенная (на ребро)
  • Обработка ОГНЕБИОЗАЩИТОЙ
  • Стены – СТРОГАННАЯ ДОСКА КАМЕРНОЙ СУШКИ 45х140 мм + брусок 45 х 45 мм (ПЕРЕКРЕСТНОЕ УТЕПЛЕНИЕ)
  • Лаги пола – СТРОГАННАЯ ДОСКА КАМЕРНОЙ СУШКИ 45 х 190 мм
  • Лаги межэтажного перекрытия – СТРОГАННАЯ ДОСКА КАМЕРНОЙ СУШКИ 45 х 190 мм
  • Стропила – СТРОГАННАЯ ДОСКА КАМЕРНОЙ СУШКИ 45 х 190 мм
  • МЕТАЛЛОЧЕРЕПИЦА GRAND LINE 0,5 мм
  • Объемные карнизы
  • ПВХ REHAU 70 мм, двойной стеклопакет (3 стекла)
  • Фурнитура ROTO Москитные сетки (входят в стоимость)
  • Входная металлическая утепленная, толщиной 110 мм (2 замка)
  • Межкомнатные филенчатые (массив дерева камерной сушки)
  • В стоимость не входит
  • ИМИТАЦИЯ БРУСА КАМЕРНОЙ СУШКИ или САЙДИНГ GRAND LINE или САЙДИНГ DOCKE PREMIUM по обрешетке
Что еще входит в стоимость:
Фото и видеоотчет
Отправьте свои контакты и мы расчитаем вам смету
Прикрепить документ
Скорее всего вам подойдут следующие проекты домов:
Добавить к сравнению
Добавить в избранное
Изображение
Изображение
Изображение
Изображение
Изображение
Проект двухэтажного дома дк293
Площадь: 97 м2
Размер: 7x9
Дом подходит для:
Для большой семьи
Дом подходит для:
Для большой семьи
Добавить к сравнению
Добавить в избранное
Изображение
Изображение
Изображение
Изображение
Изображение
Проект двухэтажного дома Турин
Площадь: 93 м2
Размер: 8x8
Дом подходит для:
Для большой семьи
Дом подходит для:
Для большой семьи
Добавить к сравнению
Добавить в избранное
Изображение
Изображение
Изображение
Дом подходит для:
Семья с двумя детьми