Проект двухэтажного дома 89-34
Площадь
120 м 2
Размер дома:
Этажей:
2
Спален:
4
Санузел:
0
Гараж:
Нет
Баня:
Нет
Терраса:
Нет
Панорамные окна:
Нет
Мастер-спальня:
Нет
О проекте
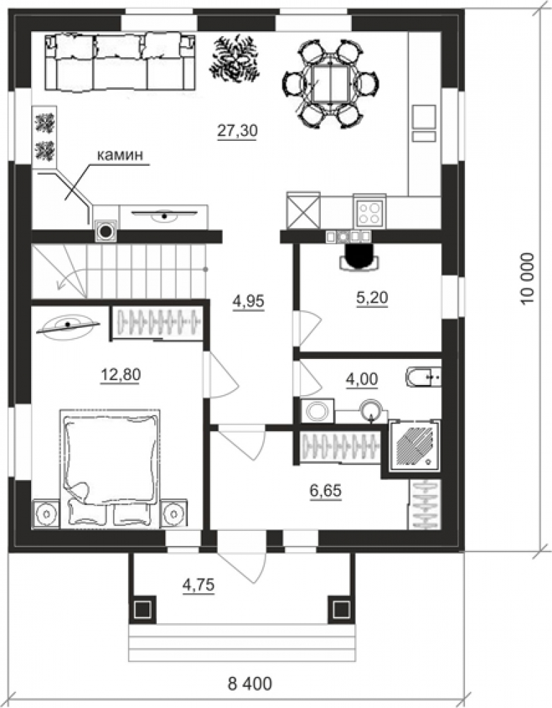
Проект, вызывающий истерику счастья при виде щитка. Больше, чем просто метры: 120 м² — это дом. Количество спален — 4, делая планировку гибкой. В качестве кровли использована металлочерепица — материал, проверенный временем. Это двухэтажная структура, которая обеспечивает комфортную навигацию внутри дома.Характеристики
- Общая площадь: 120 м2
- Количество этажей: 2
- Стиль, разновидность: Дома в ином стиле
- Форма: Прямоугольные дома
- Тип кровли: Дома с двускатной крышей
- Отделка: Без отделки
Отправьте свои контакты и мы расчитаем вам смету
Скорее всего вам подойдут следующие проекты домов:
Дом подходит для:
Дом подходит для:
Дом подходит для:









