Проект одноэтажного дома №9
Дом подходит для:
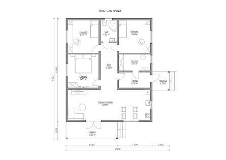
Площадь
105 м 2
Размер дома:
10х12
Этажей:
1
Спален:
3
Санузел:
1
Гараж:
Нет
Баня:
Нет
Терраса:
Нет
Панорамные окна:
Нет
Мастер-спальня:
Нет
Планировка
Фасады
О проекте
Вместительные 105 м² с жилыми 78 м² предлагают простор и комфорт для семьи. Каркасные стены обеспечивают тепло и тишину, создавая уютную атмосферу. Лаконичный дизайн подчеркивает современный стиль, а практичная планировка делает жизнь удобной. Это гармоничное сочетание добротности и функциональности.Характеристики
- Общая площадь: 105 м2
- Жилая площадь: 78 м2
- Количество этажей: 1
- Гараж: нет
- Площадь кровли: 112 м2
- Отделка: Без отделки
- Фундамент: Дома со свайным фундаментом
Материалы и перечень работ
- Железобетонные сваи (150 х 150 мм) 3 м
- Обвязка СТРОГАННАЯ ДОСКА КАМЕРНОЙ СУШКИ 45 х 140 мм строенная (на ребро)
- Обработка ОГНЕБИОЗАЩИТОЙ
- Стены – СТРОГАННАЯ ДОСКА КАМЕРНОЙ СУШКИ 45 х 140 мм + брусок 45 х 45 мм (ПЕРЕКРЕСТНОЕ УТЕПЛЕНИЕ)
- Лаги пола – СТРОГАННАЯ ДОСКА КАМЕРНОЙ СУШКИ 45 х 190 мм
- Лаги межэтажного перекрытия – СТРОГАННАЯ ДОСКА КАМЕРНОЙ СУШКИ 45 х 190 мм
- Стропила – СТРОГАННАЯ ДОСКА КАМЕРНОЙ СУШКИ 45 х 190 мм
- МЕТАЛЛОЧЕРЕПИЦА GRAND LINE 0,5 мм
- Объемные карнизы
- ПВХ REHAU 70 мм, двойной стеклопакет (3 стекла)
- Фурнитура ROTO Москитные сетки (входят в стоимость)
- Входная металлическая утепленная, толщиной 110 мм (2 замка)
- Межкомнатные двери (мебельный клееный щит с фрезеровкой)
- В стоимость не входит
- ИМИТАЦИЯ БРУСА КАМЕРНОЙ СУШКИ по обрешетке
- Железобетонные сваи (150 х 150 мм) 3 м
- Обвязка СТРОГАННАЯ ДОСКА КАМЕРНОЙ СУШКИ 45 х 140 мм строенная (на ребро)
- Обработка ОГНЕБИОЗАЩИТОЙ
- Стены – СТРОГАННАЯ ДОСКА КАМЕРНОЙ СУШКИ 45 х 140 мм + брусок 45 х 45 мм (ПЕРЕКРЕСТНОЕ УТЕПЛЕНИЕ)
- Лаги пола – СТРОГАННАЯ ДОСКА КАМЕРНОЙ СУШКИ 45 х 190 мм
- Лаги межэтажного перекрытия – СТРОГАННАЯ ДОСКА КАМЕРНОЙ СУШКИ 45 х 190 мм
- Стропила – СТРОГАННАЯ ДОСКА КАМЕРНОЙ СУШКИ 45 х 190 мм
- МЕТАЛЛОЧЕРЕПИЦА GRAND LINE 0,5 мм
- Объемные карнизы
- ПВХ REHAU 70 мм, двойной стеклопакет (3 стекла)
- Фурнитура ROTO Москитные сетки (входят в стоимость)
- Входная металлическая утепленная, толщиной 110 мм (2 замка)
- Межкомнатные двери (мебельный клееный щит с фрезеровкой)
- В стоимость не входит
- ИМИТАЦИЯ БРУСА КАМЕРНОЙ СУШКИ по обрешетке
Что еще входит в стоимость:
Отправьте свои контакты и мы расчитаем вам смету
Скорее всего вам подойдут следующие проекты домов:
Дом подходит для:
Дом подходит для:
Дом подходит для:













