Проект одноэтажного дома №90
Дом подходит для:
Площадь
117 м 2
Размер дома:
11,4х12,6
Этажей:
1
Спален:
3
Санузел:
1
Гараж:
Нет
Баня:
Нет
Терраса:
Нет
Панорамные окна:
Нет
Мастер-спальня:
Нет
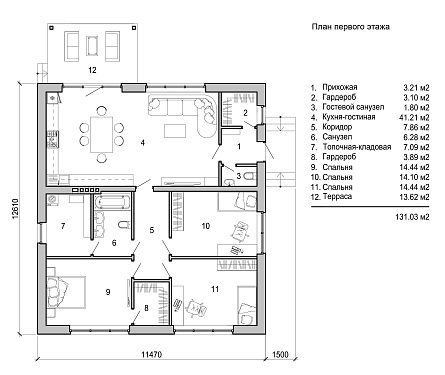
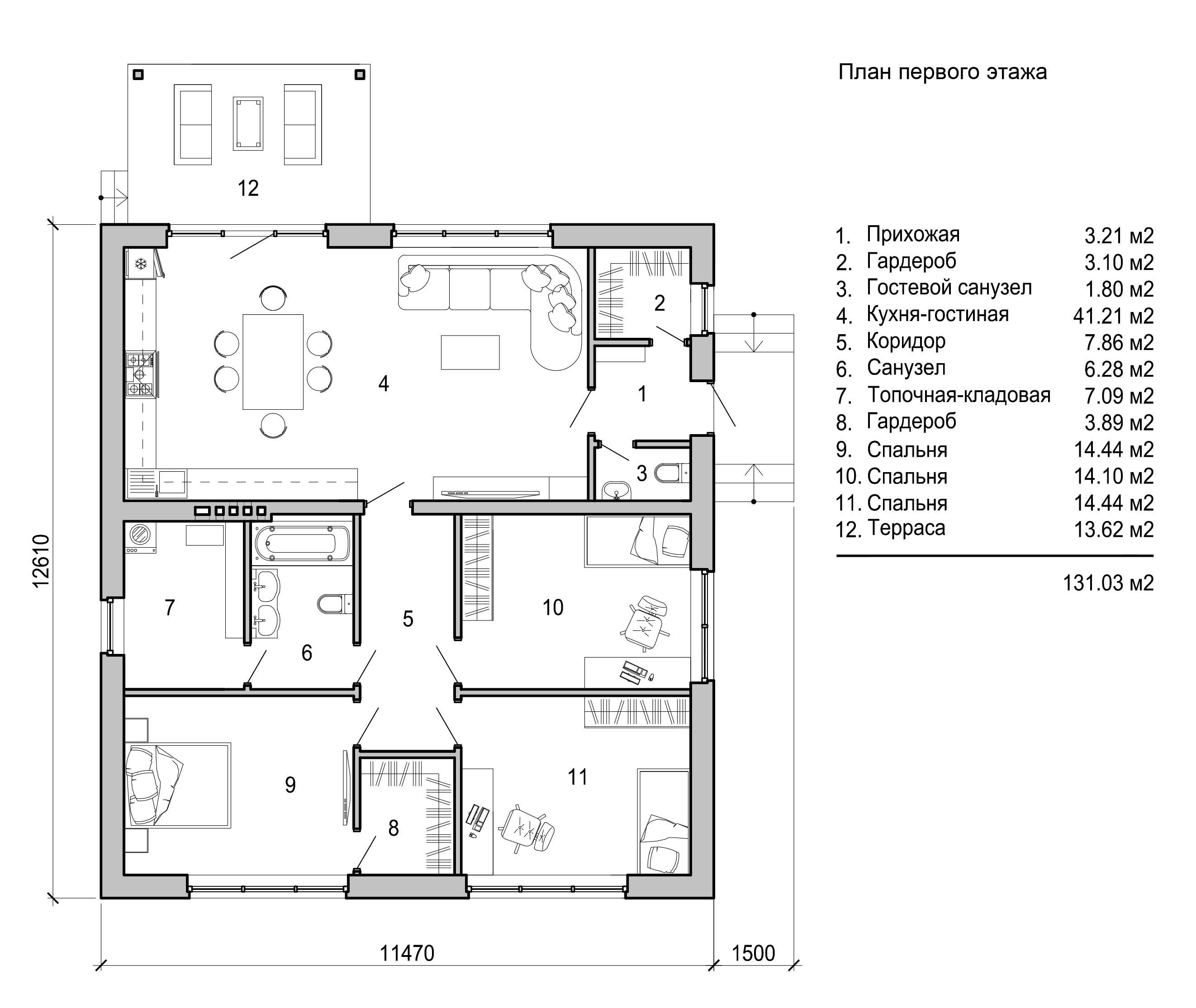
Планировка
Фасады
О проекте
Практичный дом площадью 117 м² с жилой площадью 97 м² идеален для семьи с двумя детьми. Газобетонные стены создают теплую и дышащую среду, а металлочерепица добавляет долговечности. Внутри — просторные и светлые комнаты, наполненные уютом. Здесь все продумано для размеренной и спокойной жизни.Характеристики
- Общая площадь: 117 м2
- Жилая площадь: 97 м2
- Количество этажей: 1
- Гараж: нет
- Площадь кровли: 124 м2
- Форма: Квадратные дома
- Тип кровли: Дома с двускатной крышей
- Отделка: Без отделки
- Фундамент: Дома с плитным фундаментом
Материалы и перечень работ
- Устройство железобетонной плиты фундамента 350 мм (В 22,5/М300)
- Гидроизоляция наплавляемая
- Бетонная подготовка 100 мм
- Вводы сетей (водоснабжение, канализация, электроснабжение)
- Песчаное основание 300 мм
- Устройство внутренних несущих стен и перегородок из рядового кирпича
- Устройство монолитных железобетонных перемычек с утеплением
- Устройство монолитного армопояса
- Устройство вентканалов из полнотелого кирпича 1НФ
- Монтаж стропильной системы
- Монтаж покрытия кровли: металлочерепица
- Отделка вентканала, козырек на вентканал
- Монтаж водосточной системы и снегозадержателей
- В стоимость не входит
- В стоимость не входит
- В стоимость не входит
- Устройство железобетонной плиты фундамента 350 мм (В 22,5/М300)
- Гидроизоляция наплавляемая
- Бетонная подготовка 100 мм
- Вводы сетей (водоснабжение, канализация, электроснабжение)
- Песчаное основание 300 мм
- Устройство внутренних несущих стен и перегородок из рядового кирпича
- Устройство монолитных железобетонных перемычек с утеплением
- Устройство монолитного армопояса
- Устройство вентканалов из полнотелого кирпича 1НФ
- Монтаж стропильной системы
- Монтаж покрытия кровли: металлочерепица
- Отделка вентканала, козырек на вентканал
- Монтаж водосточной системы и снегозадержателей
- В стоимость не входит
- В стоимость не входит
- В стоимость не входит
Что еще входит в стоимость:
Отправьте свои контакты и мы расчитаем вам смету
Скорее всего вам подойдут следующие проекты домов:
Проект одноэтажного дома Прайм
Семья с одним ребенком
Дом подходит для:
Дом подходит для:
Проект одноэтажного дома Дом id-113502
Семья с двумя детьми
Дом подходит для:
Дом подходит для:
Проект одноэтажного дома Дом id-120183
Семья с двумя детьми
Дом подходит для:
Дом подходит для:


















