Ваш город:

Проект одноэтажного дома 95 ПП

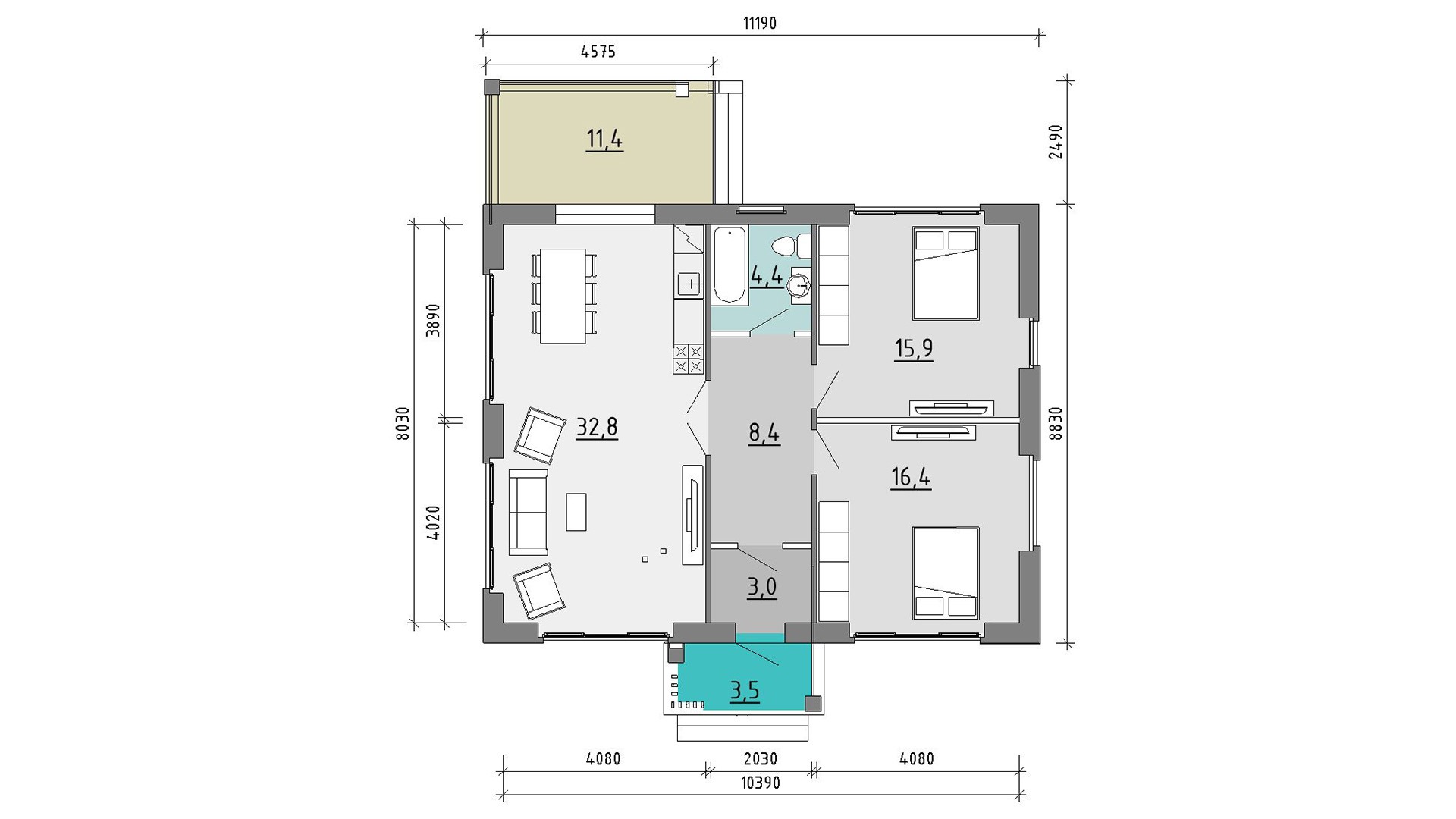
Площадь: 95 м2
Размер: 10,3х11,2
Дом подходит для:
Семья с одним ребенком
Этажей:
1
Стены:
Кровля:
Композитная черепица
Цена:
Оставить заявку
Площадь
95 м 2
Размер дома:
10,3х11,2
Этажей:
1
Спален:
2
Санузел:
1
Гараж:
Нет
Баня:
Нет
Терраса:
Нет
Панорамные окна:
Нет
Мастер-спальня:
Нет
Фасады
О проекте
Дом площадью 95 м² с жилой зоной 81 м² предлагает комфорт и простор для семьи с одним ребенком. Две спальни и один санузел создают уютное пространство, а монолитные стены дарят тепло и тишину. Продуманная планировка делает жизнь здесь удобной и гармоничной. Это дом, где каждая деталь продумана для вашего уюта.

Характеристики
  • Общая площадь: 95 м2
  • Жилая площадь: 81 м2
  • Количество этажей: 1
  • Гараж: нет
  • Площадь кровли: 96 м2
  • Отделка: Без отделки
  • Фундамент: Дома с плитным фундаментом
Материалы и перечень работ
  • Плита 20см, цоколь 30см
  • Монолитные стены 1го этажа толщиной 100мм
  • Монолитное перекрытие 1го этажа толщина 150мм пролёт до 4м
  • Монтаж утеплителя фасада 150мм базальтовая плита плотность 70-80кг/куб
  • Монтаж кирпичных перегородок
  • Плоская не эксплуатируемая кровля
  • Монтаж трубы дымоходной из кирпича
  • Утепление плоской кровли по плите перекрытия 150мм экструдированный пенополистирол
  • Подшивка потолков на крыльце и веранде софитами виниловыми
  • Мотаж системы водослива пластиковый
  • Установка пластиковых окон профиль 70мм открывание одна створка
  • В стоимость не входит
  • Фасад натуральный камень
  • Плита 20см, цоколь 30см
  • Монолитные стены 1го этажа толщиной 100мм
  • Монолитное перекрытие 1го этажа толщина 150мм пролёт до 4м
  • Монтаж утеплителя фасада 150мм базальтовая плита плотность 70-80кг/куб
  • Монтаж кирпичных перегородок
  • Плоская не эксплуатируемая кровля
  • Монтаж трубы дымоходной из кирпича
  • Утепление плоской кровли по плите перекрытия 150мм экструдированный пенополистирол
  • Подшивка потолков на крыльце и веранде софитами виниловыми
  • Мотаж системы водослива пластиковый
  • Установка пластиковых окон профиль 70мм открывание одна створка
  • В стоимость не входит
  • Фасад натуральный камень
Что еще входит в стоимость:
Фото и видеоотчет
Отправьте свои контакты и мы расчитаем вам смету
Прикрепить документ
Скорее всего вам подойдут следующие проекты домов: