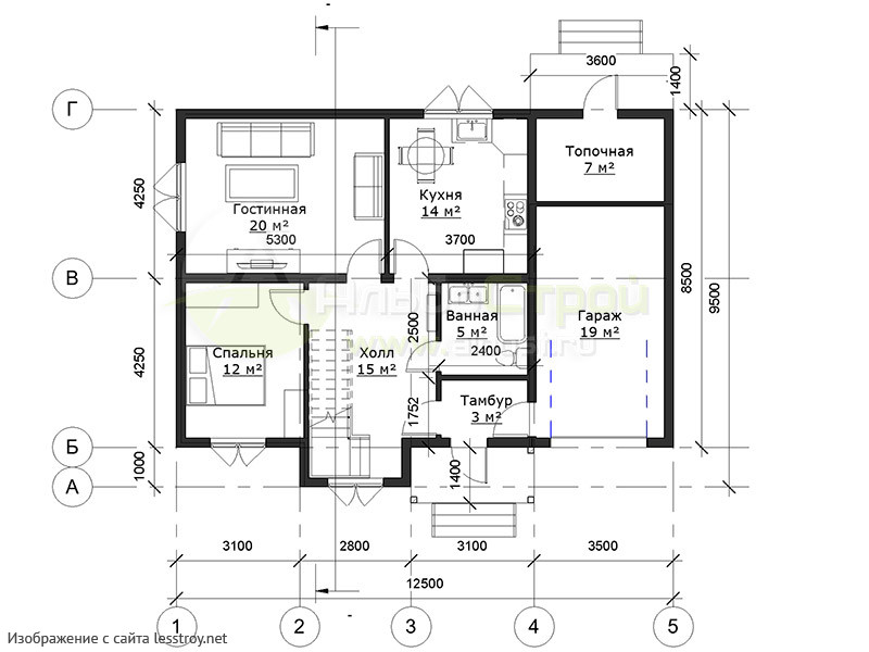
Проект двухэтажного дома 9801-1
Площадь
164 м 2
Размер дома:
Этажей:
2
Спален:
4
Санузел:
0
Гараж:
Нет
Баня:
Нет
Терраса:
Нет
Панорамные окна:
Нет
Мастер-спальня:
Нет
О проекте
Впечатляющий особняк из SIP-панелей с сложной многощипцовой кровлей. Четыре просторные спальни удовлетворят потребности большой семьи. Металлочерепица придает фасадам благородный вид. Удачное сочетание современных технологий и классической эстетики.Характеристики
- Общая площадь: 164 м2
- Количество этажей: 2
- Стиль, разновидность: Дома в стиле Русский
- Форма: Прямоугольные дома
- Тип кровли: Дома с многощипцовой крышей
- Отделка: Без отделки
Отправьте свои контакты и мы расчитаем вам смету
Скорее всего вам подойдут следующие проекты домов:
Дом подходит для:
Дом подходит для:
Проект двухэтажного дома Типовой проект энергосберегающего каркасного жилого дома. Производство ООО Регион Строй
Семья с двумя детьми
Дом подходит для:
Дом подходит для:









