Проект одноэтажного дома А 23
Дом подходит для:
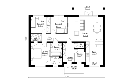
Площадь
135 м 2
Размер дома:
14,3х13,6
Этажей:
1
Спален:
3
Санузел:
3
Гараж:
Нет
Баня:
Нет
Терраса:
Нет
Панорамные окна:
Нет
Мастер-спальня:
Нет
Планировка
Фасады
О проекте
Просторные помещения этого дома площадью 135 м² наполнены особым теплом и светом. Жилая площадь 104 м² предназначена для семьи с двумя детьми, предлагая уют и практичность. Газобетон в стенах обеспечивает надежность и энергоэффективность, делая дом теплым и добротным. Здесь каждый метр продуман для жизни в гармонии и спокойствии.Характеристики
- Общая площадь: 135 м2
- Жилая площадь: 104 м2
- Количество этажей: 1
- Гараж: нет
- Площадь кровли: 139 м2
- Отделка: Без отделки
- Фундамент: Дома с плитным фундаментом
Материалы и перечень работ
- Монолитная ж/б плита 300 мм. Арматура диаметром 12мм.
- Газобетон YTONG 375 мм.
- Газобетон YTONG 100 мм.
- Стропила − п/м 50х150мм. Кровля − металлочерепица GRAND LINE , цвет на выбор, укладывается и закрепляется на обрешетке из п/м 25х150мм, по ветровлагозащитной паропроницаемой мембране.
- Утепление кровли
- REHAU 70 профиль белый.
- Вентиляция кухни и сан. узлов естественная, с подготовкой под установку котла отопления,выводится на кровлю при помощи вент. шахт.
- Газобетон YTONG 375 мм.
- Монолитная ж/б плита 300 мм. Арматура диаметром 12мм.
- Газобетон YTONG 375 мм.
- Газобетон YTONG 100 мм.
- Стропила − п/м 50х150мм. Кровля − металлочерепица GRAND LINE , цвет на выбор, укладывается и закрепляется на обрешетке из п/м 25х150мм, по ветровлагозащитной паропроницаемой мембране.
- Утепление кровли
- REHAU 70 профиль белый.
- Вентиляция кухни и сан. узлов естественная, с подготовкой под установку котла отопления,выводится на кровлю при помощи вент. шахт.
- Газобетон YTONG 375 мм.
Что еще входит в стоимость:
Отправьте свои контакты и мы расчитаем вам смету
Скорее всего вам подойдут следующие проекты домов:
Проект одноэтажного дома Софт
Семья с двумя детьми
Дом подходит для:
Дом подходит для:
Проект одноэтажного дома Дом id-113502
Семья с двумя детьми
Дом подходит для:
Дом подходит для:
Проект одноэтажного дома Дом id-120183
Семья с двумя детьми
Дом подходит для:
Дом подходит для:


















