Проект двухэтажного дома А-Фрейм 52
Дом подходит для:
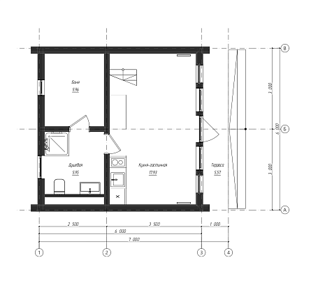
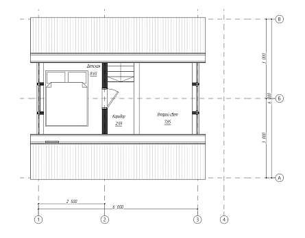
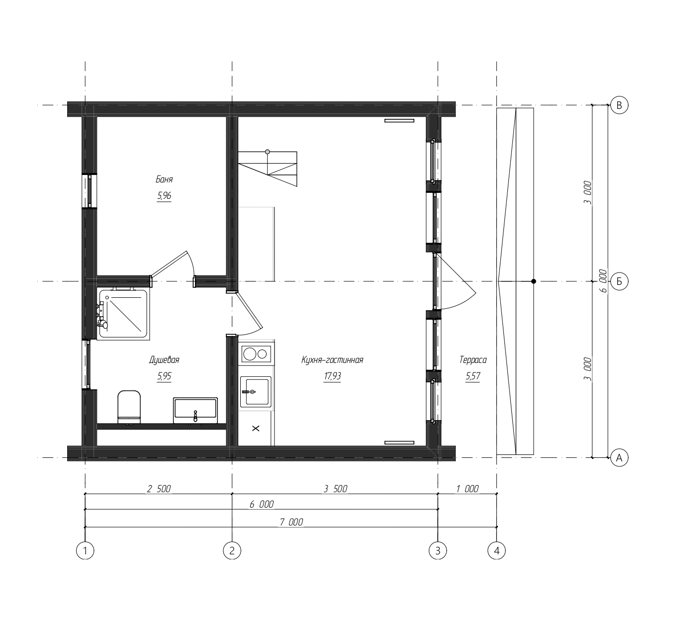
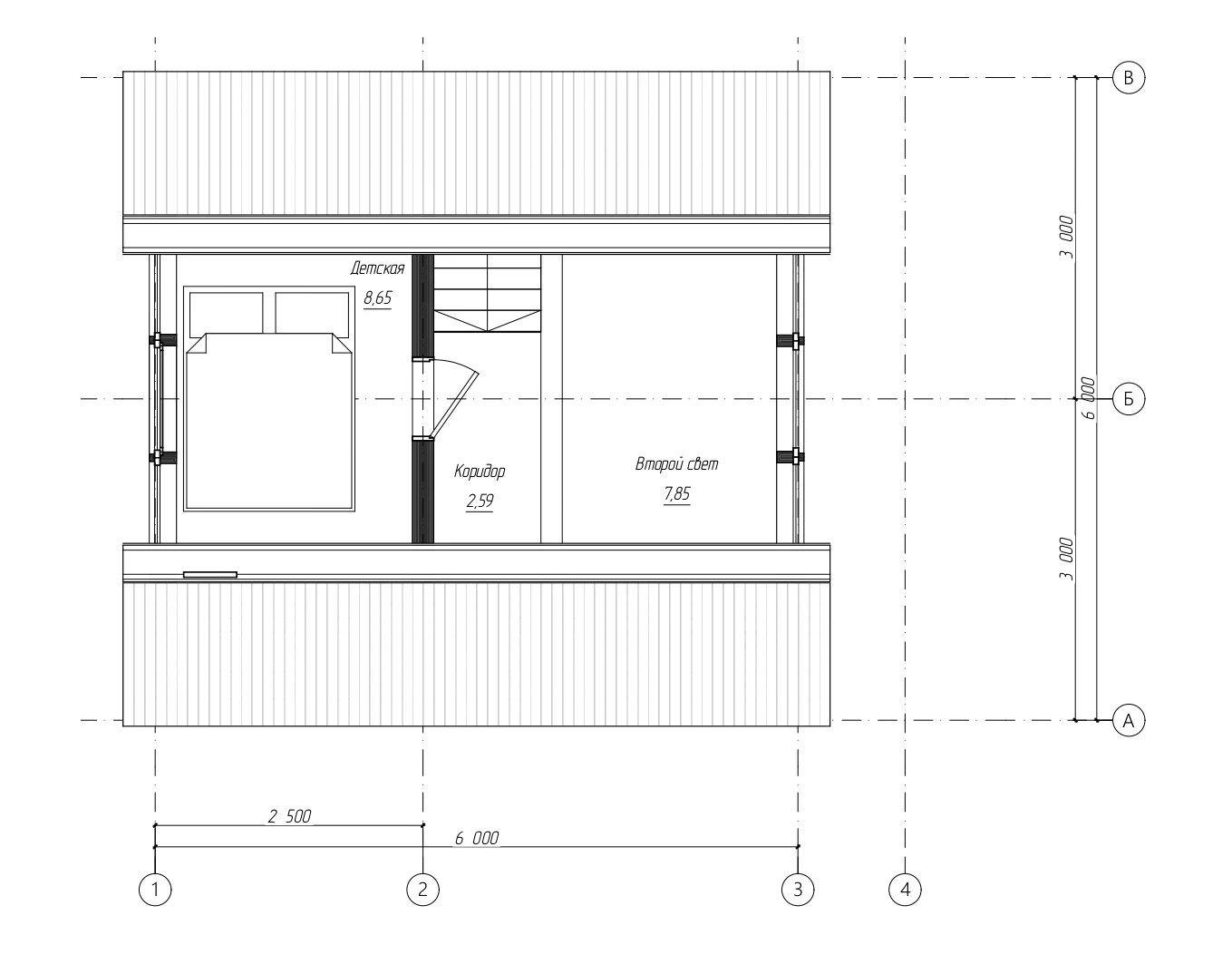
Площадь
52 м 2
Размер дома:
7x6
Этажей:
2
Спален:
1
Санузел:
1
Гараж:
Нет
Баня:
Нет
Терраса:
Нет
Панорамные окна:
Нет
Мастер-спальня:
Нет
Планировка
Характеристики
- Общая площадь: 52 м2
- Жилая площадь: 30 м2
- Количество этажей: 2
- Гараж: нет
- Площадь кровли: 52 м2
- Отделка: Без отделки
- Размер: 7x6
- Фундамент: Дома со свайно-винтовым фундаментом
Материалы и перечень работ
- Фундамент свайно-винтовой (с учетом ровности участка и шага сваи в 2 м и высотой сваи не более 2,5 м)
- Пол и крыша: 200 мм
- Стены: 200 мм
- Кровля: профлист
- Окна: 2-камерные стеклопакеты REHAU c энергосберегающим напылением и внешней ламинацией в цвет фасада
- ПАКЕТ САНТЕХНИКА (бойлер 80-100л, сантехника в санузле, наружная разводка сантехнических труб)
- ПАКЕТ ВЕНТИЛЯЦИЯ (приток + вентилятор на кухне и с/у)
- ПАКЕТ ЭЛЕКТРИКА (скрытая\открытая проводка, ретро - на выбор), заземление через стержень
- Отделка внутри и снаружи: имитация бруса сорт А-Б/ планкен Хвоя
- Покраска комплексная снаружи и внутри
- Комплексная отделка цоколя брусом 40х20 мм H0,5м
- Фундамент свайно-винтовой (с учетом ровности участка и шага сваи в 2 м и высотой сваи не более 2,5 м)
- Пол и крыша: 200 мм
- Стены: 200 мм
- Кровля: профлист
- Окна: 2-камерные стеклопакеты REHAU c энергосберегающим напылением и внешней ламинацией в цвет фасада
- ПАКЕТ САНТЕХНИКА (бойлер 80-100л, сантехника в санузле, наружная разводка сантехнических труб)
- ПАКЕТ ВЕНТИЛЯЦИЯ (приток + вентилятор на кухне и с/у)
- ПАКЕТ ЭЛЕКТРИКА (скрытая\открытая проводка, ретро - на выбор), заземление через стержень
- Отделка внутри и снаружи: имитация бруса сорт А-Б/ планкен Хвоя
- Покраска комплексная снаружи и внутри
- Комплексная отделка цоколя брусом 40х20 мм H0,5м
Что еще входит в стоимость:
Отправьте свои контакты и мы расчитаем вам смету
Скорее всего вам подойдут следующие проекты домов:
Проект двухэтажного дома Авангард 2
Семья с одним ребенком
Дом подходит для:
Дом подходит для:
Дом подходит для:






