Проект одноэтажного дома Aatelitalo 1-95A
Дом подходит для:
Площадь
131 м 2
Размер дома:
9x12
Этажей:
1
Спален:
3
Санузел:
2
Гараж:
Нет
Баня:
Нет
Терраса:
Нет
Панорамные окна:
Нет
Мастер-спальня:
Нет
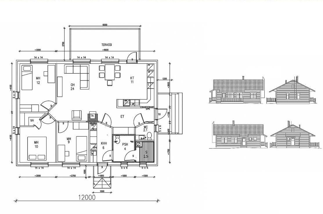
Планировка
Характеристики
- Общая площадь: 131 м2
- Жилая площадь: 108 м2
- Количество этажей: 1
- Гараж: нет
- Площадь кровли: 135 м2
- Отделка: Без отделки
- Фундамент: Дома со свайным фундаментом
Материалы и перечень работ
- Свайно-забивной с двухкомпонентным покрытием из эпоксидной смолы для защиты от гниения, диаметр 108мм
- Оцинкованные ершеные гвозди
- Скандинавский профиль, окрашенный в заводских условиях в 3 слоя
- Изоляция стыков досок каркаса : Полиэфирный утеплитель Аватерм
- Утепление: Стены 150 мм, перекрытия 200мм Teploknauf плитный
- Кровля: Металлочерепица Grandline, 0,45 PE Classic, цвет мокрый асфальт
- Защита вентзазора кровли: ПВХ сетка + двойной капельник
- Окна: Профиль Rehau Grazio 70мм, 5 камер, двухкамерные стеклопакеты c i-напылением, размеры как в проекте
- Дверь входная: Металлическая Сибирь Термо с терморазрывом + утепленный короб Термо Магнит, толщина полотна 102мм
- Отделка карнизов: Сухая строганая доска 20х90мм
- Водоснабжение и канализация: Скрытая система канализации и водоснабжения с водонагревателем 80л
- Электрика: Устройство скрытой трехфазной электропроводки, 15кВт
- Отделка стен и потолков: Вагонка евростандарт, хвоя/сосна
- Свайно-забивной с двухкомпонентным покрытием из эпоксидной смолы для защиты от гниения, диаметр 108мм
- Оцинкованные ершеные гвозди
- Скандинавский профиль, окрашенный в заводских условиях в 3 слоя
- Изоляция стыков досок каркаса : Полиэфирный утеплитель Аватерм
- Утепление: Стены 150 мм, перекрытия 200мм Teploknauf плитный
- Кровля: Металлочерепица Grandline, 0,45 PE Classic, цвет мокрый асфальт
- Защита вентзазора кровли: ПВХ сетка + двойной капельник
- Окна: Профиль Rehau Grazio 70мм, 5 камер, двухкамерные стеклопакеты c i-напылением, размеры как в проекте
- Дверь входная: Металлическая Сибирь Термо с терморазрывом + утепленный короб Термо Магнит, толщина полотна 102мм
- Отделка карнизов: Сухая строганая доска 20х90мм
- Водоснабжение и канализация: Скрытая система канализации и водоснабжения с водонагревателем 80л
- Электрика: Устройство скрытой трехфазной электропроводки, 15кВт
- Отделка стен и потолков: Вагонка евростандарт, хвоя/сосна
Что еще входит в стоимость:
Отправьте свои контакты и мы расчитаем вам смету
Скорее всего вам подойдут следующие проекты домов:
Дом подходит для:
Дом подходит для:
Дом подходит для:














