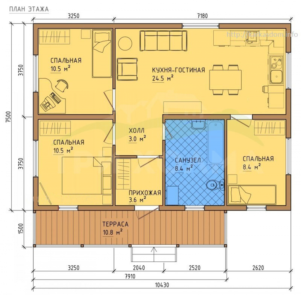
Проект одноэтажного дома Абрис
Площадь
70 м 2
Размер дома:
7x10
Этажей:
1
Спален:
3
Санузел:
0
Гараж:
Нет
Баня:
Нет
Терраса:
Нет
Панорамные окна:
Нет
Мастер-спальня:
Нет
О проекте
Проект, где двор и дом составляют единое гармоничное пространство. Площадь 70 м² задаёт ритм современного быта. Материал кровли — металлочерепица, что добавляет зданию индивидуальность. Стены из Каркас хорошо держат тепло и защищают от шума. Одноэтажная уютная планировка делает зонирование более логичным.Характеристики
- Общая площадь: 70 м2
- Количество этажей: 1
- Стиль, разновидность: Дома в стиле Прованс
- Форма: Прямоугольные дома
- Тип кровли: Дома с двускатной крышей
- Отделка: Без отделки
- Размер: 7x10
Отправьте свои контакты и мы расчитаем вам смету
Скорее всего вам подойдут следующие проекты домов:
Дом подходит для:
Дом подходит для:
Дом подходит для:














