Проект одноэтажного дома Алан
Дом подходит для:
Площадь
99 м 2
Размер дома:
14х9
Этажей:
1
Спален:
3
Санузел:
1
Гараж:
Нет
Баня:
Нет
Терраса:
Нет
Панорамные окна:
Нет
Мастер-спальня:
Нет
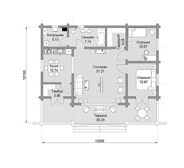
Планировка
Фасады
О проекте
Компактный и удобный дом площадью 99 м² с жилыми 69 м² идеален для семейного уюта. Брус в стенах создает теплую и дышащую атмосферу, а один этаж делает его простым и понятным. Три спальни и один санузел обеспечивают комфорт для семьи с детьми. Этот проект сочетает в себе скромность и функциональность.Характеристики
- Общая площадь: 99 м2
- Жилая площадь: 69 м2
- Количество этажей: 1
- Гараж: нет
- Площадь кровли: 103 м2
- Отделка: Без отделки
Материалы и перечень работ
- В стоимость не входит
- Стеновой домокомплект из обрезного (не профилированного) бруса естественной влажности, сечением 150х150 мм, в комплект входят все расходные материалы такие как нагель, метизы, утеплитель межвенцовый, компенсаторы, шпильки, уголки монтажные, гвозди.
- Перекрытие выполняется из балок сечением 200х100 с шагом не более 600 мм (в зависимости от нагрузки)
- Кровля под рубероид
- В стоимость не входит
- Монтаж вводов под последующее подключение канализации и водопровода
- Стеновой домокомплект из обрезного (не профилированного) бруса естественной влажности
- В стоимость не входит
- Стеновой домокомплект из обрезного (не профилированного) бруса естественной влажности, сечением 150х150 мм, в комплект входят все расходные материалы такие как нагель, метизы, утеплитель межвенцовый, компенсаторы, шпильки, уголки монтажные, гвозди.
- Перекрытие выполняется из балок сечением 200х100 с шагом не более 600 мм (в зависимости от нагрузки)
- Кровля под рубероид
- В стоимость не входит
- Монтаж вводов под последующее подключение канализации и водопровода
- Стеновой домокомплект из обрезного (не профилированного) бруса естественной влажности
Что еще входит в стоимость:
Отправьте свои контакты и мы расчитаем вам смету
Скорее всего вам подойдут следующие проекты домов:
Дом подходит для:
Дом подходит для:
Дом подходит для:














