Проект двухэтажного дома Алтуховы
Дом подходит для:
Площадь
189 м 2
Размер дома:
10.5х9
Этажей:
2
Спален:
4
Санузел:
1
Гараж:
Нет
Баня:
Нет
Терраса:
Нет
Панорамные окна:
Нет
Мастер-спальня:
Нет
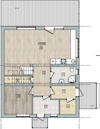
Планировка
Фасады
О проекте
Уютный дом из теплоблоков площадью 189 м² идеален для семьи с детьми. Жилая зона 149 м² обустроена с заботой о комфорте, а металлочерепица придает кровле стильный вид. Четыре спальни и санузел создают уютную атмосферу для повседневной жизни. Простота и надежность здесь сочетаются с домашним теплом.Характеристики
- Общая площадь: 189 м2
- Жилая площадь: 149 м2
- Количество этажей: 2
- Площадь кровли: 194 м2
Материалы и перечень работ
- Геологические изыскания - исследование проводится путем бурения 3-х скважин глубиной 8 метров с отбором грунта.
- Подготовка проекта
- Утепленная монолитная плита с усиленными ребрами жесткостями под несущие стены, теплоизоляция фундамента и грунта.
- Приемка инженером тех. надзора
- Подготовка проекта
- Изготовление ж/б армопояса
- Несущие стены толщиной от 300 мм
- Перекрытия из железобетонных плит заводского изготовления
- Сборка стенового комплекта
- Подготовка проекта КД кровли
- Покрытие кровли - металлочерепица Grandline с полимерным покрытием Satin
- Стропильная система из бруса
- Гидро-ветрозащитная мембрана
- Многослойная паронепроницаемая армированная плёнка из полиэтилена
- В железобетонной плите фундамента устраиваются закладные для ввода в дом коммуникаций: электричества, водоснабжения и канализации.
- Внешняя отделка: кирпичная кладка/утепленные панели под кирпич (на выбор клиента)
- Геологические изыскания - исследование проводится путем бурения 3-х скважин глубиной 8 метров с отбором грунта.
- Подготовка проекта
- Утепленная монолитная плита с усиленными ребрами жесткостями под несущие стены, теплоизоляция фундамента и грунта.
- Приемка инженером тех. надзора
- Подготовка проекта
- Изготовление ж/б армопояса
- Несущие стены толщиной от 300 мм
- Перекрытия из железобетонных плит заводского изготовления
- Сборка стенового комплекта
- Подготовка проекта КД кровли
- Покрытие кровли - металлочерепица Grandline с полимерным покрытием Satin
- Стропильная система из бруса
- Гидро-ветрозащитная мембрана
- Многослойная паронепроницаемая армированная плёнка из полиэтилена
- В железобетонной плите фундамента устраиваются закладные для ввода в дом коммуникаций: электричества, водоснабжения и канализации.
- Внешняя отделка: кирпичная кладка/утепленные панели под кирпич (на выбор клиента)
Что еще входит в стоимость:
Отправьте свои контакты и мы расчитаем вам смету
Скорее всего вам подойдут следующие проекты домов:
Проект двухэтажного дома Дом id-114826
Для большой семьи
Дом подходит для:
Дом подходит для:
Проект двухэтажного дома Дом id-124788
Для большой семьи
Дом подходит для:
Дом подходит для:
Проект двухэтажного дома Дом id-124136
Для большой семьи
Дом подходит для:
Дом подходит для:

























