Проект двухэтажного дома Андрейково
Площадь
215 м 2
Размер дома:
13x12
Этажей:
2
Спален:
3
Санузел:
0
Гараж:
Нет
Баня:
Нет
Терраса:
Нет
Панорамные окна:
Нет
Мастер-спальня:
Нет
О проекте
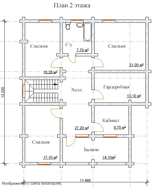
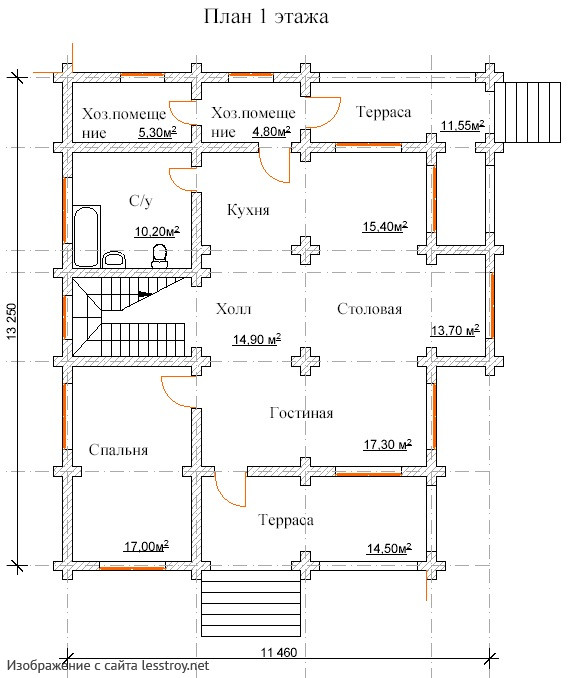
Двухэтажный бревенчатый терем площадью 215 м² с мансардной крышей из металлочерепицы. Три просторные спальни, кабинет и гостиная с русской печью создают атмосферу традиционного загородного имения. Массивные бревенчатые стены обеспечивают естественную регуляцию микроклимата.Характеристики
- Общая площадь: 215 м2
- Количество этажей: 2
- Стиль, разновидность: Дома в стиле Русский
- Форма: Квадратные дома
- Тип кровли: Дома с мансардной крышей
- Отделка: Без отделки
- Размер: 13x12
Отправьте свои контакты и мы расчитаем вам смету
Скорее всего вам подойдут следующие проекты домов:
Дом подходит для:
Дом подходит для:
Проект двухэтажного дома Дом из оцилиндрованного бревна ОЦБ-23
Семья с двумя детьми
Дом подходит для:
Дом подходит для:











