Проект одноэтажного дома Б-09
Дом подходит для:
Площадь
30 м 2
Размер дома:
6x4
Этажей:
1
Спален:
1
Санузел:
1
Гараж:
Нет
Баня:
Нет
Терраса:
Нет
Панорамные окна:
Нет
Мастер-спальня:
Нет
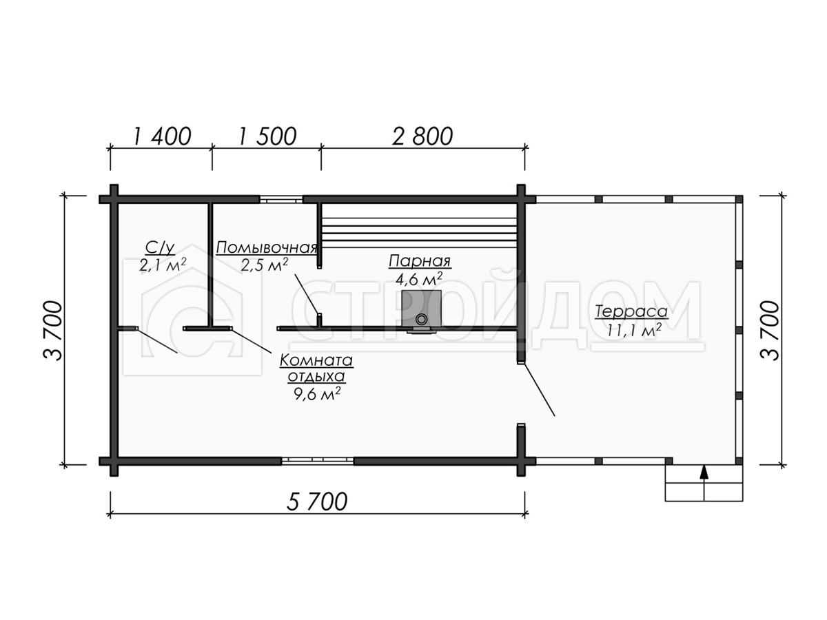
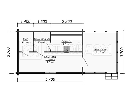
Планировка
Фасады
О проекте
Дом площадью 30 м² с жилой зоной 11 м² предлагает комфорт и простор для небольшой семьи. Одна спальня и один санузел создают уютное пространство, а брусовая конструкция дарят тепло и тишину. Продуманная планировка делает жизнь здесь удобной и гармоничной. Это дом, где каждая деталь продумана для вашего уюта.Характеристики
- Общая площадь: 29.9 м2
- Жилая площадь: 11 м2
- Количество этажей: 1
- Гараж: нет
- Площадь кровли: 34 м2
- Отделка: Без отделки
- Размер: 6x4
Материалы и перечень работ
- В стоимость не входит
- Основание брус 150х150 мм, антисептированый;
- Черновой пол доска 22х100 мм; ест влажности.
- Балки перекрытия первого этажа брус 150х100 мм; ест влажности.
- Сруб (наружные стены) брус профилированный 150х150 мм; ест влажности.
- Перегородки (внутренние стены) брус профилированный 150х100 мм; ест влажности.
- Стропила доска 40х150 мм; ест влажности.
- Металлочерепица профиль толщина стали 0,45(мм), покрытие полиэстер 25мкм, количество цинка 100-140г\м2, производитель металл профиль, высота профиля 46(мм);
- Подкровельная пароизоляция ондутис SMART A 120 с интегрированной монтажной лентой 1,5х50м
- Подкровельный вентзазор брусок 40х50 мм;
- Подкровельная обрешетка доска 25х100 мм;
- В стоимость не входят
- В стоимость не входит
- В стоимость не входит
- В стоимость не входит
- Основание брус 150х150 мм, антисептированый;
- Черновой пол доска 22х100 мм; ест влажности.
- Балки перекрытия первого этажа брус 150х100 мм; ест влажности.
- Сруб (наружные стены) брус профилированный 150х150 мм; ест влажности.
- Перегородки (внутренние стены) брус профилированный 150х100 мм; ест влажности.
- Стропила доска 40х150 мм; ест влажности.
- Металлочерепица профиль толщина стали 0,45(мм), покрытие полиэстер 25мкм, количество цинка 100-140г\м2, производитель металл профиль, высота профиля 46(мм);
- Подкровельная пароизоляция ондутис SMART A 120 с интегрированной монтажной лентой 1,5х50м
- Подкровельный вентзазор брусок 40х50 мм;
- Подкровельная обрешетка доска 25х100 мм;
- В стоимость не входят
- В стоимость не входит
- В стоимость не входит
Что еще входит в стоимость:
Отправьте свои контакты и мы расчитаем вам смету
Скорее всего вам подойдут следующие проекты домов:
Дом подходит для:
Проект одноэтажной бани Мята
Семья с одним ребенком
Баня подходит для:
Баня подходит для:






