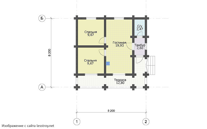
Проект одноэтажного дома Баня 7.4х8.0
Площадь
52 м 2
Размер дома:
Этажей:
1
Спален:
1
Санузел:
0
Гараж:
Нет
Баня:
Нет
Терраса:
Нет
Панорамные окна:
Нет
Мастер-спальня:
Нет
О проекте
Компактный дом площадью 52 м² из бревна с рубероидной кровлей идеален для уединенного отдыха. Одна спальня и один этаж делают его удобным для одного человека. Русский стиль подчеркивает естественность и близость к природе. Проект подойдет для дачи или гостевого дома.Характеристики
- Общая площадь: 52 м2
- Количество этажей: 1
- Стиль, разновидность: Дома в стиле Русский
- Форма: Прямоугольные дома
- Тип кровли: Дома с многощипцовой крышей
- Отделка: Без отделки














