Проект двухэтажного дома Баня из сруба
Площадь
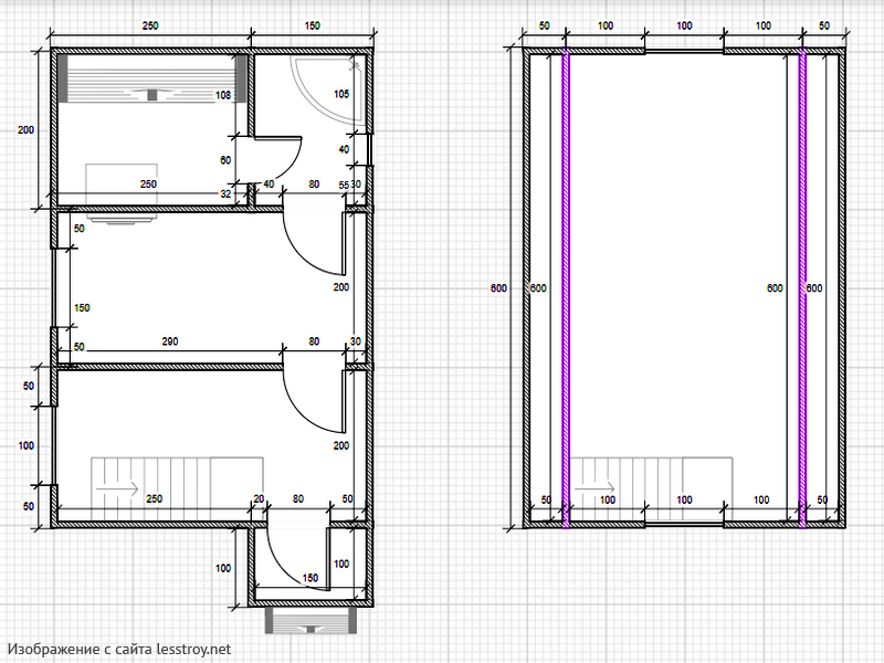
56 м 2
Размер дома:
4x6
Этажей:
2
Спален:
1
Санузел:
0
Гараж:
Нет
Баня:
Нет
Терраса:
Нет
Панорамные окна:
Нет
Мастер-спальня:
Нет
О проекте
Вы почувствуете комфорт с первого же дня проживания в этом доме.Простор и комфорт объединяются в 86 м². Проект включает 2 спальни — удобно для семьи. Выбор бруса обусловлен его теплоизоляционными свойствами. В качестве кровли использована рубероид — материал, проверенный временем.Характеристики
- Общая площадь: 56 м2
- Количество этажей: 2
- Стиль, разновидность: Дома в стиле Русский
- Форма: Прямоугольные дома
- Тип кровли: Дома с мансардной крышей
- Отделка: Без отделки
- Размер: 4x6













