Проект двухэтажного дома Барин 80
Площадь
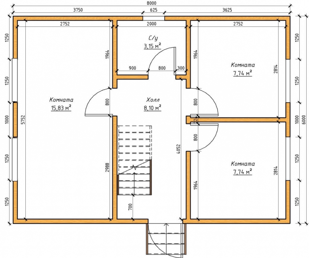
80 м 2
Размер дома:
6x8
Этажей:
2
Спален:
4
Санузел:
0
Гараж:
Нет
Баня:
Нет
Терраса:
Нет
Панорамные окна:
Нет
Мастер-спальня:
Нет
О проекте
Интерьеры, где потолки имеют особую акустическую обработку. 80 м² организованы так, чтобы всем было удобно. Стены из Каркас хорошо держат тепло и защищают от шума. Наличие 4 спальни удовлетворит запросы семьи с детьми. Двухэтажная эргономичная планировка создаёт идеальные условия для жизни всей семьи.Характеристики
- Общая площадь: 80 м2
- Количество этажей: 2
- Стиль, разновидность: Дома в ином стиле
- Форма: Прямоугольные дома
- Тип кровли: Дома с двускатной крышей
- Отделка: Без отделки
- Размер: 6x8














