Проект двухэтажного дома BARN 132
Дом подходит для:
Площадь
132 м 2
Размер дома:
13 х 9,3 х 8,3
Этажей:
2
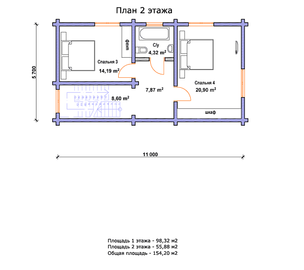
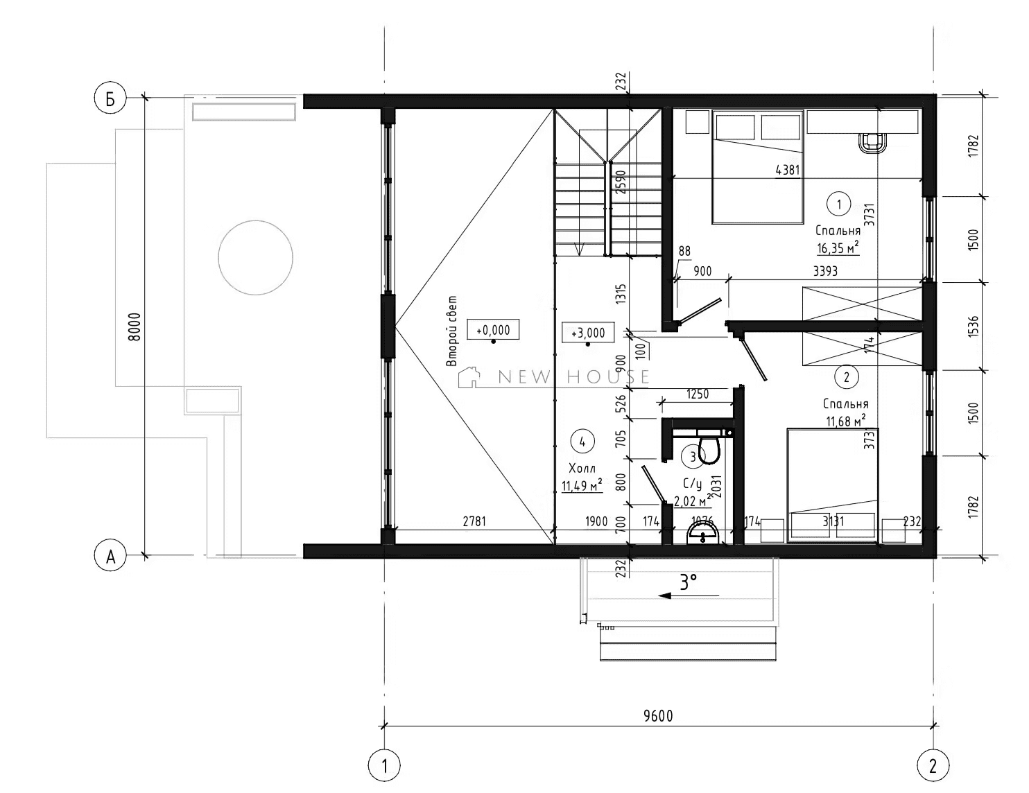
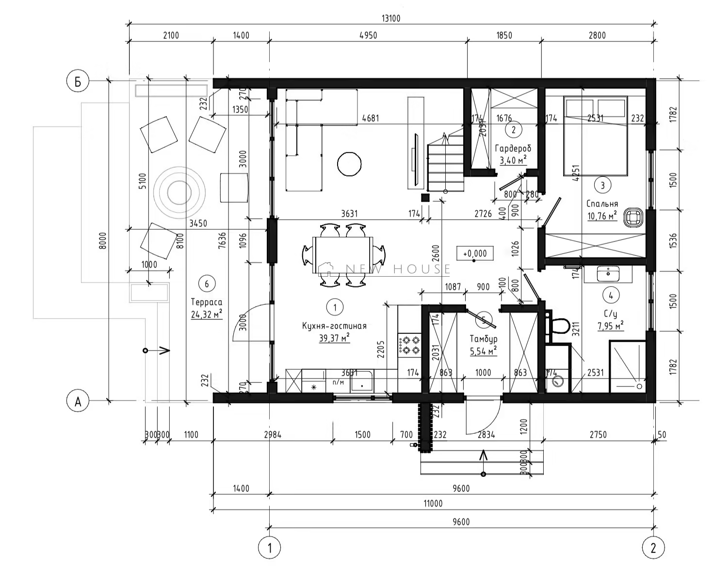
Спален:
3
Санузел:
2
Гараж:
Нет
Баня:
Нет
Терраса:
Нет
Панорамные окна:
Нет
Мастер-спальня:
Нет
Планировка
Характеристики
- Общая площадь: 132 м2
- Жилая площадь: 108 м2
- Количество этажей: 2
- Гараж: нет
- Площадь кровли: 136 м2
- Отделка: Без отделки
Материалы и перечень работ
- В зависимости от почвы
- ЗАВОДСКОЙ КОМПЛЕКТ КАРКАСА PRECUT из усиленных двутавровых балок со стойками из бруса камерной сушки и ребром жёсткости из ОСП-3 12 мм, обшитый МДВП Белтермо ТОП 25 мм "шип-паз"
- ЦОКОЛЬНОЕ ПЕРЕКРЫТИЕ из БДКУ, подшив оцинкованной сеткой
- ГИДРО-ВЕТРОЗАЩИТА на крыше ветро-влагозащитная супердиффузионная мембрана с проклейкой швов скотчем DELTA
- ОКНА И ДВЕРИ системы из 6-камерного бельгийского ПВХ профиля Deceuninck Favorit Space 76 мм с трехконтурным уплотнением, цветного с обеих сторон, фурнитурой и многофункциональными энергосберегающими 2-камерными стеклопакетами (3 стекла) с заполнением Ar (газ Аргон)
- Не предусмотрена
- ЧИСТОВАЯ ОТДЕЛКА ВНЕШНИХ СТЕН - боковые фасады - профнастил Grand Line С20R 0,5 мм Satin RAL 9005, торцевые фасады - скандинавская тонкопиленная доска с заводской многослойной покраской, цвет на выбор Заказчика
- УТЕПЛЕНИЕ цокольного перекрытия - 200 мм, внешних стен - 150 мм + МДВП Белтермо ТОП 25 мм "шип-паз", крыши - 250 мм; пароизоляция с проклейкой швов скотчем DELTA
- В зависимости от почвы
- ЗАВОДСКОЙ КОМПЛЕКТ КАРКАСА PRECUT из усиленных двутавровых балок со стойками из бруса камерной сушки и ребром жёсткости из ОСП-3 12 мм, обшитый МДВП Белтермо ТОП 25 мм "шип-паз"
- ЦОКОЛЬНОЕ ПЕРЕКРЫТИЕ из БДКУ, подшив оцинкованной сеткой
- ГИДРО-ВЕТРОЗАЩИТА на крыше ветро-влагозащитная супердиффузионная мембрана с проклейкой швов скотчем DELTA
- ОКНА И ДВЕРИ системы из 6-камерного бельгийского ПВХ профиля Deceuninck Favorit Space 76 мм с трехконтурным уплотнением, цветного с обеих сторон, фурнитурой и многофункциональными энергосберегающими 2-камерными стеклопакетами (3 стекла) с заполнением Ar (газ Аргон)
- Не предусмотрена
- ЧИСТОВАЯ ОТДЕЛКА ВНЕШНИХ СТЕН - боковые фасады - профнастил Grand Line С20R 0,5 мм Satin RAL 9005, торцевые фасады - скандинавская тонкопиленная доска с заводской многослойной покраской, цвет на выбор Заказчика
- УТЕПЛЕНИЕ цокольного перекрытия - 200 мм, внешних стен - 150 мм + МДВП Белтермо ТОП 25 мм "шип-паз", крыши - 250 мм; пароизоляция с проклейкой швов скотчем DELTA
Что еще входит в стоимость:
Отправьте свои контакты и мы расчитаем вам смету
Скорее всего вам подойдут следующие проекты домов:
Дом подходит для:
Проект двухэтажного дома Проект 1324 - Дом из клееного бруса с 4 спальнями
Для большой семьи
Дом подходит для:
Дом подходит для:
Дом подходит для:











