Проект одноэтажного дома Барн 56
Дом подходит для:
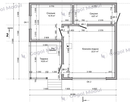
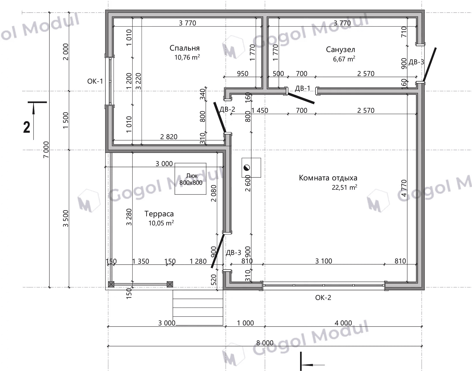
Площадь
56 м 2
Размер дома:
8х7
Этажей:
1
Спален:
1
Санузел:
1
Гараж:
Нет
Баня:
Нет
Терраса:
Нет
Панорамные окна:
Нет
Мастер-спальня:
Нет
Планировка
Характеристики
- Общая площадь: 56 м2
- Жилая площадь: 42 м2
- Количество этажей: 1
- Гараж: нет
- Площадь кровли: 59 м2
- Отделка: Без отделки
- Фундамент: Дома со свайно-винтовым фундаментом
Материалы и перечень работ
- Фундамент свайно-винтовой (с учетом ровности участка и шага сваи в 2 м и высотой сваи не более 2,5 м)
- Пол и крыша: 200 мм
- Стены: 200 мм
- Кровля: профлист
- Окна: 2-камерные стеклопакеты REHAU c энергосберегающим напылением и внешней ламинацией в цвет фасада
- ПАКЕТ САНТЕХНИКА (бойлер 80-100л, сантехника в санузле, наружная разводка сантехнических труб)
- ПАКЕТ ВЕНТИЛЯЦИЯ (приток + вентилятор на кухне и с/у)
- ПАКЕТ ЭЛЕКТРИКА (скрытая\открытая проводка, ретро - на выбор), заземление через стержень
- Отделка внутри и снаружи: имитация бруса сорт А-Б/ планкен Хвоя
- Покраска комплексная снаружи и внутри
- Комплексная отделка цоколя брусом 40х20 мм H0,5м
- Фундамент свайно-винтовой (с учетом ровности участка и шага сваи в 2 м и высотой сваи не более 2,5 м)
- Пол и крыша: 200 мм
- Стены: 200 мм
- Кровля: профлист
- Окна: 2-камерные стеклопакеты REHAU c энергосберегающим напылением и внешней ламинацией в цвет фасада
- ПАКЕТ САНТЕХНИКА (бойлер 80-100л, сантехника в санузле, наружная разводка сантехнических труб)
- ПАКЕТ ВЕНТИЛЯЦИЯ (приток + вентилятор на кухне и с/у)
- ПАКЕТ ЭЛЕКТРИКА (скрытая\открытая проводка, ретро - на выбор), заземление через стержень
- Отделка внутри и снаружи: имитация бруса сорт А-Б/ планкен Хвоя
- Покраска комплексная снаружи и внутри
- Комплексная отделка цоколя брусом 40х20 мм H0,5м
Что еще входит в стоимость:
Отправьте свои контакты и мы расчитаем вам смету
Скорее всего вам подойдут следующие проекты домов:
Дом подходит для:
Проект одноэтажного дома Woodhouse 45 Pro
Семья с одним ребенком
Дом подходит для:
Дом подходит для:
Проект одноэтажного дома BlagoBarn 51
Семья с одним ребенком
Дом подходит для:
Дом подходит для:











