Проект одноэтажного дома Барнхаус-100
Дом подходит для:
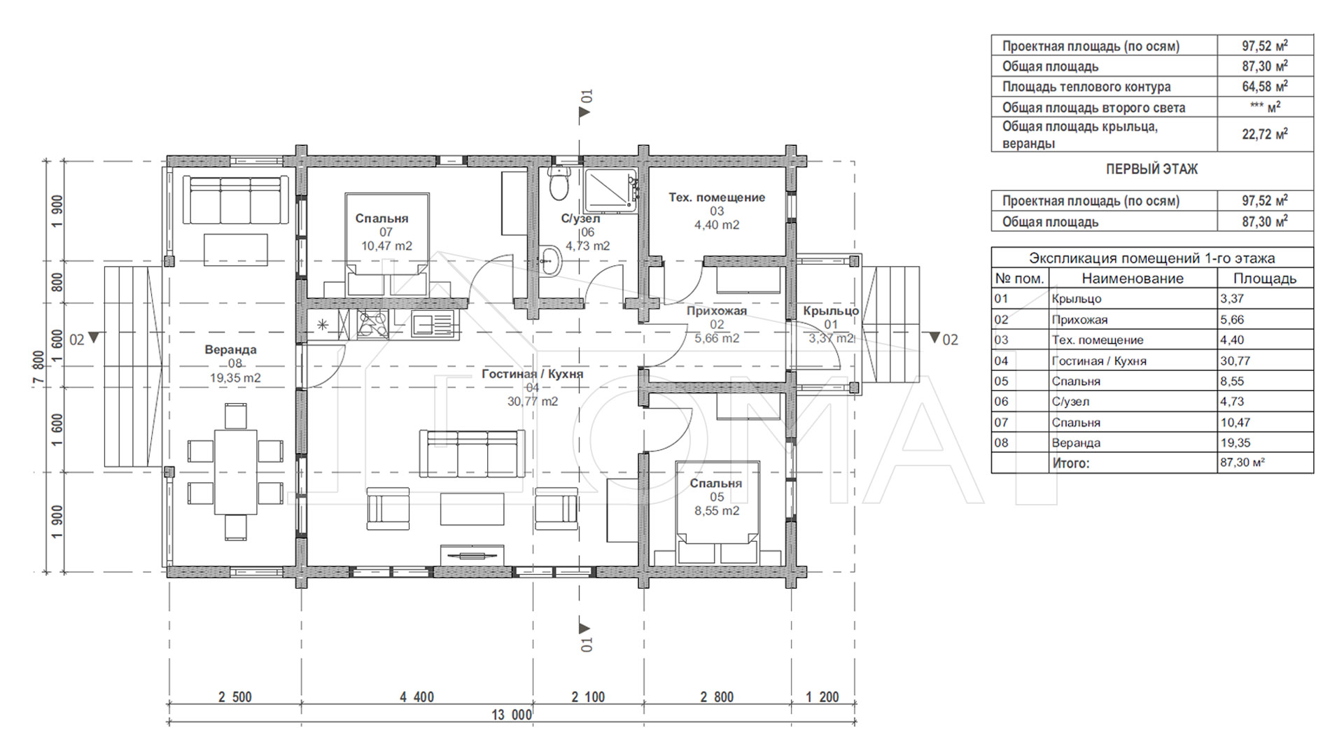
Площадь
95 м 2
Размер дома:
13,0 х 7,8
Этажей:
1
Спален:
2
Санузел:
1
Гараж:
Нет
Баня:
Нет
Терраса:
Нет
Панорамные окна:
Нет
Мастер-спальня:
Нет
Планировка
Фасады
О проекте
Дом, где каждый метр продуман до мелочей, сочетая в себе добротность и современность. Площадь 95 м² с жилыми 74 м² создает уютное пространство для семьи. Брус в основе стен дарит тепло и натуральность, а лаконичный дизайн добавляет элегантности. Здесь царит атмосфера спокойствия и домашнего тепла.Характеристики
- Общая площадь: 95 м2
- Жилая площадь: 74 м2
- Количество этажей: 1
- Гараж: нет
- Площадь кровли: 99 м2
- Отделка: Без отделки
- Фундамент: Дома со свайно-ростверковым фундаментом
Материалы и перечень работ
- В стоимость не входит
- Высота потолка 1-го этажа: 2700 мм между балок перекрытий;
- Подкладочная доска (лиственница);
- Клеёный брус h185×205, европейский профиль;
- ЭПИ клеевые системы Prefere 6151 компании Dynea;
- Колонны клеёные 200х180; Раскрой материала, нарезка чашек.
- Стропильная система из сухой строганой доски 45×195 мм;
- Обрешетка, контробрешетка камерной сушки;
- Ветровая и лобовая доска (сухая строганая вагонка);
- Подшив свесов кровли вагонкой.
- В стоимость не входят
- В стоимость не входит
- Антисептирование брусового комплекта в заводских условиях;
- Обработка торцов парафином в заводских условиях.
- В стоимость не входит
- Высота потолка 1-го этажа: 2700 мм между балок перекрытий;
- Подкладочная доска (лиственница);
- Клеёный брус h185×205, европейский профиль;
- ЭПИ клеевые системы Prefere 6151 компании Dynea;
- Колонны клеёные 200х180; Раскрой материала, нарезка чашек.
- Стропильная система из сухой строганой доски 45×195 мм;
- Обрешетка, контробрешетка камерной сушки;
- Ветровая и лобовая доска (сухая строганая вагонка);
- Подшив свесов кровли вагонкой.
- В стоимость не входят
- В стоимость не входит
- Антисептирование брусового комплекта в заводских условиях;
- Обработка торцов парафином в заводских условиях.
Что еще входит в стоимость:
Отправьте свои контакты и мы расчитаем вам смету
Скорее всего вам подойдут следующие проекты домов:
Дом подходит для:
Дом подходит для:
Дом подходит для:










