Проект двухэтажного дома БарнХаус 3
Дом подходит для:
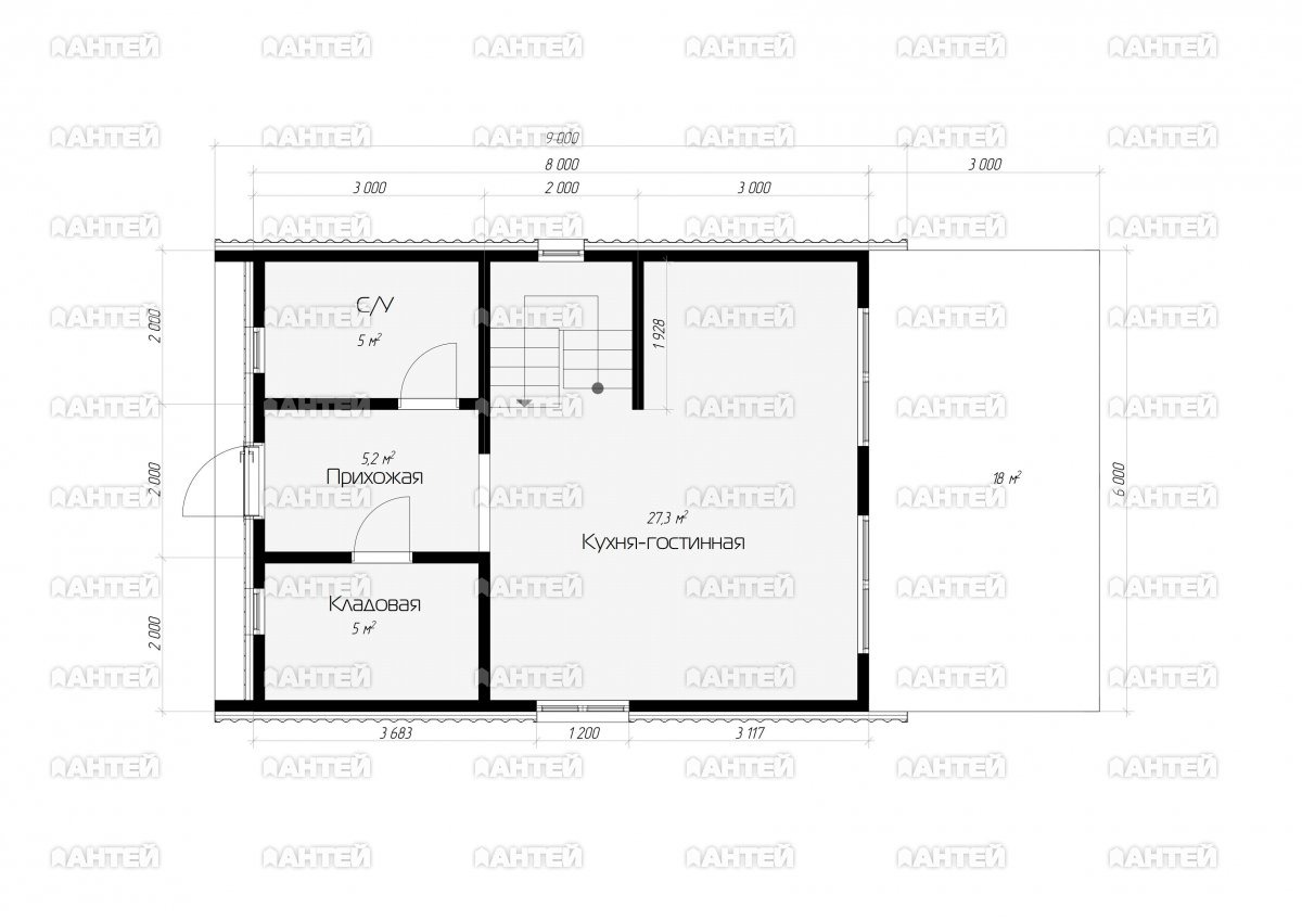
Площадь
81 м 2
Размер дома:
12х6
Этажей:
2
Спален:
3
Санузел:
2
Гараж:
Нет
Баня:
Нет
Терраса:
Нет
Панорамные окна:
Нет
Мастер-спальня:
Нет
Планировка
Характеристики
- Общая площадь: 81 м2
- Жилая площадь: 62 м2
- Количество этажей: 2
- Гараж: нет
- Площадь кровли: 85 м2
- Отделка: Без отделки
Материалы и перечень работ
- В стоимость не входит
- Основание (обработано антисептиком) составное из доски 40х145 камерной сушки
- Балки пола строганный брус камерной сушки 45х195мм (обработан антисептиком)
- Верхняя и нижняя обвязка доска 40х145мм камерной сушки
- Стойки доска 40х145мм камерной сушки
- Каркас перегородок доска 40х145мм камерной сушки
- Стропила доска 40х145мм камерной сушки
- Подшивка свесов перфорированный софит
- Кровельный материал металлочерепица "Grand Line Classiс" 0,45мм
- Мембраны, гидропароизоляция "Grand Line 170/ Delta Dawi GP"
- Окна ПВХ (профиль Melke Lite 70) двухкамерный стеклопакет белого цвета
- Межкомнатные двери филенчатые МДФ с ламинацией (с ручками и замками)
- Входная дверь металлическая "Torex Снегирь Pro"
- Вентиляционный канал: 2 воздуховода 125 мм и 1 воздуховод 150мм
- Наружняя обшивка имитация бруса 18х140мм (камерной сушки, сорт АВ)
- В стоимость не входит
- Основание (обработано антисептиком) составное из доски 40х145 камерной сушки
- Балки пола строганный брус камерной сушки 45х195мм (обработан антисептиком)
- Верхняя и нижняя обвязка доска 40х145мм камерной сушки
- Стойки доска 40х145мм камерной сушки
- Каркас перегородок доска 40х145мм камерной сушки
- Стропила доска 40х145мм камерной сушки
- Подшивка свесов перфорированный софит
- Кровельный материал металлочерепица "Grand Line Classiс" 0,45мм
- Мембраны, гидропароизоляция "Grand Line 170/ Delta Dawi GP"
- Окна ПВХ (профиль Melke Lite 70) двухкамерный стеклопакет белого цвета
- Межкомнатные двери филенчатые МДФ с ламинацией (с ручками и замками)
- Входная дверь металлическая "Torex Снегирь Pro"
- Вентиляционный канал: 2 воздуховода 125 мм и 1 воздуховод 150мм
- Наружняя обшивка имитация бруса 18х140мм (камерной сушки, сорт АВ)
Что еще входит в стоимость:
Отправьте свои контакты и мы расчитаем вам смету
Скорее всего вам подойдут следующие проекты домов:
Проект двухэтажного дома из клееного бруса 90.55
Семья с двумя детьми
Дом подходит для:
Дом подходит для:
Проект двухэтажного дома БД-100
Семья с двумя детьми
Дом подходит для:
Дом подходит для:
Проект двухэтажного дома Егорьевск
Для большой семьи
Дом подходит для:
Дом подходит для:














