Проект двухэтажного дома БД-3
Дом подходит для:
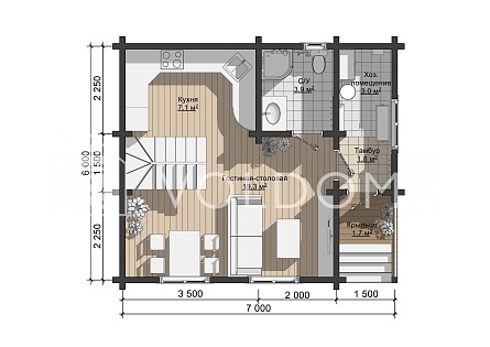
Площадь
59 м 2
Размер дома:
6x7
Этажей:
2
Спален:
2
Санузел:
1
Гараж:
Нет
Баня:
Нет
Терраса:
Нет
Панорамные окна:
Нет
Мастер-спальня:
Нет
Планировка
Характеристики
- Общая площадь: 59 м2
- Жилая площадь: 40 м2
- Количество этажей: 2
- Гараж: нет
- Площадь кровли: 64 м2
- Отделка: Без отделки
Материалы и перечень работ
- В стоимость не входит
- Стеновой комплект из профилированного бруса камерной сушки 190x145h мм
- Балки перекрытий
- Стропильная система
- Монтажные работы
- В стоимость не входит
- В стоимость не входит
- В стоимость не входит
- В стоимость не входит
- Стеновой комплект из профилированного бруса камерной сушки 190x145h мм
- Балки перекрытий
- Стропильная система
- Монтажные работы
- В стоимость не входит
- В стоимость не входит
- В стоимость не входит
Что еще входит в стоимость:
Отправьте свои контакты и мы расчитаем вам смету
Скорее всего вам подойдут следующие проекты домов:
Дом подходит для:
Дом подходит для:
Дом подходит для:














