Проект двухэтажного дома Белоусово — обрезной брус 150х150мм
Площадь
94 м 2
Размер дома:
7x8
Этажей:
2
Спален:
3
Санузел:
0
Гараж:
Нет
Баня:
Нет
Терраса:
Нет
Панорамные окна:
Нет
Мастер-спальня:
Нет
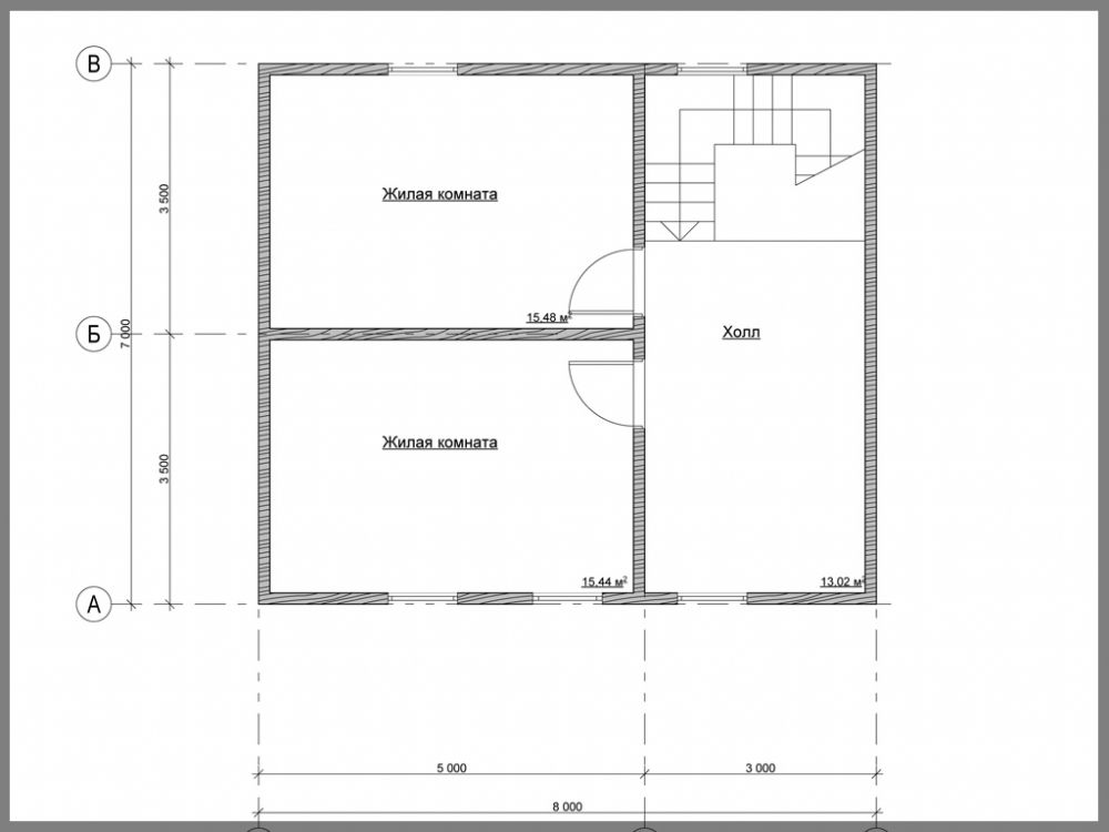
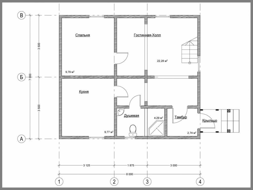
О проекте
Дом, в котором легко принимать гостей и также легко уединиться. Это не просто 94 м² — это зона комфорта. В качестве кровли использована металлочерепица — материал, проверенный временем. Двухэтажная современная планировка создаёт идеальные условия для жизни всей семьи. Количество спален — 3, делая планировку гибкой.Характеристики
- Общая площадь: 94 м2
- Количество этажей: 2
- Стиль, разновидность: Дома в ином стиле
- Тип кровли: Дома с иной крышей
- Отделка: Без отделки
- Размер: 7x8
Отправьте свои контакты и мы расчитаем вам смету
Скорее всего вам подойдут следующие проекты домов:
Дом подходит для:
Проект двухэтажного дома Дом 6х8 м с мансардной крышей и кухней-гостиной
Для большой семьи
Дом подходит для:
Дом подходит для:
Дом подходит для:














