Проект одноэтажного дома Белово
Площадь
293 м 2
Размер дома:
14x18
Этажей:
1
Спален:
2
Санузел:
0
Гараж:
Нет
Баня:
Нет
Терраса:
Нет
Панорамные окна:
Нет
Мастер-спальня:
Нет
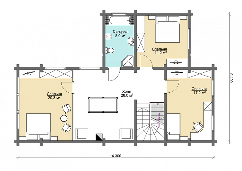
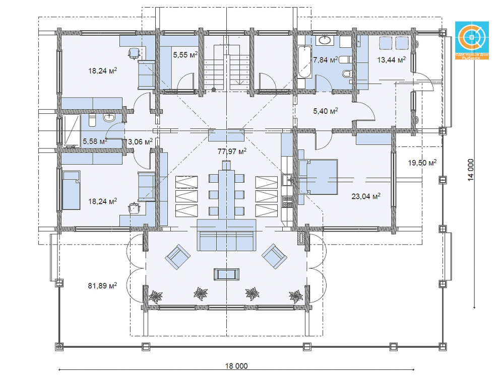
О проекте
Пространство, где современные материалы обрели душу благодаря детскому смеху. 207 м² — когда каждый угол важен. В доме предусмотрено 4 спальни, что важно для комфорта. Выбор каркаса обусловлен его теплоизоляционными свойствами. Материал кровли — металлочерепица, что добавляет зданию индивидуальность.Характеристики
- Общая площадь: 293 м2
- Количество этажей: 1
- Стиль, разновидность: Дома в стиле Кантри
- Форма: Квадратные дома
- Тип кровли: Дома с двускатной крышей
- Отделка: Без отделки
- Размер: 14x18
Отправьте свои контакты и мы расчитаем вам смету
Скорее всего вам подойдут следующие проекты домов:
Дом подходит для:
Дом подходит для:
Дом подходит для:












