Проект двухэтажного дома Билефельд
Дом подходит для:
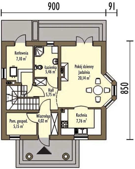
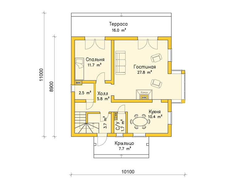
Площадь
157 м 2
Размер дома:
10.1 x 11
Этажей:
2
Спален:
3
Санузел:
2
Гараж:
Нет
Баня:
Нет
Терраса:
Нет
Панорамные окна:
Нет
Мастер-спальня:
Нет
Планировка
Фасады
О проекте
Эстетика и удобство сливаются в этом проекте, где каждый метр продуман до мелочей. Площадь дома 157 м² с жилыми 76 м² обеспечивает достаточно места для семьи с детьми. Газобетонные стены гарантируют надежность и теплоизоляцию. Интерьер отличается лаконичностью и современным стилем, делая жизнь здесь по-настоящему комфортной.Характеристики
- Общая площадь: 157 м2
- Жилая площадь: 76 м2
- Количество этажей: 2
- Гараж: нет
- Площадь кровли: 161 м2
- Отделка: Без отделки
- Фундамент: Дома с железобетонным свайным фундаментом
Материалы и перечень работ
- Разработка котлована
- Геотекстиль (плотностью не менее 150 г/м²)
- Песчаная подушка (300 мм)
- Геодезическое сопровождение
- Устройство монолитной плиты фундамента и фундаментных стен (сертифицированный бетон марки В22,5)
- Гидроизоляция под стенами
- Наружные стены из газобетона Bonolit / керамических блоков Porotherm
- Перегородки из газобетона Bonolit / керамических блоков Porotherm
- Монолитные дверные и оконные перемычки
- Монолитное перекрытие (если 2 этажа)
- Металлочерепица / Цементно-песчаная черепица / Мягкая кровля
- Стропильная система из доски 200х50 мм естественной влажности
- Утепление минеральной ватой (200 мм)
- Диффузионная мембрана
- Пароизоляция
- В стоимость не входят
- Естественная вентиляция Schiedel
- Закладные для ввода воды, канализации и электричества
- Монолитные колонны и балки
- Монолитный пояс для опирания кровли
- Разработка котлована
- Геотекстиль (плотностью не менее 150 г/м²)
- Песчаная подушка (300 мм)
- Геодезическое сопровождение
- Устройство монолитной плиты фундамента и фундаментных стен (сертифицированный бетон марки В22,5)
- Гидроизоляция под стенами
- Наружные стены из газобетона Bonolit / керамических блоков Porotherm
- Перегородки из газобетона Bonolit / керамических блоков Porotherm
- Монолитные дверные и оконные перемычки
- Монолитное перекрытие (если 2 этажа)
- Металлочерепица / Цементно-песчаная черепица / Мягкая кровля
- Стропильная система из доски 200х50 мм естественной влажности
- Утепление минеральной ватой (200 мм)
- Диффузионная мембрана
- Пароизоляция
- В стоимость не входят
- Естественная вентиляция Schiedel
- Закладные для ввода воды, канализации и электричества
- Монолитные колонны и балки
- Монолитный пояс для опирания кровли
Что еще входит в стоимость:
Отправьте свои контакты и мы расчитаем вам смету
Скорее всего вам подойдут следующие проекты домов:
Проект двухэтажного дома Дом id-111682
Семья с двумя детьми
Дом подходит для:
Дом подходит для:
Проект двухэтажного дома Дом id-118652
Для большой семьи
Дом подходит для:
Дом подходит для:
Проект двухэтажного дома Дом id-112358
Семья с двумя детьми
Дом подходит для:
Дом подходит для:






















