Проект двухэтажного дома БК 04
Дом подходит для:
Площадь
113 м 2
Размер дома:
8x10
Этажей:
2
Спален:
3
Санузел:
2
Гараж:
Нет
Баня:
Нет
Терраса:
Нет
Панорамные окна:
Нет
Мастер-спальня:
Нет
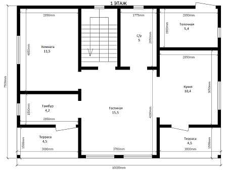
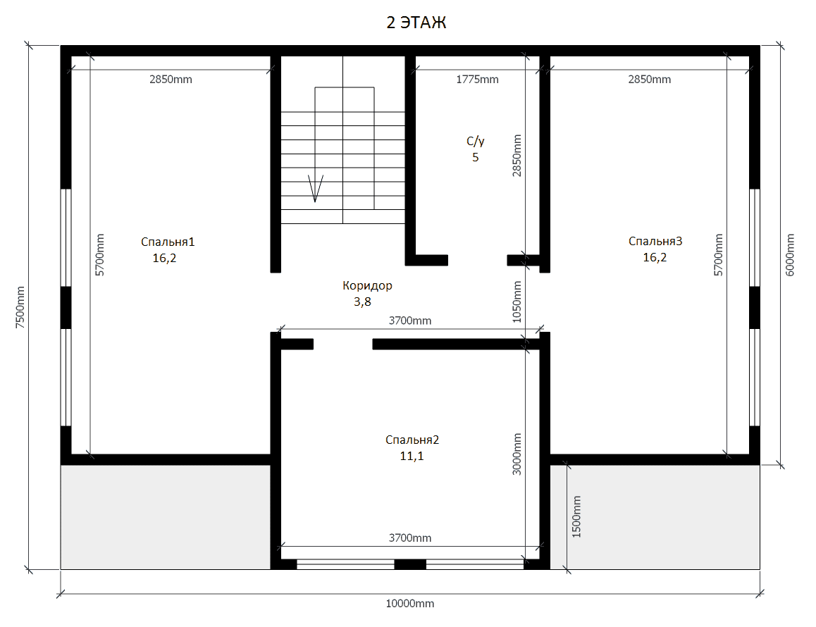
Планировка
Фасады
О проекте
Дом из бруса площадью 113 м² — место, где царит тепло и покой. Жилая зона 82 м² включает три спальни, обеспечивая комфорт для всех. Металлочерепица на кровле придает дому стильный вид, а натуральное дерево наполняет интерьер гармонией. Здесь сочетаются традиции и современный комфорт.Характеристики
- Общая площадь: 113 м2
- Жилая площадь: 82 м2
- Количество этажей: 2
- Гараж: нет
- Площадь кровли: 119 м2
- Отделка: Без отделки
- Размер: 8x10
Материалы и перечень работ
- Основание дома: брус 150x150 обработанный антисептиком, черновой пол — обрезная доска 25×100 мм., обработанный антисептиком.
- Каркас: стойки 50×150 мм с шагом не более 600 мм., лаги 1 этажа 50×150 мм. с шагом не более 600 мм., лаги потолка 1 этажа 50×150 мм с шагом не более 600 мм..
- Утепление: пол – минеральный плитный утеплитель KNAUF толщиной 150 мм. по мембране, потолок - минеральный плитный утеплитель KNAUF толщиной 150 мм. по мембране, наружные стены – минеральный плитный утеплитель KNAUF толщиной 150 мм. по мембране, перегородки - плитный утеплитель KNAUF толщиной 100 мм. по мембране.
- Перегородки: Стойки 50×100 мм.
- Потолок: евровагонка.
- Кровля: Металлочерепица по изоспану “АМ”, цвет на выбор.
- Дверь: Входная дверь – металлическая, производство Россия, межкомнатные – филенчатые клеенные из массива с наличниками из евровагонки.
- Окна: Пластиковые ,одинарный стеклопакет.
- В стоимость не входит
- Отделка: Наружная отделка – имитация бруса камерной сушки “АБ”, внутренняя отделка – имитация бруса камерной сушки “АБ”.
- Основание дома: брус 150x150 обработанный антисептиком, черновой пол — обрезная доска 25×100 мм., обработанный антисептиком.
- Каркас: стойки 50×150 мм с шагом не более 600 мм., лаги 1 этажа 50×150 мм. с шагом не более 600 мм., лаги потолка 1 этажа 50×150 мм с шагом не более 600 мм..
- Утепление: пол – минеральный плитный утеплитель KNAUF толщиной 150 мм. по мембране, потолок - минеральный плитный утеплитель KNAUF толщиной 150 мм. по мембране, наружные стены – минеральный плитный утеплитель KNAUF толщиной 150 мм. по мембране, перегородки - плитный утеплитель KNAUF толщиной 100 мм. по мембране.
- Перегородки: Стойки 50×100 мм.
- Потолок: евровагонка.
- Кровля: Металлочерепица по изоспану “АМ”, цвет на выбор.
- Дверь: Входная дверь – металлическая, производство Россия, межкомнатные – филенчатые клеенные из массива с наличниками из евровагонки.
- Окна: Пластиковые ,одинарный стеклопакет.
- В стоимость не входит
- Отделка: Наружная отделка – имитация бруса камерной сушки “АБ”, внутренняя отделка – имитация бруса камерной сушки “АБ”.
Что еще входит в стоимость:
Отправьте свои контакты и мы расчитаем вам смету
Скорее всего вам подойдут следующие проекты домов:
Дом подходит для:
Дом подходит для:
Дом подходит для:








