Проект двухэтажного дома БК 11
Дом подходит для:
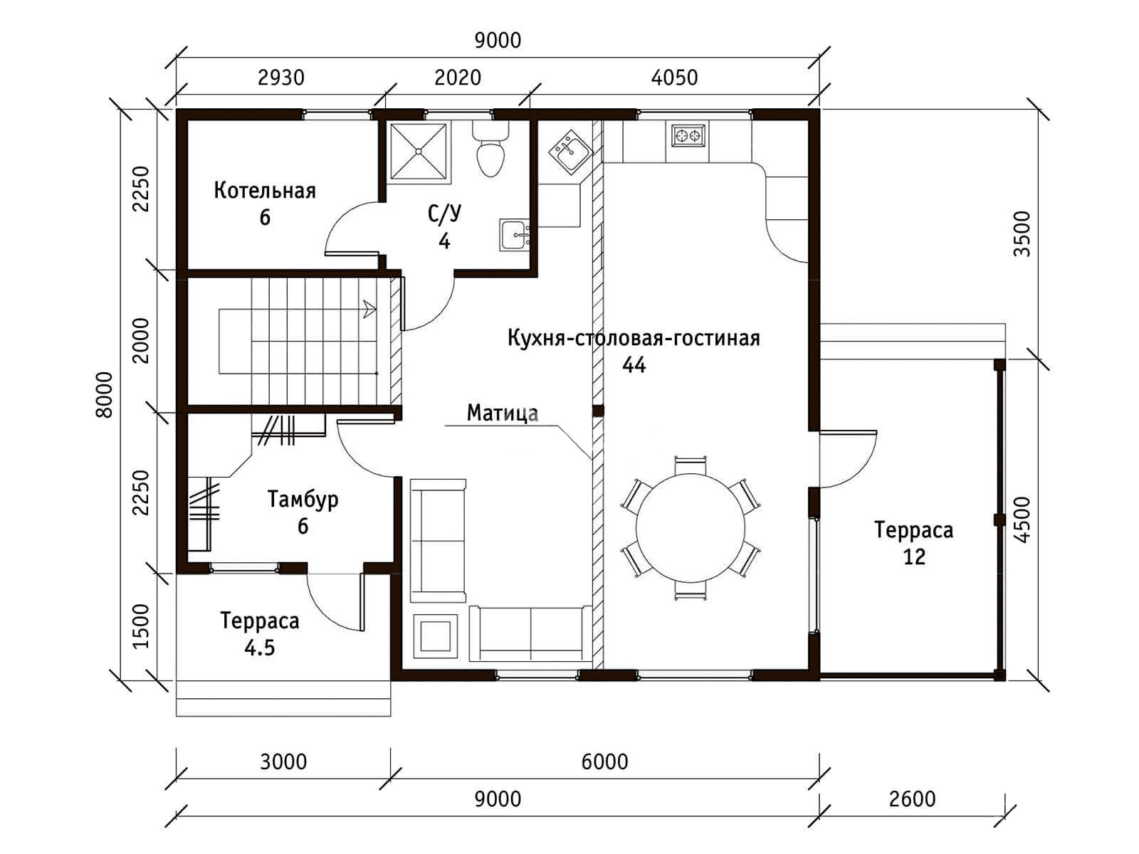
Площадь
120 м 2
Размер дома:
8x9
Этажей:
2
Спален:
2
Санузел:
2
Гараж:
Нет
Баня:
Нет
Терраса:
Нет
Панорамные окна:
Нет
Мастер-спальня:
Нет
Планировка
Характеристики
- Общая площадь: 120 м2
- Жилая площадь: 82 м2
- Количество этажей: 2
- Гараж: нет
- Площадь кровли: 129 м2
- Отделка: Без отделки
- Размер: 8x9
Материалы и перечень работ
- Основание дома: брус 150x150 обработанный антисептиком, черновой пол — обрезная доска 25×100 мм., обработанный антисептиком.
- Каркас: стойки 50×150 мм с шагом не более 600 мм., лаги 1 этажа 50×150 мм. с шагом не более 600 мм., лаги потолка 1 этажа 50×150 мм с шагом не более 600 мм..
- Утепление: пол – минеральный плитный утеплитель KNAUF толщиной 150 мм. по мембране, потолок - минеральный плитный утеплитель KNAUF толщиной 150 мм. по мембране, наружные стены – минеральный плитный утеплитель KNAUF толщиной 150 мм. по мембране, перегородки - плитный утеплитель KNAUF толщиной 100 мм. по мембране.
- Перегородки: Стойки 50×100 мм.
- Потолок: евровагонка.
- Кровля: Металлочерепица по изоспану “АМ”, цвет на выбор.
- Дверь: Входная дверь – металлическая, производство Россия, межкомнатные – филенчатые клеенные из массива с наличниками из евровагонки.
- Окна: Пластиковые ,одинарный стеклопакет.
- В стоимость не входит
- Отделка: Наружная отделка – имитация бруса камерной сушки “АБ”, внутренняя отделка – имитация бруса камерной сушки “АБ”.
- Основание дома: брус 150x150 обработанный антисептиком, черновой пол — обрезная доска 25×100 мм., обработанный антисептиком.
- Каркас: стойки 50×150 мм с шагом не более 600 мм., лаги 1 этажа 50×150 мм. с шагом не более 600 мм., лаги потолка 1 этажа 50×150 мм с шагом не более 600 мм..
- Утепление: пол – минеральный плитный утеплитель KNAUF толщиной 150 мм. по мембране, потолок - минеральный плитный утеплитель KNAUF толщиной 150 мм. по мембране, наружные стены – минеральный плитный утеплитель KNAUF толщиной 150 мм. по мембране, перегородки - плитный утеплитель KNAUF толщиной 100 мм. по мембране.
- Перегородки: Стойки 50×100 мм.
- Потолок: евровагонка.
- Кровля: Металлочерепица по изоспану “АМ”, цвет на выбор.
- Дверь: Входная дверь – металлическая, производство Россия, межкомнатные – филенчатые клеенные из массива с наличниками из евровагонки.
- Окна: Пластиковые ,одинарный стеклопакет.
- В стоимость не входит
- Отделка: Наружная отделка – имитация бруса камерной сушки “АБ”, внутренняя отделка – имитация бруса камерной сушки “АБ”.
Что еще входит в стоимость:
Отправьте свои контакты и мы расчитаем вам смету
Скорее всего вам подойдут следующие проекты домов:
Дом подходит для:
Дом подходит для:
Дом подходит для:














