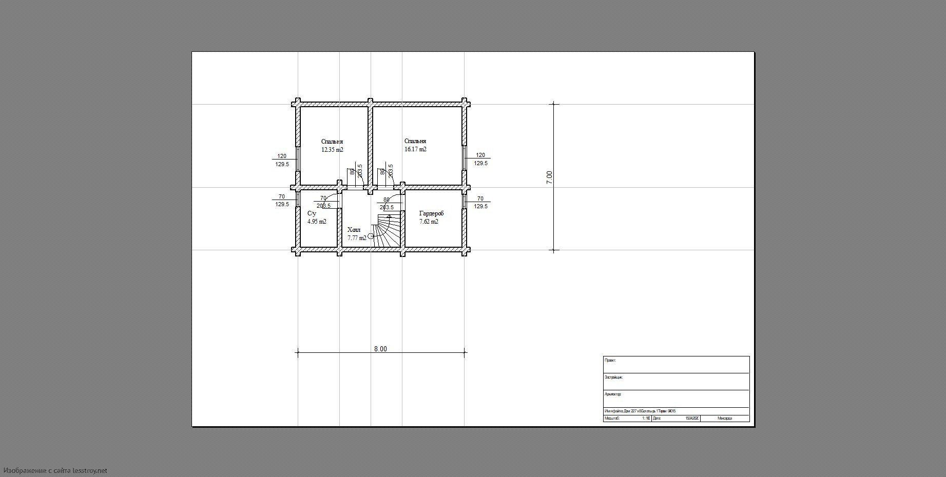
Проект двухэтажного дома Богатырь 21
Площадь
102 м 2
Размер дома:
7x8
Этажей:
2
Спален:
3
Санузел:
0
Гараж:
Нет
Баня:
Нет
Терраса:
Нет
Панорамные окна:
Нет
Мастер-спальня:
Нет
О проекте
Проект, в котором даже кладовка — это повод для гордости. Идеальный метраж — 102 м² для реализации мечты. Двухэтажная просторная планировка создаёт идеальные условия для жизни всей семьи. В доме предусмотрено 3 спальни, что важно для комфорта. Дом спроектирован в духе дома в стиле русский.Характеристики
- Общая площадь: 102 м2
- Количество этажей: 2
- Стиль, разновидность: Дома в стиле Русский
- Форма: Прямоугольные дома
- Тип кровли: Дома с двускатной крышей
- Отделка: Без отделки
- Размер: 7x8








