Ваш город:

Проект одноэтажного дома Богатырь

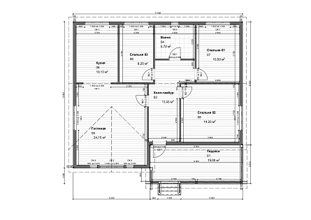
Площадь: 99 м2
Размер: 9.5x11
Дом подходит для:
Семья с двумя детьми
Этажей:
1
Стены:
Кровля:
Металлочерепица
Цена:
Оставить заявку
Площадь
99 м 2
Размер дома:
9.5x11
Этажей:
1
Спален:
3
Санузел:
1
Гараж:
Нет
Баня:
Нет
Терраса:
Нет
Панорамные окна:
Нет
Мастер-спальня:
Нет
Фасады
О проекте
Компактный дом из строганного бруса площадью 99 м² идеален для семьи с двумя детьми. Жилая зона 76 м² обустроена с заботой о комфорте, а металлочерепица придает кровле стильный вид. Три спальни и санузел создают уютную атмосферу для повседневной жизни. Простота и надежность здесь сочетаются с домашним теплом.

Характеристики
  • Общая площадь: 99 м2
  • Жилая площадь: 76 м2
  • Количество этажей: 1
  • Гараж: нет
  • Площадь кровли: 104 м2
  • Отделка: Без отделки
  • Фундамент: Дома со свайно-винтовым фундаментом
Материалы и перечень работ
  • Фундамент свайно-винтовой 108х2500мм
  • Основание брус 140х140мм первый сорт гост сухой строганный
  • Каркас доска 190х45мм\195х45мм
  • Огнезащита основания дома биозелест/неомид
  • Ветровлагозащита\пароизоляция ondutiss
  • Утепление 200мм izobel или аналог(+-25кг на м2)
  • Отделка внутри имитация бруса 140/16
  • Кровельное покрытие s 0.45мм
  • Двери межкомнатные artens( улучшенные мдф)
  • Входная дверь металлическая
  • Окна ПВХ brusbox 70-й профиль
  • В стоимость не входит
  • Отделка снаружи имитация бруса 140/16/виниловый сайдинг технониколь по osb-9mm
  • Фундамент свайно-винтовой 108х2500мм
  • Основание брус 140х140мм первый сорт гост сухой строганный
  • Каркас доска 190х45мм\195х45мм
  • Огнезащита основания дома биозелест/неомид
  • Ветровлагозащита\пароизоляция ondutiss
  • Утепление 200мм izobel или аналог(+-25кг на м2)
  • Отделка внутри имитация бруса 140/16
  • Кровельное покрытие s 0.45мм
  • Двери межкомнатные artens( улучшенные мдф)
  • Входная дверь металлическая
  • Окна ПВХ brusbox 70-й профиль
  • В стоимость не входит
  • Отделка снаружи имитация бруса 140/16/виниловый сайдинг технониколь по osb-9mm
Что еще входит в стоимость:
Фото и видеоотчет
Отправьте свои контакты и мы расчитаем вам смету
Прикрепить документ
Скорее всего вам подойдут следующие проекты домов:
Добавить к сравнению
Добавить в избранное
Изображение
Изображение
Изображение
Дом подходит для:
Семья с двумя детьми
Добавить к сравнению
Добавить в избранное
Изображение
Изображение
Дом подходит для:
Семья с двумя детьми
Добавить к сравнению
Добавить в избранное
Изображение
Изображение
Изображение
Дом подходит для:
Семья с двумя детьми